Upplýsingar
Verðsaga
Byggt 1972
360,7 m²
10 herb.
3 baðherb.
8 svefnh.
Þvottahús
Sérinngangur
Lýsing
Hraunhamar fasteignasala kynnir: Smyrlahraun 19, Hafnarfirði. Tvær íbúðir
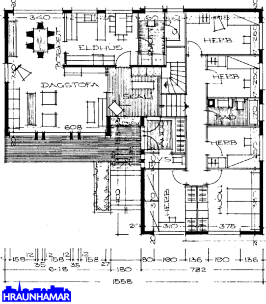
Um er að ræða 360,7 fermetra einbýlishús með tveimur 5 herbergja íbúðum á hvorri hæð og tvöföldum bílskúr. Íbúð á hæð er skráð 175,3 fm, neðri hæð 136,8 og bílskúr 48,6 fm. Efri hæð er að miklu leyti upprunaleg á meðan neðri hæð hússins hefur verið tekin í gegn á undanförnum árum. Húsið er byggt árið 1972 og er teiknað af Kjartani Sveinssyni. Frábær staðsetning á eftirsóttum stað í miðbæ Hafnarfjarðar þar sem stutt er í skóla, leikskóla og íþróttasvæði.
Skipulag eignar:
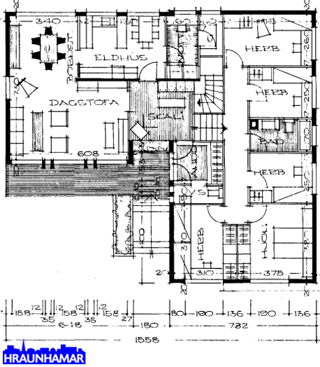
Efri hæð:
Komið er inn í flísalagða forstofu með góðum skápum. Inn af er gestasnyrting með klósetti og handlaug. Tveir stigar eru úr holi, annar gengur upp í svefnálmu og hinn niður á neðri hæð. Frá holi er stór parketlögð stofa/borðstofa með stórum gluggum á þremur hliðum sem hleypa inn mikilli birtu. Eldhús er dúklagt, með u-laga eikarinnréttingu, uppþvottavél, ofn í vinnuhæð, helluborð og viftu. Nóg skápa- og borðpláss. Frá eldhúsi er gengið inn í þvottahús. Svefnálman er á efri stalli. Svefnherbergin eru fjögur talsins, parketlögð með eikarskápum í tveimur þeirra. Baðherbergið er flísalagt í hólf og gólf með sturtu, hornbaðkari, klósetti, handklæðaofni og handlaug.
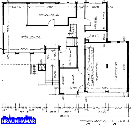
Neðri hæð:
Gengið er inn í flísalagða forstofu með góðum skáp og fatahengi. Inn af er parketlagður gangur með tveimur svefnherbergjum og innangengt í bílskúr. Herbergin eru parketlögð. Frá gangi er gengið niður stiga inn í stofu. Alrýmið er parketlagt með útgengi út á hellulagða verönd. Parketlagt svefnherbergi frá stofu. Eldhús er með hvítri innréttingu, uppþvottavél, ofn í vinnuhæð, helluborð og viftu ásamt borðkrók. Inn af eldhúsi er parketlagt svefnherbergi. við hliðiná eldhúsi er síðan þvottahús/geymsla. Baðherbergið er flísalagt með upphengdu klósetti og hvítri innréttingu með handlaug.
Bílskúrinn er tvöfaldur með tveimur innkeyrsludyrum. Að innan er rýmið einn geimur með steyptu gólfi. Skúrinn er með heitu og köldu vatni.
Lóðin, sem er 687 fermetrar, er grasivaxin ásamt trjágróðri við lóðarmörk. Húsið snýr til suð-austurs með verönd við inngang á efri hæð, hellulagt svæði framanvert við neðri hæð og að baka til. Stór steypt innkeyrsla með nægum bílastæðum. Steypt sorpgeymsla við stétt.
Húsið er að mestu leyti í upprunalegu ástandi og er kaupendum bent á að skoða húsið vel og hafa það í huga við skoðun. Ekki hefur verið gerð formleg ástandsskoðun á eigninni.
Sjarmerandi eign með karakter og sál. Húsið býður upp á mikla möguleika. Einstök staðsetning í göngufæri við miðbæ Hafnarfjarðar og allt það sem hann hefur upp á að bjóða.
Nánari upplýsingar veita:
Einar Örn Ágústsson, löggiltur fasteignasali, einar@hraunhamar.is s. 888-7979
Hlynur Halldórsson, löggiltur fasteignasali, hlynur@hraunhamar.is s. 698-2603
Skoðunarskylda:
Í lögum um fasteignakaup nr. 40/2002 er kveðið á um ríka skoðunarskyldu kaupenda á fasteignum. Hraunhamar fasteignasala vill benda væntanlegum kaupendum á að kynna sér vel ástand fasteigna fyrir kauptilboðsgerð og ef þurfa þykir að leita til sérfræðinga fyrir nánari ástandsskoðun.
Gjöld sem kaupandi þarf að standa straum af vegna kaupanna:
1. Stimpilgjald af kaupsamningi, fyrstu kaup (0,4%), almenn kaup (0,8%), lögaðilar (1,6%) af heildarfasteignamati.
2. Þinglýsingargjald af kaupsamningi, veðskuldabréfi, mögulegu veðleyfi o.fl. – 3.800 kr. af hverju skjali.
3. Lántökugjald lánastofnunar er skv. verðskrá viðkomandi lánastofnunar.
4. Umsýslugjald til fasteignasölu skv. þjónustusamningi
Hraunhamar er elsta fasteignasala Hafnarfjarðar, stofnuð 1983.
Hraunhamar, í fararbroddi í rúm 40 ár. – Hraunhamar.is
Smelltu hér til að fá frítt söluverðmat.
Smelltu hér til að fá söluyfirlit sent strax.
Um er að ræða 360,7 fermetra einbýlishús með tveimur 5 herbergja íbúðum á hvorri hæð og tvöföldum bílskúr. Íbúð á hæð er skráð 175,3 fm, neðri hæð 136,8 og bílskúr 48,6 fm. Efri hæð er að miklu leyti upprunaleg á meðan neðri hæð hússins hefur verið tekin í gegn á undanförnum árum. Húsið er byggt árið 1972 og er teiknað af Kjartani Sveinssyni. Frábær staðsetning á eftirsóttum stað í miðbæ Hafnarfjarðar þar sem stutt er í skóla, leikskóla og íþróttasvæði.
Skipulag eignar:
Efri hæð:
Komið er inn í flísalagða forstofu með góðum skápum. Inn af er gestasnyrting með klósetti og handlaug. Tveir stigar eru úr holi, annar gengur upp í svefnálmu og hinn niður á neðri hæð. Frá holi er stór parketlögð stofa/borðstofa með stórum gluggum á þremur hliðum sem hleypa inn mikilli birtu. Eldhús er dúklagt, með u-laga eikarinnréttingu, uppþvottavél, ofn í vinnuhæð, helluborð og viftu. Nóg skápa- og borðpláss. Frá eldhúsi er gengið inn í þvottahús. Svefnálman er á efri stalli. Svefnherbergin eru fjögur talsins, parketlögð með eikarskápum í tveimur þeirra. Baðherbergið er flísalagt í hólf og gólf með sturtu, hornbaðkari, klósetti, handklæðaofni og handlaug.
Neðri hæð:
Gengið er inn í flísalagða forstofu með góðum skáp og fatahengi. Inn af er parketlagður gangur með tveimur svefnherbergjum og innangengt í bílskúr. Herbergin eru parketlögð. Frá gangi er gengið niður stiga inn í stofu. Alrýmið er parketlagt með útgengi út á hellulagða verönd. Parketlagt svefnherbergi frá stofu. Eldhús er með hvítri innréttingu, uppþvottavél, ofn í vinnuhæð, helluborð og viftu ásamt borðkrók. Inn af eldhúsi er parketlagt svefnherbergi. við hliðiná eldhúsi er síðan þvottahús/geymsla. Baðherbergið er flísalagt með upphengdu klósetti og hvítri innréttingu með handlaug.
Bílskúrinn er tvöfaldur með tveimur innkeyrsludyrum. Að innan er rýmið einn geimur með steyptu gólfi. Skúrinn er með heitu og köldu vatni.
Lóðin, sem er 687 fermetrar, er grasivaxin ásamt trjágróðri við lóðarmörk. Húsið snýr til suð-austurs með verönd við inngang á efri hæð, hellulagt svæði framanvert við neðri hæð og að baka til. Stór steypt innkeyrsla með nægum bílastæðum. Steypt sorpgeymsla við stétt.
Húsið er að mestu leyti í upprunalegu ástandi og er kaupendum bent á að skoða húsið vel og hafa það í huga við skoðun. Ekki hefur verið gerð formleg ástandsskoðun á eigninni.
Sjarmerandi eign með karakter og sál. Húsið býður upp á mikla möguleika. Einstök staðsetning í göngufæri við miðbæ Hafnarfjarðar og allt það sem hann hefur upp á að bjóða.
Nánari upplýsingar veita:
Einar Örn Ágústsson, löggiltur fasteignasali, einar@hraunhamar.is s. 888-7979
Hlynur Halldórsson, löggiltur fasteignasali, hlynur@hraunhamar.is s. 698-2603
Skoðunarskylda:
Í lögum um fasteignakaup nr. 40/2002 er kveðið á um ríka skoðunarskyldu kaupenda á fasteignum. Hraunhamar fasteignasala vill benda væntanlegum kaupendum á að kynna sér vel ástand fasteigna fyrir kauptilboðsgerð og ef þurfa þykir að leita til sérfræðinga fyrir nánari ástandsskoðun.
Gjöld sem kaupandi þarf að standa straum af vegna kaupanna:
1. Stimpilgjald af kaupsamningi, fyrstu kaup (0,4%), almenn kaup (0,8%), lögaðilar (1,6%) af heildarfasteignamati.
2. Þinglýsingargjald af kaupsamningi, veðskuldabréfi, mögulegu veðleyfi o.fl. – 3.800 kr. af hverju skjali.
3. Lántökugjald lánastofnunar er skv. verðskrá viðkomandi lánastofnunar.
4. Umsýslugjald til fasteignasölu skv. þjónustusamningi
Hraunhamar er elsta fasteignasala Hafnarfjarðar, stofnuð 1983.
Hraunhamar, í fararbroddi í rúm 40 ár. – Hraunhamar.is
Smelltu hér til að fá frítt söluverðmat.
Smelltu hér til að fá söluyfirlit sent strax.
Ár
Fasteignamat
Kaupverð
Stærð
Fermetraverð
22. nóv. 2012
57.100.000 kr.
46.000.000 kr.
360.7 m²
127.530 kr.
Byggt á upplýsingum úr Þjóðskrá Íslands frá 2006-2026