Upplýsingar
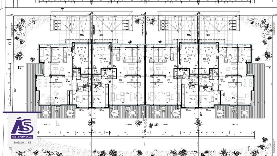
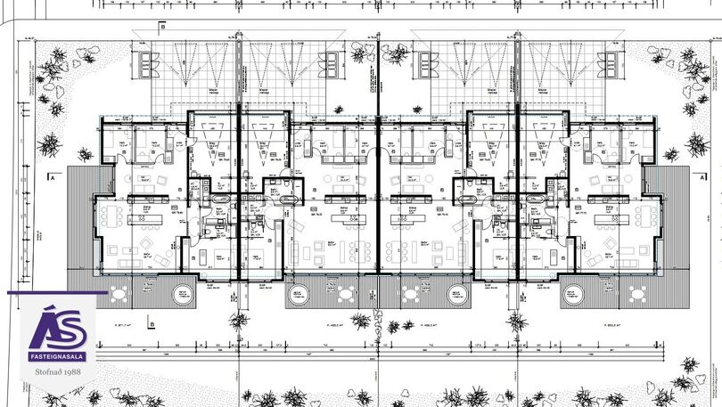
194,6 m²
4 herb.
2 baðherb.
3 svefnh.
Bílskúr
Lýsing
Ný og glæsileg 4ra herbergja staðsteypt raðhús á einni hæð með bílskúr í nýja Áslandi 4 í Hafnarfirði. Húsið er einstaklega vandað þar sem gert er ráð fyrir free@home hússtjórnunarkerfi, loftræstikerfi, gas arinn, vönduðu álgluggakerfi, bluetooth aðgengi á útidyrahurð, rafmagnsgardínum og margt fleira. Raflagna- og ljósahönnun hjá LUMEX. Húsið er einangrað og klætt að utan með viðhaldslausri álklæðningu. Húsið skilast fullbúið að utan og tilbúið til innréttinga að innan (áður byggingarstig 5).
Verktaki verkefnisins er traustur verktaki til margra ára, KB verk ehf.
Afhending: Jan - Feb 2026
Stærð: 194,6 fm., þarf af bílskúr c.a. 33 fm.
Verð: 139,9 til 143,5 mkr.
Smelltu hér til að skoða skilalýsingu verktaka.
Smelltu hér til að skoða sölusíðu verkefnisins.
Nánari lýsing:
Anddyri, innangengt úr anddyri í bílskúr. Þrjú svefnherbergi, þar á meðal hjónasvíta með sér baðherbergi þar sem gert er ráð fyrir walk-in sturtu. Sjónvarpshol. Eldhús, stofa og borðstofa í rúmgóðu alrými með útg. á verönd. Baðherbergi m/baðkari og walk-in sturtu. Þvottahús.
Bílskúr með bílskúrshurð frá Hörmann og sjálfvirkum opnunarbúnaði með fjarstýringu.
Sjá nánari upplýsingar í skilalýsingu verktaka.
Hönnun: Rýma arkitektar, Gunnar Páll arkitekt..
Verkfræðihönnun: Eyjólfur Valgarðsson.
Raflagnahönnun: Helgi Kristinn LUMEX
Frábær staðsetning í suður hlíðum Ásfjalls sem er vinsælt og fjölskylduvænt svæði með fjölbreyttum möguleikum til útivistar (Hvaleyrarvatn og Helgafell í bakgarðinum).
Bókið skoðun og fáið nánari upplýsingar hjá sölumönnum Ás fasteignasölu:
Arnór Daði Eiríksson löggiltur fasteignasali s. 777-0939 / arnor@as.is
Aron Freyr Eiríksson löggiltur fasteignasali s. 772-7376 / aron@as.is
Stefán Rafn Sigurmannsson löggiltur fasteignasali s. 655-7000 / stefan@as.is
Svala Haraldsdóttir löggiltur fasteignasali s. 820-9699 / svala@as.is
Eiríkur Svanur Sigfússon löggiltur fasteignasali í s. 862-3377 / eirikur@as.is
Frábær staðsetning þar sem stutt er í helstu þjónustu og falleg útivistarsvæði.
Ás fasteignasala er rótgróið fyrirtæki sem hefur veitt alla almenna þjónustu í fasteignaviðskiptum frá árinu 1988.
www.facebook.com/asfasteignasala
www.instagram.com/as_fasteignasala
www.as.is
Verktaki verkefnisins er traustur verktaki til margra ára, KB verk ehf.
Afhending: Jan - Feb 2026
Stærð: 194,6 fm., þarf af bílskúr c.a. 33 fm.
Verð: 139,9 til 143,5 mkr.
Smelltu hér til að skoða skilalýsingu verktaka.
Smelltu hér til að skoða sölusíðu verkefnisins.
Nánari lýsing:
Anddyri, innangengt úr anddyri í bílskúr. Þrjú svefnherbergi, þar á meðal hjónasvíta með sér baðherbergi þar sem gert er ráð fyrir walk-in sturtu. Sjónvarpshol. Eldhús, stofa og borðstofa í rúmgóðu alrými með útg. á verönd. Baðherbergi m/baðkari og walk-in sturtu. Þvottahús.
Bílskúr með bílskúrshurð frá Hörmann og sjálfvirkum opnunarbúnaði með fjarstýringu.
- Allir útveggir verða einangraðir að utan og klæddir með Dark gray panel állæðningu frá Málmtækni
- Léttir innveggir eru hefðbundir gifsplötuveggir með osb krossvið í innra lagi og eru uppsettir samkvæmt teikningum.
- Útveggir og innveggir eru slípaðir, sparslaðir, grunnaðir og málaðir eina umferð. Ekki verður búið að fullmála eignina
- Eignin skilast án gólfefna, gólf ófrágengið
- Steyptar loftplötur eru slípaðar og sandspartlaðar, grunnaðar og málaðar eina umferð. Loft í alrými tilbúið fyrir hljóðloft.
- Gert er ráð fyrir loftræstikerfi í öllu húsinu. Loftræsilagnir komnar í plötu.
- Vatns,- og þrifalagnir fylgja frágengnar að töppunarstöðum, skv. teikningu. Forhitari er á heitu neysluvatni.
- Raflagnir eru teiknaðar af LUMEX með ljósaplani. Gert er ráð fyrir free@home hússtýringarkerfi.
- Möguleiki á rafmagnsstýrðum gardínum í flestum herbergjum.
- Möguleiki á óbeinni LED lýsingu í flestum gluggum.
- Allar útidyrahurðir fylgja frágengnar, inngangshurð er sérstaklega vönduð frá Schueco (Álvík ehf) með bluetooth aðgangstýringu.
- Tvö bílastæði á hverri lóð. Hellulagt verður fyrir framan bygginguna í samræmi við teikningar, gert er ráð fyrir snjóbræðslu.
Sjá nánari upplýsingar í skilalýsingu verktaka.
Hönnun: Rýma arkitektar, Gunnar Páll arkitekt..
Verkfræðihönnun: Eyjólfur Valgarðsson.
Raflagnahönnun: Helgi Kristinn LUMEX
Frábær staðsetning í suður hlíðum Ásfjalls sem er vinsælt og fjölskylduvænt svæði með fjölbreyttum möguleikum til útivistar (Hvaleyrarvatn og Helgafell í bakgarðinum).
Bókið skoðun og fáið nánari upplýsingar hjá sölumönnum Ás fasteignasölu:
Arnór Daði Eiríksson löggiltur fasteignasali s. 777-0939 / arnor@as.is
Aron Freyr Eiríksson löggiltur fasteignasali s. 772-7376 / aron@as.is
Stefán Rafn Sigurmannsson löggiltur fasteignasali s. 655-7000 / stefan@as.is
Svala Haraldsdóttir löggiltur fasteignasali s. 820-9699 / svala@as.is
Eiríkur Svanur Sigfússon löggiltur fasteignasali í s. 862-3377 / eirikur@as.is
Frábær staðsetning þar sem stutt er í helstu þjónustu og falleg útivistarsvæði.
Ás fasteignasala er rótgróið fyrirtæki sem hefur veitt alla almenna þjónustu í fasteignaviðskiptum frá árinu 1988.
www.facebook.com/asfasteignasala
www.instagram.com/as_fasteignasala
www.as.is