Löggiltir fasteignasalar innan Félags fasteignasala:
Arnar Birgisson
Lína Rut Olgeirsdóttir
Tryggvi Gunnarsson
Bergþóra Höskuldsdóttir
Vista
svg

568

svg

430  Skoðendur

svg

Skráð  5. feb. 2026

fjölbýlishús

Elísabetarhagi 1 íbúð 106

600 Akureyri

60.900.000 kr.

718.160 þ.kr./m2
Fasteignanúmer

F2511245

Fasteignamat

59.400.000 kr.

Brunabótamat

48.500.000 kr.

Áhvílandi

0 kr.

Arion banki – Reikna lán
Upplýsingar
Verðsaga
svg
Byggt 2021
svg
84,8 m²
svg
3 herb.
svg
1 baðherb.
svg
2 svefnh.
svg
Sameiginl. inngangur
svg
Lyfta
Opið hús: 7. febrúar 2026 kl. 12:30 til 13:00

Opið hús: Elísabetarhagi 1 íbúð 106 , 600 Akureyri, Íbúð merkt: 05 01 06. Eignin verður sýnd laugardaginn 7. febrúar 2026 milli kl. 12:30 og kl. 13:00.

Lýsing


Elísabetarhagi 1 íbúð 106   **** OPIÐ HÚS LAUGARDAGINN 7. FEBRÚAR MILLI KL.12.30 og 13.00 *****
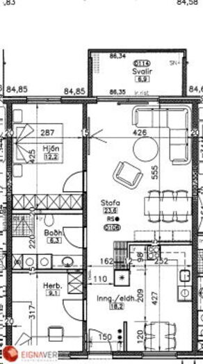
Góð og vel skipulögð þriggja herbergja 78,9 fm íbúð á 1. hæð í fjölbýli með lyftu í Hagahverfi ásamt sérgeymslu 5,9 fm í kjallara. Samtals er eignin 84,4 fm.

Eignin skiptist í forstofu, eldhús, stofu, tvö svefnherbergi, baðherbergi með þvottaaðstöðu og sér geymslu í kjallara.

Nánari lýsing:
Forstofan er með vínyl parketi á gólfi, opnu hengi og efriskáp. 
Eldhúsið er með vínyl parketi á gólfi, borðkrókur og ljósri L-laga innréttingu með þiljum á milli skápa og stæði fyrir uppþvottavél og ísskáp.
Stofan er rúmgóð, með vínyl parketi á gólfi og rennihurð út á steyptar og yfirbyggðar svalir. Hægt er að koma fyrir svalalokun. Innfelld led lýsing er í lofti. 
Svefnherbergin eru tvö með vínyl parketi á gólfum og góðum fataskápum. 
Baðherbergi er með flísum á gólfi og hluta veggja, ljósri innréttingu með stæði fyrir þvottavél og þurrkara í vinnuhæð, vegghengt wc og sturta með glerhurðum.
Í kjallaranum er sér geymsla skráð 5,9 fm að stærð
Sameiginleg hjóla- og vagnageymsla er í kjallaranum með góðu aðgengi. Lítil rafknúin hurð er inn í rýmið sem auveldar aðgengi með stærri hluti.

Annað:
- Innréttingar frá Tak - innréttingar.
- Hljóðdempandi plötur eru í loftum í felstum rýmum.
- Loftskiptikerfi er í íbúðinni
- Mynd-dyrasímakerfi er í íbúðinni 
- Gólfhiti er í íbúðinni. 

 Eignin er í einkasölu hjá Eignaveri fasteignasölu ehf

Nánari upplýsingar veita:
Begga           s: 845-0671    /begga@eignaver.is
Tryggvi         s: 862-7919    / tryggvi@eignaver.is
Arnar            s: 898-7011    / arnar@eignaver.is



 

Eignaver fasteignasala ehf

Eignaver fasteignasala ehf

Hafnarstræti 97 (krónan), 600 Akureyri
phone
Ár
Fasteignamat
Kaupverð
Stærð
Fermetraverð
8. júl. 2021
2.990.000 kr.
37.450.000 kr.
84.8 m²
441.627 kr.
Byggt á upplýsingum úr Þjóðskrá Íslands frá 2006-2026
Eignaver fasteignasala ehf

Eignaver fasteignasala ehf

Hafnarstræti 97 (krónan), 600 Akureyri
phone