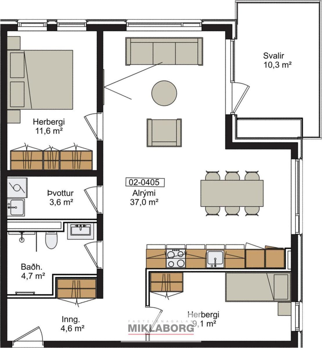
Hringhamar, 221 Hafnarfjörður