Löggiltir fasteignasalar innan Félags fasteignasala:
Páll Þórólfsson
Guðbjörg Guðmundsdóttir
Jason Kristinn Ólafsson
Sverrir Pálmason
Vista
fjölbýlishús

Hafnarbraut 12

200 Kópavogur

81.900.000 kr.

852.237 þ.kr./m2
Fasteignanúmer

F2510817

Fasteignamat

81.550.000 kr.

Brunabótamat

58.160.000 kr.

Áhvílandi

0 kr.

Arion banki – Reikna lán
Upplýsingar
Verðsaga
svg
Byggt 2020
svg
96,1 m²
svg
3 herb.
svg
1 baðherb.
svg
2 svefnh.
svg
Þvottahús
svg
Bílastæði
svg
Lyfta
Opið hús: 10. febrúar 2026 kl. 17:30 til 18:00

Opið hús: Hafnarbraut 12, 200 Kópavogur, Íbúð merkt: 01 04 01. Eignin verður sýnd þriðjudaginn 10. febrúar 2026 milli kl. 17:30 og kl. 18:00.

Lýsing

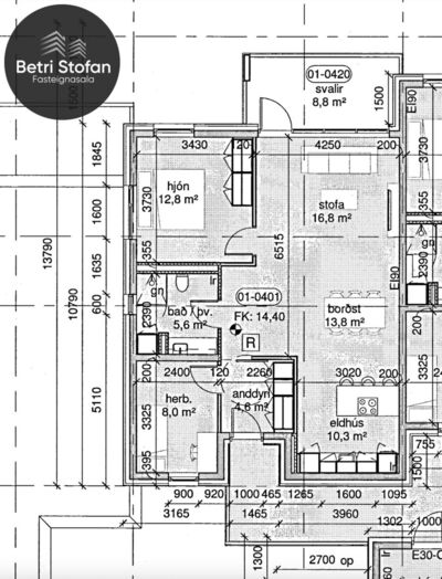
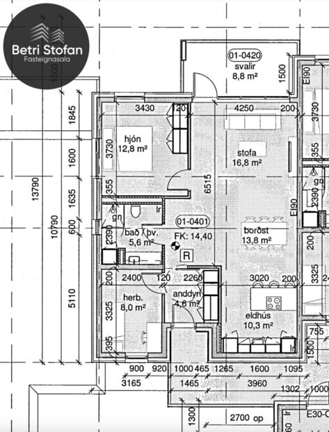
Betri Stofan og Jason Ólafsson sími 7751515 kynna: Hafnarbraut 12E, íbúð 401, 3ja herbergja endaíbúð á 4. og efstu hæð með útsýni í nýlegu fjölbýli á Kársnesi.  Íbúðinni fylgir bílastæði með hleðslustöð í lokuðum bílakjallara og sérgeymsla.
Eignin er vel skipulögð með aukinni lofthæð. 
Fasteignamat er kr. 81.550.000-

https://vimeo.com/fasteignamyndbond/hafnarbraut12e

Forstofa með góðu skápaplássi og flísum á gólfi. 
Eldhús hvít innrétting með eyju. Tæki eru frá AEG og Electrolux, innbyggð uppþvottavél og ísskápur.
Stofa með parketi, gólfsíðir gluggar og útgengt út á rúmgóðar svalir til vesturs.
Hjónaherbergi með parketi, glugga á tvo vegu og góðum fataskápum.
Herbergi með parketi og fataskáp.
Baðherbergi með sturtu, flísum á gólfi og hluta veggja. Hvít innrétting, handklæðaofn og gluggi með opnanlegu fagi. Stæði fyrir þvottavél og þurrkara.
Sameiginleg vagna og hjólageymsla í sameign.
Sérgeymsla sem er skráð: 8,1 fm

Rólegt hverfi með fallegum gönguleiðum og stutt er í skóla, leikskóla, Sky Lagoon og alla helstu þjónustu. Auk þess mun Fossvogsbrúin sem er í byggingu tengja svæðið við útivistarperlur Nauthólsvíkur og Öskjuhlíðar. Íbúð á efstu hæð með útsýni.

Allar nánari upplýsingar gefur :
Jason Kristinn Ólafsson lögg. fasteignasali sími: 775-1515 eða jason@betristofan.is löggiltur fasteignasali.


Gjöld sem kaupandi þarf að standa straum af ef að kaupum verður:
1. Stimpilgjald af fasteignamati fasteignar er 0.8%, en 0,4% fyrir fyrstu kaup og 1,6% fyrir lögaðila.  
2. Þinglýsingargjald: kaupsamningi, skuldabréfi, veðleyfi, afsali o.s.frv. er kr. 3.800 af hverju skjali.
3. Lántökukostnaður samkvæmt verðskrá viðkomandi lánastofnunar.
4. Umsýslugjald til fasteignasölu skv. gjaldskrá.

Skoðunarskylda kaupanda:
Í lögum um fasteignakaup nr. 40/2002 er kveðið á um ríka skoðunarskyldu kaupenda á fasteignum. Betri Stofan fasteignasala bendir væntanlegum kaupendum á að kynna sér vel ástand fasteigna við skoðun og fyrir tilboðsgerð og ef þurfa þykir að leita til sérfræðinga um nánari ástandsskoðun.

img
Jason Kristinn Ólafsson
Lögg.fasteignasali innan félags fasteignasala
Betri Stofan Fasteignasala
Borgartúni 30, 105 Reykjavík
Betri Stofan Fasteignasala

Betri Stofan Fasteignasala

Borgartúni 30, 105 Reykjavík
phone
img

Jason Kristinn Ólafsson

Borgartúni 30, 105 Reykjavík
Ár
Fasteignamat
Kaupverð
Stærð
Fermetraverð
14. júl. 2021
51.750.000 kr.
59.900.000 kr.
96.1 m²
623.309 kr.
19. mar. 2021
49.900.000 kr.
55.400.000 kr.
96.1 m²
576.483 kr.
Byggt á upplýsingum úr Þjóðskrá Íslands frá 2006-2026
Betri Stofan Fasteignasala

Betri Stofan Fasteignasala

Borgartúni 30, 105 Reykjavík
phone

Jason Kristinn Ólafsson

Borgartúni 30, 105 Reykjavík