Upplýsingar
Byggt 2021
111 m²
3 herb.
1 baðherb.
3 svefnh.
Lýsing
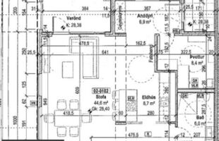
Nýleg og glæsileg 111,0 fm 3ja til 4ra herbergja sérhæð í 4ra húsa þyrpingu með 34,3 fm sérafnotareiti í svansvottuðu húsi við Hádegisskarð 20, 221 Hafnarfirði.
Allir skráðir fermetrar eru innan íbúðar skv. HMS.
Nánari lýsing: Sérinngangur. Anddyri með skápum. Rúmgóð geymsla/þvottahús innaf anddyri. Eldhús, stofa og borðstofa í rúmgóðu og björtu alrými með útg. á 34,3 fm sérafnotareit sem snýr vel til suðurs og þar sem búið er að koma fyrir lögnum fyrir heitum potti. Eldhús með góðu skápaplássi, stæði fyrir uppþvottavél, eyju með barstóla aðstöðu, spanhelluborði, ofni og Dekton-stein borðplötum, innfelld lýsing fyrir ofan eyju. Tvö svefnherbergi, bæði með skápum. Möguleiki á að breyta hluta af stofu í 3ja svefnherbergið. Baðherbergi með walk-in sturtu, vegghengdu salerni og handklæðaofni.
- Hæðin er hituð upp með gólfhita.
- Loftskiptakerfi er í allri íbúðinni, nánari upplýsingar má nálgast hjá fasteignasala.
- Snjóbræðsla í stétt fyrir framan inngang hússins
- Sameiginleg hjóla- og vagnageymsla á jarðhæð.
- Sérbílastæði fyrir framan hús merkt B4 ásamt sameiginlegum bílastæðum.
- Gert er ráð fyrir hleðslu rafbíla við bílastæði.
- Lóðin er glæsileg og fullfrágengin með vallendisúthagatorfi sem liggja að lóðamörkum.
- Búið er að setja upp skjólvegg við sérafnotareit, leggja niður hellur og koma fyrir lögnum fyrir heitum potti.
Um er að ræða virkilega vandaða og vel staðsetta eign í Skarðshlíðinni þar sem stutt er í helstu þjónustu, s.s. verslanir, grunn- og leikskóla, útibú tónlistarskóla Hafnarfjarðar, íþróttasvæði Hauka, sundlaugar, líkamsræktarstöðvar, apótek og falleg útivistarsvæði.
Nánari upplýsingar veitir Arnór Daði Eiríksson lgfs. s. 777-0939 / arnor@as.is
Ás fasteignasala er rótgróið fyrirtæki sem hefur veitt alla almenna þjónustu í fasteignaviðskiptum frá árinu 1988.
www.facebook.com/asfasteignasala
www.instagram.com/as_fasteignasala
www.as.is
Allir skráðir fermetrar eru innan íbúðar skv. HMS.
Nánari lýsing: Sérinngangur. Anddyri með skápum. Rúmgóð geymsla/þvottahús innaf anddyri. Eldhús, stofa og borðstofa í rúmgóðu og björtu alrými með útg. á 34,3 fm sérafnotareit sem snýr vel til suðurs og þar sem búið er að koma fyrir lögnum fyrir heitum potti. Eldhús með góðu skápaplássi, stæði fyrir uppþvottavél, eyju með barstóla aðstöðu, spanhelluborði, ofni og Dekton-stein borðplötum, innfelld lýsing fyrir ofan eyju. Tvö svefnherbergi, bæði með skápum. Möguleiki á að breyta hluta af stofu í 3ja svefnherbergið. Baðherbergi með walk-in sturtu, vegghengdu salerni og handklæðaofni.
- Hæðin er hituð upp með gólfhita.
- Loftskiptakerfi er í allri íbúðinni, nánari upplýsingar má nálgast hjá fasteignasala.
- Snjóbræðsla í stétt fyrir framan inngang hússins
- Sameiginleg hjóla- og vagnageymsla á jarðhæð.
- Sérbílastæði fyrir framan hús merkt B4 ásamt sameiginlegum bílastæðum.
- Gert er ráð fyrir hleðslu rafbíla við bílastæði.
- Lóðin er glæsileg og fullfrágengin með vallendisúthagatorfi sem liggja að lóðamörkum.
- Búið er að setja upp skjólvegg við sérafnotareit, leggja niður hellur og koma fyrir lögnum fyrir heitum potti.
Um er að ræða virkilega vandaða og vel staðsetta eign í Skarðshlíðinni þar sem stutt er í helstu þjónustu, s.s. verslanir, grunn- og leikskóla, útibú tónlistarskóla Hafnarfjarðar, íþróttasvæði Hauka, sundlaugar, líkamsræktarstöðvar, apótek og falleg útivistarsvæði.
Nánari upplýsingar veitir Arnór Daði Eiríksson lgfs. s. 777-0939 / arnor@as.is
Ás fasteignasala er rótgróið fyrirtæki sem hefur veitt alla almenna þjónustu í fasteignaviðskiptum frá árinu 1988.
www.facebook.com/asfasteignasala
www.instagram.com/as_fasteignasala
www.as.is