Upplýsingar
Verðsaga
Byggt 2022
80 m²
3 herb.
1 baðherb.
2 svefnh.
Útsýni
Lyfta
Lýsing
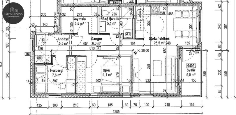
Betri stofan Borgartúni 30 og Jason Kristinn löggiltur fasteignasali kynnir: Virkilega vel skipulagða og fullbúna, 3-4 herbergja endaíbúð á 4. hæð við Nónhamar 8 í 221, Hafnarfirði. Eignin er þriggja til fjögurra herbergja 80 fm. á 4. hæð í nýlegu 20 íbúða lyftuhúsi. Myndir af íbúð eru teknar áður en gólfefnin voru sett á en eignin er í leigu í dag.
Nánari lýsing eignar:
Forstofa er með parket á gólfum og fataskápum.
Stofa og borðstofa er í opnu alrými með eldhúsi, rúmgóð stofa með útgengi á svalir.
Eldhús er opið við stofu. Eldhúsinnrétting er ljósgrá Melamine með svartri Quartz borðplötu. Span helluborð, ofn, innbyggð uppþvottavél og ísskápur með frysti.
Svefnherbergi eru tvö-þrjú talsins þeim fylgja fataskápar í sama lit og efni og er á eldhúsinnréttingu. Parket á gólfum.
Baðherbergi er flísalagt í hólf að hluta og gólf með 60x60 flísum, upphengt salerni, sturtuklefi og innrétting við vask með ljúflokun á skúffum, tengi fyrir þvottavél og þurrkara.
Geymsla er innan íbúðar með glugga og opnalegu fagi. (mögulega hægt að nýta sem barnaherbergi)
Sameiginleg hjóla og vagnageymsla er í sameign.
Nánari upplýsingar:
Jason Kristinn Ólafsson, sími 775 1515 - löggiltur fasteignasali. - jason@betristofan.is
Þórhallur Biering löggiltur fasteignasali í síma 896-8232 eða thorhallur@betristofan.is
Telma Rut Frímannsdóttir, Aðstoðarmaður fasteignasala í síma 772-3555 - eða telma@betristofan.is
Nánari lýsing eignar:
Forstofa er með parket á gólfum og fataskápum.
Stofa og borðstofa er í opnu alrými með eldhúsi, rúmgóð stofa með útgengi á svalir.
Eldhús er opið við stofu. Eldhúsinnrétting er ljósgrá Melamine með svartri Quartz borðplötu. Span helluborð, ofn, innbyggð uppþvottavél og ísskápur með frysti.
Svefnherbergi eru tvö-þrjú talsins þeim fylgja fataskápar í sama lit og efni og er á eldhúsinnréttingu. Parket á gólfum.
Baðherbergi er flísalagt í hólf að hluta og gólf með 60x60 flísum, upphengt salerni, sturtuklefi og innrétting við vask með ljúflokun á skúffum, tengi fyrir þvottavél og þurrkara.
Geymsla er innan íbúðar með glugga og opnalegu fagi. (mögulega hægt að nýta sem barnaherbergi)
Sameiginleg hjóla og vagnageymsla er í sameign.
Nánari upplýsingar:
Jason Kristinn Ólafsson, sími 775 1515 - löggiltur fasteignasali. - jason@betristofan.is
Þórhallur Biering löggiltur fasteignasali í síma 896-8232 eða thorhallur@betristofan.is
Telma Rut Frímannsdóttir, Aðstoðarmaður fasteignasala í síma 772-3555 - eða telma@betristofan.is
Gjöld sem kaupandi þarf að standa straum af ef að kaupum verður:
1. Stimpilgjald af fasteignamati fasteignar er 0.8%, en 0,4% fyrir fyrstu kaup og 1,6% fyrir lögaðila.
2. Þinglýsingargjald: kaupsamningi, skuldabréfi, veðleyfi, afsali o.s.frv. er kr. 3.800 af hverju skjali.
3. Lántökukostnaður samkvæmt verðskrá viðkomandi lánastofnunar.
4. Umsýslugjald til fasteignasölu skv. gjaldskrá.
Skoðunarskylda kaupanda:
Í lögum um fasteignakaup nr. 40/2002 er kveðið á um ríka skoðunarskyldu kaupenda á fasteignum. Betri Stofan fasteignasala bendir væntanlegum kaupendum á að kynna sér vel ástand fasteigna við skoðun og fyrir tilboðsgerð og ef þurfa þykir að leita til sérfræðinga um nánari ástandsskoðun.
Ár
Fasteignamat
Kaupverð
Stærð
Fermetraverð
31. mar. 2023
57.950.000 kr.
52.000.000 kr.
80 m²
650.000 kr.
Byggt á upplýsingum úr Þjóðskrá Íslands frá 2006-2026