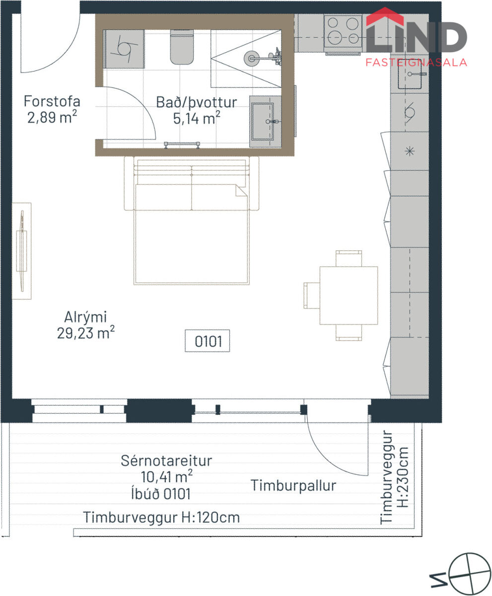
Hafnarbraut, 200 Kópavogur