Upplýsingar
Verðsaga
Byggt 2021
228,9 m²
6 herb.
2 baðherb.
4 svefnh.
Þvottahús
Bílskúr
Útsýni
Sérinngangur
Lýsing
Fasteignamarkaðurinn ehf. s: 570-4500 kynnir til sölu virkilega vandað, glæsilegt og mjög vel skipulagt 228,9 fermetra raðhús á tveimur hæðum með tvennum svölum, stórri viðarverönd með heitum og köldum potti og bílskúr á mjög fallegum útsýnisstað við opið svæði við Víkurgötu í Garðabæ.
Um er að ræða frábæra staðsetningu í Urriðaholti í Garðabæ þar sem glæsilegs útsýnis nýtur að Urriðavatni.
Eignin er sýnd skv. samkomulagi. Bókið einkaskoðun í s: 570-4500 eða á netfanginu fastmark@fastmark.is
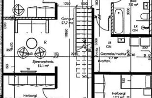
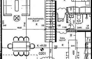
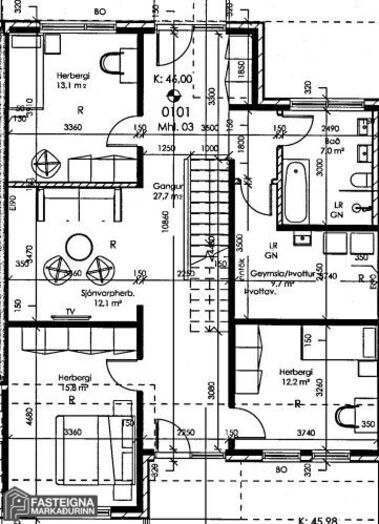
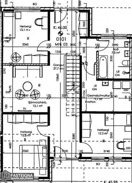
Eignin skiptist þannig að neðri hæðin er 114,9 fm, efri hæðin 88,4 fm og bílskúrinn 25,6 fm, samtals 228,9 fm skv. HMS.
Húsið, sem er á tveimur hæðum, skiptist m.a. í fjögur svefnherbergi, tvö baðherbergi, þvottaherbergi, sjónvarpsstofu, stórar samliggjandi stofur með tvennum svölum og frábæru útsýni og glæsilegt eldhús.
Tvennar svalir eru út af stofum á efri hæð hússins með virkilega fallegu útsýni yfir Urriðavatn og víðar og um 80 fermetra suðvestur verönd úr lerki með heitum og köldum potti er út af neðri hæð hússins.
Hiti er í stéttum fyrir framan húsið, í rampi niður að bílastæðum fyrir framan húsið og í stórum hluta bílaplans.
Húsið er mjög vandað í alla staði. Aukin lofthæð er á neðri hæð eða um 2,75 metrar og allt að 5,0 metra lofthæð er á efri hæðinni auk gólfsíðra glugga. Gólfhitakerfi er í öllu húsinu og Free@home hússjórnarkerfi þar sem hægt er að stýra ljósum og hita hússins (hægt er að tengja gardínur inn á kerfið líka). Innbyggð lýsing er í loftum í öllu húsinu og netengingar í öllum herbergjum og bílskúr. Gereftislausar hurðir (flestar með innfelldum þröskuldi), segullæsingu og snjallhúnum. Falleg kvöldlýsing við stiga á milli hæða. Vönduð eldhústæki og quartz steinn frá Granítsmiðjunni á eldhúsborðum.
Staðsetning hússins er afar góð í einni af fallegri götum höfuðborgarsvæðisins. Glæsilegar göngu- og hjólaleiðir í kringum Urriðavatn og stutt í fallega stíga í Heiðmörk. Stutt í alla verslun og þjónustu, leikskóla og grunnskóla. Einn glæsilegasti golfvöllur landsins, hjá Golfklúbbinum Oddi, í næsta nágrenni.
Nánari lýsing:
Neðri hæð:
Forstofa, mjög rúmgóð, flísalögð og með innbyggðum fataskápum.
Baðherbergi I, með glugga, flísalagt gólf og veggir að hluta, innrétting, vegghengt wc, fastur spegill með lýsingu, frístandandi baðkar, flísalögð sturta með sturtugleri og vönduð blöndunartæki eru innbyggð í veggi.
Barnaherberg I, parketlagt og rúmgott með fataskápum.
Sjónvarpsstofa, parketlögð og rúmgóð.
Gangur/vinnurými, parketlagt og með útgengi á mjög stóra afgirta og skjólsæla viðarverönd til suðurs með steyptum veggjum, heitum og köldum potti.
Hjónaherbergi, parketlagt og rúmgott með fataskápum á heilum vegg.
Barnaherbergi II, parketlagt og rúmgott með fataskápum.
Þvottaherbergi/geymsla, með góðum innréttingum með stæðum fyrir vélar í vinnuhæð, vinnuborði og vaski.
Gengið er upp á efri hæð hússins um steyptan teppalagðan stiga með næturlýsingu í vegg og fallegu handriði úr stáli og gleri.
Samliggjandi stofur, parketlagðar, bjartar og rúmgóðar með gólfsíðum gluggum til suðausturs og norðvesturs og útgengi á tvennar svalir. Frábært útsýni er frá stofum og af svölum.
Svalir I, eru um 13 fermetrar að stærð og snúa til suðausturs. Fallegt útsýni að Urriðavatni og víðar.
Svalir II, eru um 10 fermetrar að stærð og snúa til norðvesturs. Fallegt útsýni að Urriðavatni, Snæfellsjökli og víðar.
Eldhús, parketlagt, bjart og rúmgott með miklum og fallegum innréttingu með tækjaskáp, kvartsteini á borðum, innbyggðum ísskáp, innbyggðum frysti og innbyggðri uppþvottavél. Eyja, með góðu skápaplássi, spanhelluborði frá Siemens, útdraganlegum rafmagnstenglum, áfastri borðaðstöðu og kvartsteini á borði og göflum.
Barnaherbergi III, parketlagt og rúmgott með fataskápum.
Baðherbergi II, flísalagt gólf og veggir að hluta. Flísalögð sturta með sturtugleri, innrétting, fastur spegill með lýsingu, innbyggð blöndunartæki í veggi, handklæðaofn og vegghengt wc.
Bílskúr, sem er 25,6 fermetrar að stærð, stendur á lóð framan við húsið er með mótor á bílskúrshurð, rennandi heitu og köldu vatni, nettengingu og rafhleðslustöð.
Staðsetning eignarinnar er afar góð á eftirsóknaverðum stað við Urriðaholt í Garðabæ þaðan sem stutt er í skóla og leikskóla, golfvöllur Odds auk verslunar og þjónustu. Fallegar hjóla- og gönguleiðir í næsta nágrenni.
Allar nánari upplýsingar veittar á skrifstofu Fasteignamarkaðarins ehf. í síma 570-4500 eða á netfanginu fastmark@fastmark.is
Um er að ræða frábæra staðsetningu í Urriðaholti í Garðabæ þar sem glæsilegs útsýnis nýtur að Urriðavatni.
Eignin er sýnd skv. samkomulagi. Bókið einkaskoðun í s: 570-4500 eða á netfanginu fastmark@fastmark.is
Eignin skiptist þannig að neðri hæðin er 114,9 fm, efri hæðin 88,4 fm og bílskúrinn 25,6 fm, samtals 228,9 fm skv. HMS.
Húsið, sem er á tveimur hæðum, skiptist m.a. í fjögur svefnherbergi, tvö baðherbergi, þvottaherbergi, sjónvarpsstofu, stórar samliggjandi stofur með tvennum svölum og frábæru útsýni og glæsilegt eldhús.
Tvennar svalir eru út af stofum á efri hæð hússins með virkilega fallegu útsýni yfir Urriðavatn og víðar og um 80 fermetra suðvestur verönd úr lerki með heitum og köldum potti er út af neðri hæð hússins.
Hiti er í stéttum fyrir framan húsið, í rampi niður að bílastæðum fyrir framan húsið og í stórum hluta bílaplans.
Húsið er mjög vandað í alla staði. Aukin lofthæð er á neðri hæð eða um 2,75 metrar og allt að 5,0 metra lofthæð er á efri hæðinni auk gólfsíðra glugga. Gólfhitakerfi er í öllu húsinu og Free@home hússjórnarkerfi þar sem hægt er að stýra ljósum og hita hússins (hægt er að tengja gardínur inn á kerfið líka). Innbyggð lýsing er í loftum í öllu húsinu og netengingar í öllum herbergjum og bílskúr. Gereftislausar hurðir (flestar með innfelldum þröskuldi), segullæsingu og snjallhúnum. Falleg kvöldlýsing við stiga á milli hæða. Vönduð eldhústæki og quartz steinn frá Granítsmiðjunni á eldhúsborðum.
Staðsetning hússins er afar góð í einni af fallegri götum höfuðborgarsvæðisins. Glæsilegar göngu- og hjólaleiðir í kringum Urriðavatn og stutt í fallega stíga í Heiðmörk. Stutt í alla verslun og þjónustu, leikskóla og grunnskóla. Einn glæsilegasti golfvöllur landsins, hjá Golfklúbbinum Oddi, í næsta nágrenni.
Nánari lýsing:
Neðri hæð:
Forstofa, mjög rúmgóð, flísalögð og með innbyggðum fataskápum.
Baðherbergi I, með glugga, flísalagt gólf og veggir að hluta, innrétting, vegghengt wc, fastur spegill með lýsingu, frístandandi baðkar, flísalögð sturta með sturtugleri og vönduð blöndunartæki eru innbyggð í veggi.
Barnaherberg I, parketlagt og rúmgott með fataskápum.
Sjónvarpsstofa, parketlögð og rúmgóð.
Gangur/vinnurými, parketlagt og með útgengi á mjög stóra afgirta og skjólsæla viðarverönd til suðurs með steyptum veggjum, heitum og köldum potti.
Hjónaherbergi, parketlagt og rúmgott með fataskápum á heilum vegg.
Barnaherbergi II, parketlagt og rúmgott með fataskápum.
Þvottaherbergi/geymsla, með góðum innréttingum með stæðum fyrir vélar í vinnuhæð, vinnuborði og vaski.
Gengið er upp á efri hæð hússins um steyptan teppalagðan stiga með næturlýsingu í vegg og fallegu handriði úr stáli og gleri.
Samliggjandi stofur, parketlagðar, bjartar og rúmgóðar með gólfsíðum gluggum til suðausturs og norðvesturs og útgengi á tvennar svalir. Frábært útsýni er frá stofum og af svölum.
Svalir I, eru um 13 fermetrar að stærð og snúa til suðausturs. Fallegt útsýni að Urriðavatni og víðar.
Svalir II, eru um 10 fermetrar að stærð og snúa til norðvesturs. Fallegt útsýni að Urriðavatni, Snæfellsjökli og víðar.
Eldhús, parketlagt, bjart og rúmgott með miklum og fallegum innréttingu með tækjaskáp, kvartsteini á borðum, innbyggðum ísskáp, innbyggðum frysti og innbyggðri uppþvottavél. Eyja, með góðu skápaplássi, spanhelluborði frá Siemens, útdraganlegum rafmagnstenglum, áfastri borðaðstöðu og kvartsteini á borði og göflum.
Barnaherbergi III, parketlagt og rúmgott með fataskápum.
Baðherbergi II, flísalagt gólf og veggir að hluta. Flísalögð sturta með sturtugleri, innrétting, fastur spegill með lýsingu, innbyggð blöndunartæki í veggi, handklæðaofn og vegghengt wc.
Bílskúr, sem er 25,6 fermetrar að stærð, stendur á lóð framan við húsið er með mótor á bílskúrshurð, rennandi heitu og köldu vatni, nettengingu og rafhleðslustöð.
Staðsetning eignarinnar er afar góð á eftirsóknaverðum stað við Urriðaholt í Garðabæ þaðan sem stutt er í skóla og leikskóla, golfvöllur Odds auk verslunar og þjónustu. Fallegar hjóla- og gönguleiðir í næsta nágrenni.
Allar nánari upplýsingar veittar á skrifstofu Fasteignamarkaðarins ehf. í síma 570-4500 eða á netfanginu fastmark@fastmark.is
Ár
Fasteignamat
Kaupverð
Stærð
Fermetraverð
30. des. 2020
12.700.000 kr.
85.000.000 kr.
228.9 m²
371.341 kr.
Byggt á upplýsingum úr Þjóðskrá Íslands frá 2006-2026