Upplýsingar
Byggt 2023
81,1 m²
3 herb.
1 baðherb.
2 svefnh.
Útsýni
Hjólastólaaðgengi
Bílastæði
Lyfta
Laus strax
Lýsing
Betri Stofan fasteignasala Borgartúni 30 kynnir:
Glæsilegar og vel skipulagðar 2ja, 3ja og 4ra herbergja íbúðir á bilinu 58-124,3 fm með stæði í lokaðri bílageymslu í nýju fjölbýli við Áshamar 12-14 og 16-18 í Hamranesi í Hafnarfirði. Íbúðirnar skilast vel innréttaðar og fullbúnar með gólfefnum. Afhending: Haust 2024
-MÖGULEIKI Á HLUTDEILDARLÁNI FRÁ HMS-
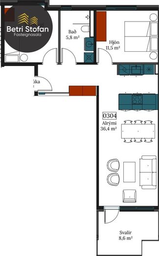
Um er að ræða þriggja herbergja, 81,1 fm. íbúð nr. 03-04, (fnr. 252-4963), á 3. hæð í lyftuhúsi með þvottaaðstöðu og svölum (suður) auk 6,5 fm. geymslu og stæðis í bílageymslu.
- Innréttingar eru frá HTH, annars vegar spónlagðar og hins vegar með hvítu yfirborði.
- Eldhústæki: Spanhelluborð með 4 hellum, blástursofn með stáláferð, gufugleypir/eyjuháfur eftir því sem við á. Gert er ráð fyrir innbyggðri uppþvottavél.
- Baðherbergi er með stílhreinar hvítar innréttingar, speglaskáp fyrir ofan vask og er flísalagt að hluta. Gert er ráð fyrir þvottavél og þurrkara með rakaþéttingu.
- Geymsla fylgir öllum íbúðum.
- Sér stæði í bílageymslu fylgir öllum íbúðum.
- Lagnaleið fyrir mögulega rafhleðslutengingu er við hvert bílastæði.
Nánari upplýsingar veitir Þórir Skarphéðinsson, lögmaður og lgf. í síma 8449591. - netfang: thorir@betristofan.is.
Heimasíða verkefnis þar sem jafnframt kemur fram hvaða íbúðir eru lausar: www.ashamar12-26.is
Byggingaraðili verkefnis er öflugur og traustur verktaki til fjölda ára: Eykt ehf. (www.eykt.is)
Allur frágangur, uppbygging og orkunotkun hússins tekur mið af leiðbeinandi stigakröfum Svansins: www.svanurinn.is
Skilalýsing seljanda: https://www.ashamar12-26.is/pdf/ashamar-12-18-skilalysing-2023-10-27.pdf
Bókið skoðun:
Þórir Skarphéðinsson, lögmaður og löggiltur fasteignasali, sími 844-9591 eða thorir@betristofan.is
Telma Rut Frímannsdóttir, Aðstoðarmaður fasteignasala í síma 772-3555 - eða telma@betristofan.is
Glæsilegar og vel skipulagðar 2ja, 3ja og 4ra herbergja íbúðir á bilinu 58-124,3 fm með stæði í lokaðri bílageymslu í nýju fjölbýli við Áshamar 12-14 og 16-18 í Hamranesi í Hafnarfirði. Íbúðirnar skilast vel innréttaðar og fullbúnar með gólfefnum. Afhending: Haust 2024
-MÖGULEIKI Á HLUTDEILDARLÁNI FRÁ HMS-
Um er að ræða þriggja herbergja, 81,1 fm. íbúð nr. 03-04, (fnr. 252-4963), á 3. hæð í lyftuhúsi með þvottaaðstöðu og svölum (suður) auk 6,5 fm. geymslu og stæðis í bílageymslu.
- Innréttingar eru frá HTH, annars vegar spónlagðar og hins vegar með hvítu yfirborði.
- Eldhústæki: Spanhelluborð með 4 hellum, blástursofn með stáláferð, gufugleypir/eyjuháfur eftir því sem við á. Gert er ráð fyrir innbyggðri uppþvottavél.
- Baðherbergi er með stílhreinar hvítar innréttingar, speglaskáp fyrir ofan vask og er flísalagt að hluta. Gert er ráð fyrir þvottavél og þurrkara með rakaþéttingu.
- Geymsla fylgir öllum íbúðum.
- Sér stæði í bílageymslu fylgir öllum íbúðum.
- Lagnaleið fyrir mögulega rafhleðslutengingu er við hvert bílastæði.
Nánari upplýsingar veitir Þórir Skarphéðinsson, lögmaður og lgf. í síma 8449591. - netfang: thorir@betristofan.is.
Heimasíða verkefnis þar sem jafnframt kemur fram hvaða íbúðir eru lausar: www.ashamar12-26.is
Byggingaraðili verkefnis er öflugur og traustur verktaki til fjölda ára: Eykt ehf. (www.eykt.is)
Allur frágangur, uppbygging og orkunotkun hússins tekur mið af leiðbeinandi stigakröfum Svansins: www.svanurinn.is
Skilalýsing seljanda: https://www.ashamar12-26.is/pdf/ashamar-12-18-skilalysing-2023-10-27.pdf
Bókið skoðun:
Þórir Skarphéðinsson, lögmaður og löggiltur fasteignasali, sími 844-9591 eða thorir@betristofan.is
Telma Rut Frímannsdóttir, Aðstoðarmaður fasteignasala í síma 772-3555 - eða telma@betristofan.is
Gjöld sem kaupandi þarf að standa straum af ef að kaupum verður:
1. Stimpilgjald af fasteignamati fasteignar er 0.8%, en 0,4% fyrir fyrstu kaup og 1,6% fyrir lögaðila.
2. Þinglýsingargjald: kaupsamningi, skuldabréfi, veðleyfi, afsali o.s.frv. er kr. 3.800 af hverju skjali.
3. Lántökukostnaður samkvæmt verðskrá viðkomandi lánastofnunar.
4. Umsýslugjald til fasteignasölu skv. gjaldskrá.
Skoðunarskylda kaupanda:
Í lögum um fasteignakaup nr. 40/2002 er kveðið á um ríka skoðunarskyldu kaupenda á fasteignum. Betri Stofan fasteignasala bendir væntanlegum kaupendum á að kynna sér vel ástand fasteigna við skoðun og fyrir tilboðsgerð og ef þurfa þykir að leita til sérfræðinga um nánari ástandsskoðun.