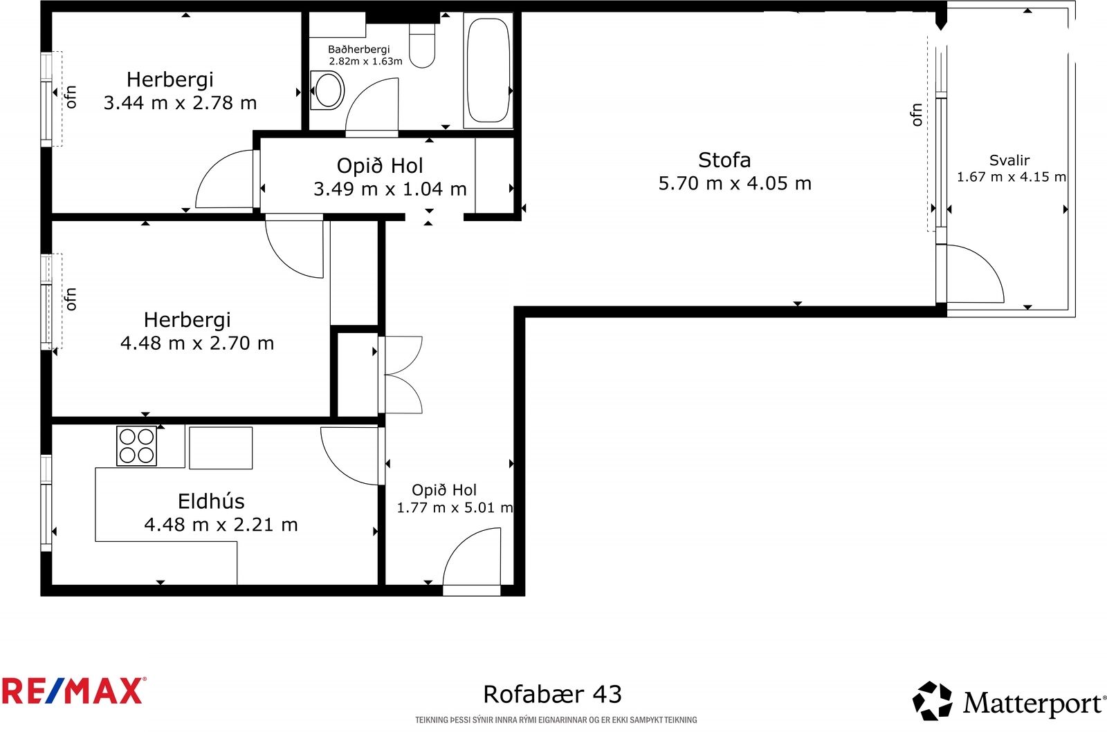
Rofabær, 110 Reykjavík