Löggiltir fasteignasalar innan Félags fasteignasala:
Hannes Steindórsson
Bogi Molby Pétursson
Guðrún Antonsdóttir
Heimir Hallgrímsson
Hrafnkell P. H. Pálmason
Viðar Marinósson
Elías Haraldsson
Kristján Þórir Hauksson
Albert Bjarni Úlfarsson
Ragnar Þorsteinsson
Þórey Ólafsdóttir
Andri Freyr Halldórsson
Upplýsingar
Verðsaga
Byggt 1953
131,7 m²
3 herb.
1 baðherb.
3 svefnh.
Þvottahús
Bílskúr
Sameiginl. inngangur
Lýsing
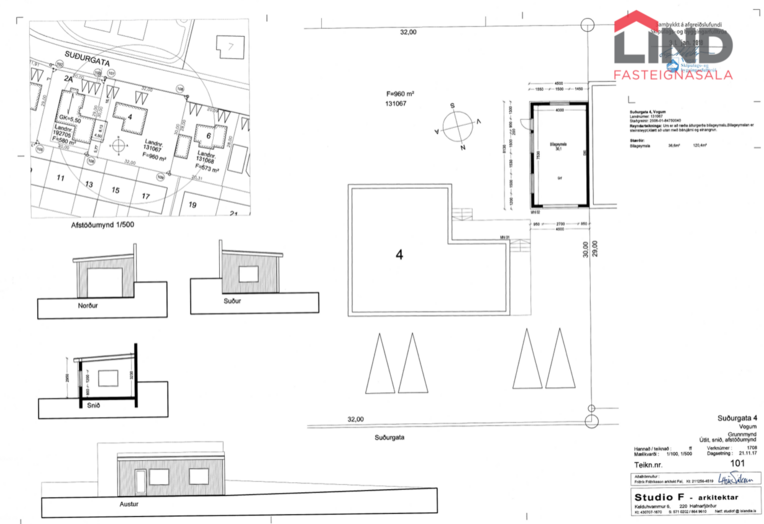
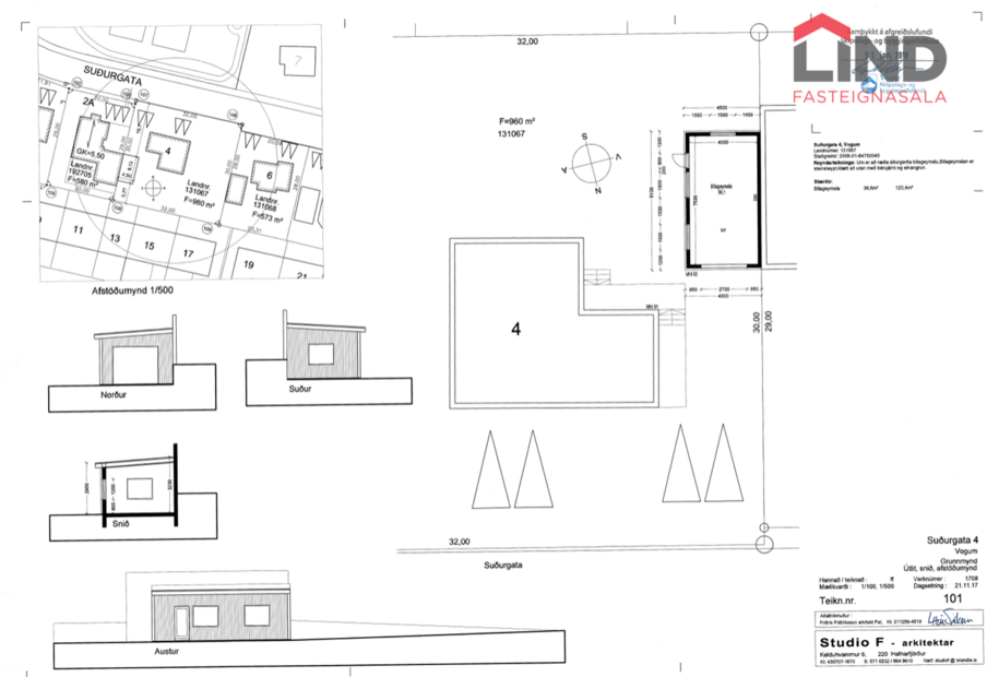
Lind kynnir neðri sérhæð í tvíbýlishúsi sem er 4ra herbergja íbúð ásamt 36,6 fm. bílskúr.
Eignin er á frábærum stað, á móti leikskóla og stutt í skólann.
Lýsing eignar:
Anddyri með flísum á gólfi.
Hol með parketi á gólfi.
Stofa með plastparketi á gólfi.
Bað með flísum á gólfi, sturtuklefi og innrétting.
Þrjú svefnherbergi með plastparekti á gólfi, skápur í einu.
Eldhús með plastparketi á gólfi og innrétting.
Bílskúr er sérstæður á lóð 36,6 fm.
Lóð er ræktuð, möl í innkeyrslu.
Íbúðin var uppgerð árið 2017 m.a. nýtt frárennsli, gluggar og gler, ofnalagnir og ofnar, nýlega málað ofl.
Járn á þaki endurnýjað 2023.
Suðurgata 4, 190 Vogar, nánar tiltekið eign merkt 01-01, fastanúmer 209-6531 ásamt öllu því sem eigninni fylgir, þar með talið tilheyrandi lóðar og sameignarréttindi.
Eignin Suðurgata 4 er skráð sem hér segir hjá FMR: Eign 209-6531, birt stærð 131.7 fm.
Nánari upplýsingar veita:
Hrafnkell P. H. Pálmason Löggiltur fasteignasali / 690 8236 / hrafnkell@fastlind.is
Atli Karl Pálmason Aðstoðarmaður fasteignasala / 662 4252 / atli@fastlind.is
-----------------------------------------------------------------------
Gjöld sem kaupandi þarf að standa straum af vegna kaupanna:
1. Stimpilgjald af kaupsamningi - 0.8% af heildarfasteignamati / 1.6% fyrir lögaðila
Fyrstu kaup - 0,4% af heildarfasteignamati
2. Þinglýsingagjald af kaupsamningi, veðskuldabréfi, veðleyfi o.fl.- kr. 2.700 af hverju skjali.
3. Lántökugjald lánastofnunar
4. Umsýsluþóknun til fasteignasölu, sbr.kauptilboð.
Eignin er á frábærum stað, á móti leikskóla og stutt í skólann.
Lýsing eignar:
Anddyri með flísum á gólfi.
Hol með parketi á gólfi.
Stofa með plastparketi á gólfi.
Bað með flísum á gólfi, sturtuklefi og innrétting.
Þrjú svefnherbergi með plastparekti á gólfi, skápur í einu.
Eldhús með plastparketi á gólfi og innrétting.
Bílskúr er sérstæður á lóð 36,6 fm.
Lóð er ræktuð, möl í innkeyrslu.
Íbúðin var uppgerð árið 2017 m.a. nýtt frárennsli, gluggar og gler, ofnalagnir og ofnar, nýlega málað ofl.
Járn á þaki endurnýjað 2023.
Suðurgata 4, 190 Vogar, nánar tiltekið eign merkt 01-01, fastanúmer 209-6531 ásamt öllu því sem eigninni fylgir, þar með talið tilheyrandi lóðar og sameignarréttindi.
Eignin Suðurgata 4 er skráð sem hér segir hjá FMR: Eign 209-6531, birt stærð 131.7 fm.
Nánari upplýsingar veita:
Hrafnkell P. H. Pálmason Löggiltur fasteignasali / 690 8236 / hrafnkell@fastlind.is
Atli Karl Pálmason Aðstoðarmaður fasteignasala / 662 4252 / atli@fastlind.is
-----------------------------------------------------------------------
Gjöld sem kaupandi þarf að standa straum af vegna kaupanna:
1. Stimpilgjald af kaupsamningi - 0.8% af heildarfasteignamati / 1.6% fyrir lögaðila
Fyrstu kaup - 0,4% af heildarfasteignamati
2. Þinglýsingagjald af kaupsamningi, veðskuldabréfi, veðleyfi o.fl.- kr. 2.700 af hverju skjali.
3. Lántökugjald lánastofnunar
4. Umsýsluþóknun til fasteignasölu, sbr.kauptilboð.
Ár
Fasteignamat
Kaupverð
Stærð
Fermetraverð
29. mar. 2017
12.000.000 kr.
23.300.000 kr.
124.3 m²
187.450 kr.
21. des. 2016
12.000.000 kr.
11.000.000 kr.
124.3 m²
88.496 kr.
Byggt á upplýsingum úr Þjóðskrá Íslands frá 2006-2026