Upplýsingar
Byggt 2009
0 m²
0 herb.
Sérinngangur
Lýsing
Hraunhamar fasteignasala kynnir: Afar gott og vandað 94,5 fm hesthús fyrir 7 hesta við Hlíðarenda 7 Kópavogi á svæði hestamannafélagsins Spretts.
Húsið er viðhaldslétt enda byggt út forsteyptum einingum. Húsið er parhús (tvær einingar) og er þetta minni einingin í húsinu, þ.e. suður endinn.
Rúmgóð aðkoma og lóð. Malbikuð bílastæði og pláss fyrir hestakerru meðfram húsi. Allt sér. Hiti í gólfum. Hitaveita.
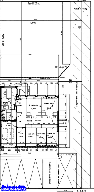
Hesthúsið er samkvæmt þjóðskrá skráð 94,5 fm á einum grunnfleti.
Hesthúsið skiptist m.a. þannig:
Hesthús með þremur rúmgóðum eins hesta stíum og tveimur rúmgóðum 2ja hesta stíum, fóðurgangur er rúmgóður. Góð lofthæð. Fín vifta er í húsinu.
Tvær innkeyrsludyr eru í hesthúsinu og þrjár gönguhurðir. Vélmokað hús. Plast og ryðfrítt efni í milligerðum, steyptir frontar. Stórt sérgerði.
Hlaða er rúmgóð með smá millilofti, innk.dyr þar.
Kaffistofa er rúmgóð með glugga.
Góð snyrting.
Rúmgóður skápur á gangi.
Flísar á kaffistofu,forstofu, gangi og hluta af hlöðu.
Þetta er mjög áhugavert og gott hesthús til að skoða, er á besta stað í Spretti, stutt í reiðhöllina ofl.
Nánari uppl. gefur Helgi Jón Harðarson sölustj. s. 893-2233 helgi@hraunhamar.is og
Glódís Helgadóttir lgf. s. 659-0510 glodis@hraunhamar.is
Húsið er viðhaldslétt enda byggt út forsteyptum einingum. Húsið er parhús (tvær einingar) og er þetta minni einingin í húsinu, þ.e. suður endinn.
Rúmgóð aðkoma og lóð. Malbikuð bílastæði og pláss fyrir hestakerru meðfram húsi. Allt sér. Hiti í gólfum. Hitaveita.
Hesthúsið er samkvæmt þjóðskrá skráð 94,5 fm á einum grunnfleti.
Hesthúsið skiptist m.a. þannig:
Hesthús með þremur rúmgóðum eins hesta stíum og tveimur rúmgóðum 2ja hesta stíum, fóðurgangur er rúmgóður. Góð lofthæð. Fín vifta er í húsinu.
Tvær innkeyrsludyr eru í hesthúsinu og þrjár gönguhurðir. Vélmokað hús. Plast og ryðfrítt efni í milligerðum, steyptir frontar. Stórt sérgerði.
Hlaða er rúmgóð með smá millilofti, innk.dyr þar.
Kaffistofa er rúmgóð með glugga.
Góð snyrting.
Rúmgóður skápur á gangi.
Flísar á kaffistofu,forstofu, gangi og hluta af hlöðu.
Þetta er mjög áhugavert og gott hesthús til að skoða, er á besta stað í Spretti, stutt í reiðhöllina ofl.
Nánari uppl. gefur Helgi Jón Harðarson sölustj. s. 893-2233 helgi@hraunhamar.is og
Glódís Helgadóttir lgf. s. 659-0510 glodis@hraunhamar.is