Upplýsingar
Verðsaga
Byggt 2000
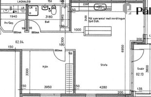
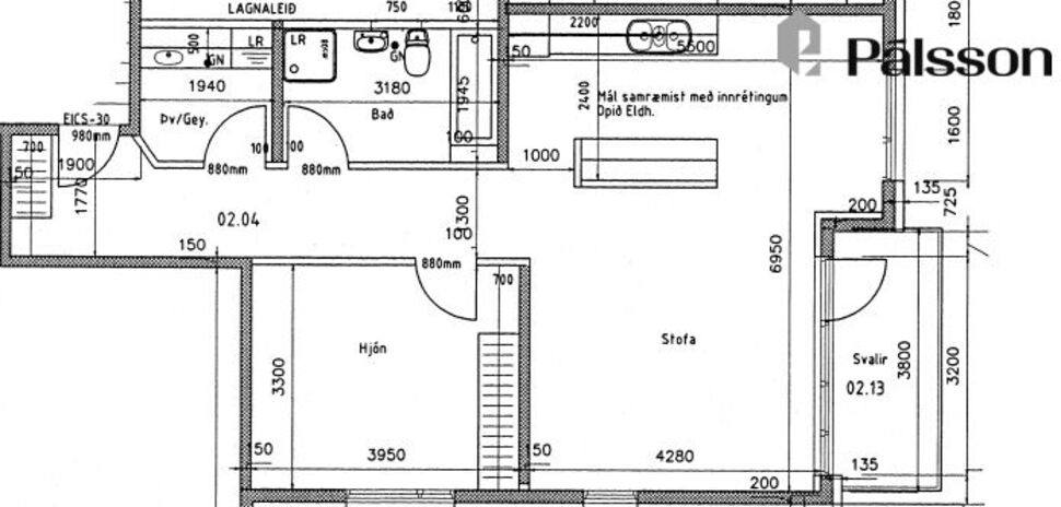
81,8 m²
2 herb.
1 baðherb.
1 svefnh.
Þvottahús
Sameiginl. inngangur
Lýsing
-Svalir með útsýni
-Lyftuhúsnæði
-Þvottahús innan íbúðar
-Laus strax
Íbúðin er 81,8 fm samkvæmt HMS.
Tveggja herbergja íbúð með möguleika á að útbúa aukaherbergi.
Skráð á annarri hæð en gengið er beint inn á aðra hæð frá bílastæði.
Í sameign er nýlega búið að setja upp myndavélakerfi fyrir dyrasíma.
Lyftan er einnig nýleg.
Íbúðin er parketlögð í herbergi og alrými en votrými flísalögð.
Baðherbergið er mjög rúmgott og útbúið sér baðkari og sér sturtu.
Svalir með flottu útsýni og fordæmi eru fyrir svalalokun.
Sameign snyrtileg bæði að innan sem utan.
Næg bílastæði á sameiginlegu bílaplani.
Góð eign með marga möguleika á góðum stað í kjarna Kópavogs.
Nánari upplýsingar veita:
Ævar Jóhanns Lgf. s: 861-8827 eða aj@palssonfasteignasala.is
Nánari lýsing:
Gengið er inn í forstofu með fatahengi og góðum fataskáp.
Við tekur gangur með góðu veggplássi.
Þar er á vinstri hönd rúmgott þvottahús með tengi fyrir þvottavél og þurrkara.
Baðherbergi er flísalagt á gólfi og vatnsálagsstöðum. Útbúið sturtu og baðkari, nýlegri vaskinnrétting með skúffuplássi og handlaug, speglaskáp, ofni og salerni.
Svefnherbergi er stórt, parketlagt og með miklu skápaplássi.
Þvottahús er flísalagt, með vaski og tengi fyrir þvottavél og þurrkara.
Stofa er björt og parketlögð. Útgengt er úr henni út á útsýnissvalir sem horfa yfir í átt að Smáralind.
Eldhúsið tengist stofu þó það sé skilrúms veggur í miðju rýminu. Þar er nýlegur bakaraofn og helluborð, vifta og snyrtileg innrétting með vaski og nýlegum blöndunartækjum.
Uppþvottavél og ísskápur geta fylgt með.
Sérgeymsla er rúmgóð og með glugga með opnanlegu fagi.
Sameiginleg hjóla- og vagnageymsla í sameign.
Lindaskóli, leikvellir og leikskóli í göngufæri.
Smáralind, Salalaug og útivistarsvæði skammt undan.
Tekið er fram að seljendur eru erfingjar að eigninni og hafa ekki búið í íbúðinni.
Ástandsskýrsla seljanda liggur því ekki fyrir.
www.eignavakt.is
www.verdmat.is
Góð ráð fyrir kaupendur / seljendur
Gjöld sem kaupandi þarf að standa straum af vegna kaupanna:
1. Stimpilgjald af kaupsamningi - 0.8% af heildarfasteignamati / 1.6% fyrir lögaðila. (0.4% við fyrstu kaup einstaklinga).
2. Þinglýsingagjald af kaupsamningi, veðskuldabréfi, veðleyfi o.fl.- kr. 3,800 af hverju skjali.
3. Lántökugjald lánastofnunar - samanber gjaldskrá viðkomandi lánastofnunar.
4. Umsýsluþóknun til fasteignasölu, sbr.kauptilboð.
Um skoðunarskyldu:
Í lögum um fasteignakaup nr. 40/2002 er kveðið á um ríka skoðunarskyldu kaupenda á fasteignum. Pálsson fasteignasala bendir væntanlegum kaupendum á að kynna sér vel ástand fasteigna við skoðun og fyrir tilboðsgerð og ef þurfa þykir að leita til sérfræðinga um nánari ástandsskoðun.
-Lyftuhúsnæði
-Þvottahús innan íbúðar
-Laus strax
Íbúðin er 81,8 fm samkvæmt HMS.
Tveggja herbergja íbúð með möguleika á að útbúa aukaherbergi.
Skráð á annarri hæð en gengið er beint inn á aðra hæð frá bílastæði.
Í sameign er nýlega búið að setja upp myndavélakerfi fyrir dyrasíma.
Lyftan er einnig nýleg.
Íbúðin er parketlögð í herbergi og alrými en votrými flísalögð.
Baðherbergið er mjög rúmgott og útbúið sér baðkari og sér sturtu.
Svalir með flottu útsýni og fordæmi eru fyrir svalalokun.
Sameign snyrtileg bæði að innan sem utan.
Næg bílastæði á sameiginlegu bílaplani.
Góð eign með marga möguleika á góðum stað í kjarna Kópavogs.
Nánari upplýsingar veita:
Ævar Jóhanns Lgf. s: 861-8827 eða aj@palssonfasteignasala.is
Nánari lýsing:
Gengið er inn í forstofu með fatahengi og góðum fataskáp.
Við tekur gangur með góðu veggplássi.
Þar er á vinstri hönd rúmgott þvottahús með tengi fyrir þvottavél og þurrkara.
Baðherbergi er flísalagt á gólfi og vatnsálagsstöðum. Útbúið sturtu og baðkari, nýlegri vaskinnrétting með skúffuplássi og handlaug, speglaskáp, ofni og salerni.
Svefnherbergi er stórt, parketlagt og með miklu skápaplássi.
Þvottahús er flísalagt, með vaski og tengi fyrir þvottavél og þurrkara.
Stofa er björt og parketlögð. Útgengt er úr henni út á útsýnissvalir sem horfa yfir í átt að Smáralind.
Eldhúsið tengist stofu þó það sé skilrúms veggur í miðju rýminu. Þar er nýlegur bakaraofn og helluborð, vifta og snyrtileg innrétting með vaski og nýlegum blöndunartækjum.
Uppþvottavél og ísskápur geta fylgt með.
Sérgeymsla er rúmgóð og með glugga með opnanlegu fagi.
Sameiginleg hjóla- og vagnageymsla í sameign.
Lindaskóli, leikvellir og leikskóli í göngufæri.
Smáralind, Salalaug og útivistarsvæði skammt undan.
Tekið er fram að seljendur eru erfingjar að eigninni og hafa ekki búið í íbúðinni.
Ástandsskýrsla seljanda liggur því ekki fyrir.
www.eignavakt.is
www.verdmat.is
Góð ráð fyrir kaupendur / seljendur
Gjöld sem kaupandi þarf að standa straum af vegna kaupanna:
1. Stimpilgjald af kaupsamningi - 0.8% af heildarfasteignamati / 1.6% fyrir lögaðila. (0.4% við fyrstu kaup einstaklinga).
2. Þinglýsingagjald af kaupsamningi, veðskuldabréfi, veðleyfi o.fl.- kr. 3,800 af hverju skjali.
3. Lántökugjald lánastofnunar - samanber gjaldskrá viðkomandi lánastofnunar.
4. Umsýsluþóknun til fasteignasölu, sbr.kauptilboð.
Um skoðunarskyldu:
Í lögum um fasteignakaup nr. 40/2002 er kveðið á um ríka skoðunarskyldu kaupenda á fasteignum. Pálsson fasteignasala bendir væntanlegum kaupendum á að kynna sér vel ástand fasteigna við skoðun og fyrir tilboðsgerð og ef þurfa þykir að leita til sérfræðinga um nánari ástandsskoðun.
Ár
Fasteignamat
Kaupverð
Stærð
Fermetraverð
16. nóv. 2016
25.250.000 kr.
32.000.000 kr.
81.8 m²
391.198 kr.
Byggt á upplýsingum úr Þjóðskrá Íslands frá 2006-2026