Löggiltir fasteignasalar innan Félags fasteignasala:
Sigurður Maack Gunnarsson
Svanþór Einarsson
Theodór Emil Karlsson
Steingrímur Benediktsson
Vista
fjölbýlishús

Asparskógar 27

300 Akranes

74.700.000 kr.

753.024 þ.kr./m2
Fasteignanúmer

F2359642

Fasteignamat

62.900.000 kr.

Brunabótamat

59.950.000 kr.

Áhvílandi

0 kr.

Arion banki – Reikna lán
Upplýsingar
Verðsaga
svg
Byggt 2017
svg
99,2 m²
svg
3 herb.
svg
1 baðherb.
svg
2 svefnh.
svg
Þvottahús
svg
Útsýni
svg
Lyfta

Lýsing

** Hafðu samband og bókaðu skoðun - Theodór Emil Karlsson, löggiltur fasteignasali - teddi@fastmos.is eða 690-8040  ​- Svanþór Einarsson, löggiltur fasteignasali - svanthor@fastmos.is eða 698-8555 - Steingrímur Benediktsson, löggiltur fasteignasali - steingrimur@fastmos.is eða 862-9416 **
 
Fasteignasala Mosfellsbæjar kynnir:
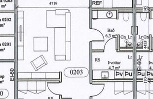
 Falleg og vel skipulögð 99,2 m2, 3ja herbergja íbúð á 2.hæð. Eignin er skráð 99,2 en þar af íbúð 92,6 m2 og geymsla 6,6 m2. Íbúðin skiptist í forstofu, stofu, eldhús, tvö svefnherbergi, baðherbergi og þvottahús. Þvottahús innan íbúðar. Geymsla á hæð. Svalir með svalalokun í suðausturátt. Búið er að setja upp hleðslustöðvar fyrir rafbíla á lóð við enda hússins. Góð staðsetning þar sem stutt er í verslun, þjónustu, leikskóla og grunnskóla.

Smelltu hér til að fá söluyfirlit sent strax.

Nánari lýsing:

Forstofa er með flísum á gólfi og fataskáp.
Hjónaherbergi er með parketi á gólfi og fataskáp.
Svefnherbergi nr. 2 er með parket á gólfi og fataskáp.
Eldhús er með fallegri innréttingu frá Voke3. Í innréttingu er innbyggð uppþvottavél, niðurfelldur vaskur, ofn og helluborð. Gert er ráð fyrir stórum ísskáp í innréttingu
Stofa/borðstofa er í opnu rými með parketi á gólfi. Úr stofu er gengið út á svalir í suðausturátt með svalalokun.
Baðherbergi er með flísum á gólfi og fallegri innréttingu. Á baði er 'walk in' sturta, vegghengd salerni og handklæða ofn.
Þvottahús er inn af baðherbergi. Flísar á gólfi og góð innrétting þar sem gert er ráð fyrir þvottavél og þurrkara í vinnuhæð
Sérgeymsla fylgir íbúðinni og er í sameign á hæðinni ásamt sameiginlegri hjóla- og vagnageymslu.

Verð kr. 74.700.000,-



Um skoðunar- og aðgæsluskyldu:
Í lögum um fasteignakaup nr. 40/2002 er kveðið á um ríka skoðunarskyldu kaupenda á fasteignum. Fasteignasala Mosfellsbæjar skorar því á væntanlega kaupendur að kynna sér vel ástand fasteigna fyrir kauptilboðsgerð og leita til þar til bærra sérfræðinga um nánari skoðun ef með þarf.

Forsendur söluyfirlits:
Söluyfirlit er samið af fasteignasala í samræmi við ákvæði laga nr. 70/2015. Þær upplýsingar sem fram koma í söluyfirliti þessu eru sóttar í opinberar skrár, til seljanda sjálfs og eftir atvikum til húsfélags. Seljandi veitir upplýsingar um eign í samræmi við upplýsingaskyldu laga um fasteignakaup nr. 40/2002. Fasteignasali sannreynir að þær upplýsingar séu réttar með sjónskoðun á eigninni.
Fasteignasali getur ekki fullyrt um ástand og eiginleika þeirra hluta fasteigna sem ekki eru aðgengilegir og sjást ekki berum augum, t.d. lagnir, dren, skólp og þak.

Gjöld sem kaupandi þarf að greiða vegna kaupa:
1. Stimpilgjald af kaupsamningi sem er hlutfall af fasteignamati. Stimpilgjald er 0,8% fyrir einstaklinga (0,4% við fyrstu kaup) og 1,6% fyrir lögaðila.
2. Þinglýsingargjald af kaupsamningi, veðskuldabréfum, veðleyfum o.fl. Þinglýsingargjald er kr. 3.800,- fyrir hvert skjal.
3. Lántökugjald lánastofnunar - er skv. gjaldskrá viðkomandi lánastofnunar.
4. Umsýslugjald til fasteignasölu skv. kauptilboði.
5. Þegar um nýbyggingu er að ræða greiðir kaupandi skipulagsgjald, 0,3% af endanlegu brunabótamáti, þegar það er lagt á af viðkomandi sveitarfélagi.

img
Theodór Emil Karlsson
Lögg.fasteignasali innan félags fasteignasala
Fasteignasala Mosfellsbæjar
Þverholti 2, 270 Mosfellsbæ
Fasteignasala Mosfellsbæjar

Fasteignasala Mosfellsbæjar

Þverholti 2, 270 Mosfellsbæ
phone
img

Theodór Emil Karlsson

Þverholti 2, 270 Mosfellsbæ
Ár
Fasteignamat
Kaupverð
Stærð
Fermetraverð
17. apr. 2018
20.800.000 kr.
38.894.000 kr.
99.2 m²
392.077 kr.
Byggt á upplýsingum úr Þjóðskrá Íslands frá 2006-2026
Fasteignasala Mosfellsbæjar

Fasteignasala Mosfellsbæjar

Þverholti 2, 270 Mosfellsbæ
phone

Theodór Emil Karlsson

Þverholti 2, 270 Mosfellsbæ