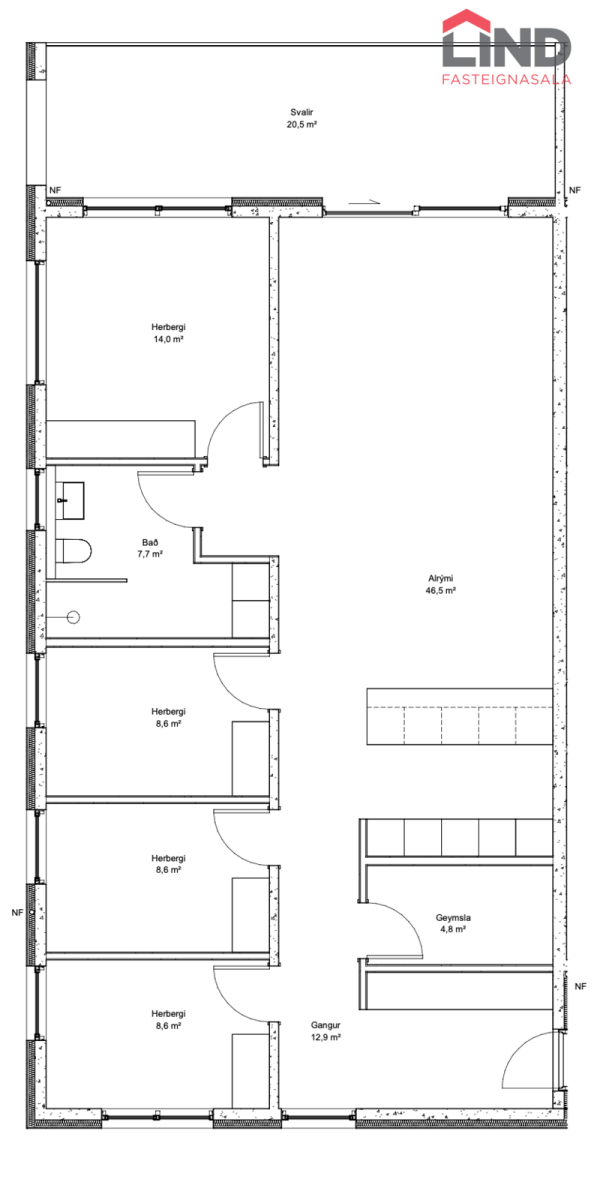
HRAFNABORG 4 HMS, 190 Vogar