Löggiltir fasteignasalar innan Félags fasteignasala:
Ástþór Reynir Guðmundsson
Vigdís R. S. Helgadóttir
Guðbjörg Helga Jóhannesdóttir
Gylfi Jens Gylfason
Sigrún Matthea Sigvaldadóttir
Sveinn Gíslason
Páll Guðmundsson
Þórarinn Arnar Sævarsson
Berglind Hólm Birgisdóttir
Þorsteinn Gíslason
Guðrún Lilja Tryggvadóttir
Brynjar Ingólfsson
Guðný Þorsteinsdóttir
Bjarni Blöndal
Þorsteinn Ólafs
Þórdís Björk Davíðsdóttir
Jóhann Kristinn Jóhannesson
Bjarný Björg Arnórsdóttir
Salvör Þóra Davíðsdóttir
Magga Sigríður Gísladóttir
Upplýsingar
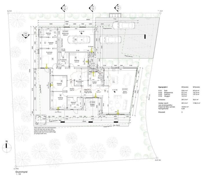
281,9 m²
5 herb.
3 baðherb.
4 svefnh.
Þvottahús
Bílskúr
Sérinngangur
Laus strax
Lýsing
RE/MAX & Bjarný Björg Arnórsdóttir Lgf kynnir:
Vel staðsett og glæsilegt 281,9 fm fimm herbergja einbýlishús með innbyggðum bílskúr við Kjarrprýði 2, 210 Garðabær. Eignin skiptist þannig að íbúðarhlutinn er 234,4 og 47,5 fm bílskúr. Hátt er til lofts, gólfsíðir gluggar og gólfhiti.
Frábært skipulag og staðsetning á húsinu í þessu vinsæla hverfi. Stutt í helstu þjónustu og falleg útivistarsvæði.
Nánari upplýsingar gefur :
Bjarný Björg Arnórsdóttir löggiltur fasteignasali í síma 694-2526 / bjarny@remax.is
Nánari lýsing:
Húsið skilast eins og eignin er við skoðun (tilbúið til innréttingar) Fullbúið að utan, skjólgóður og stór garður með verönd. Góð aðkoma er að húsinu með snjóbræðslu og stóru hellulögðu bílstæði fyrir framan bílskúr. Eignin er laus til afhendingar í kaupsamning.
Eignin skiptist í forstofu, gestsalerni, tvö baðherbergi, stofu, borðstofu, eldhús, sjónvarpshol, hjónaherbergi með fataherbergi og sér baðherbergi, þrjú barnaherbergi, þvotthús og bílskúr. Hátt er til lofts, gólfsíðir gluggar og gólfhiti.
Frábært skipulag sem hentar vel fyrir fjölskyldufólk. Stutt er í náttúruna og fallegar gönguleiðir.
Eignin afhendist eins og hún er við skoðun - tilbúin til innréttinga en búið er að grunna veggi í húsinu, gólf eru flotuð. Bílskúr og þvottahús er frágengið með flísum á gólfi og búið að mála eina umferð. Loftskiptikerfi er í húsinu, góð loftræsting bætir gæði inniloft og dregur úr uppsöfnun raka innandyra. Lóð er frágengin að mestu. Lagnaleið fyrir heitan pott er komin útfyrir sökkul. Rafmagnstöflur komnar upp með vinnurafmagni, öll útiljós tengd. Innbyggð tæki frá Ísleifi Jónssyni í sturtum.
Húsið stendur til boða að fá afhent á mismunandi stigum, það er að segja með eða án innréttinga og svo framvegis. Kaupandi skal sjá um að fá nýja meistara að verkinu frá og með afhendingardegi eða semja við sitjandi meistara.
Kaupandi greiðir skipulagsgjald þegar það verður lagt á (0,3% af brunabótamati) yfirleitt að lokinni lokaúttekt.
Tengdir aðilar:
Byggingaraðili: Eyrar braggi ehf.
Hönnuður: Bent Larsen Fróðason
Hönnun burðarvirkis: Björgvin Víglundsson
Lagnahönnun: Björgvin Víglundsson
Raflagnahönnun: Rafhönnun ehf
Byggingastjóri: Ásberg Kristján Pétursson
Nánari upplýsingar gefur :
Bjarný Björg Arnórsdóttir löggiltur fasteignasali í síma 694-2526 / bjarny@remax.is
Gjöld sem kaupandi þarf að standa straum af vegna kaupanna:
1. Stimpilgjald af kaupsamningi - 0,8% af heildarfasteignamati hjá einstaklingum. (Sé um fyrstu kaup að ræða er stimpilgjald af kaupsamningi 0,4%)
2. Stimpilgjald af kaupsamningi - 1,6% af heildarfasteignamati hjá lögaðilum.
3. Þinglýsingargjald af kaupsamningi, veðskuldabréfi, veðleyfi o.fl. 2.500 kr. af hverju skjali.
4. Lántökugjald lánastofnunar - sjá heimasíður lánastofnanna.
5. Umsýslugjald til fasteignasölu 69.900. kr. m.vsk.
Í lögum um fasteignakaup nr. 40/2002 er kveðið á um ríka skoðunarskyldu kaupenda á fasteignum. Vill RE/MAX því skora á væntanlega kaupendur að kynna sér vel ástand fasteigna fyrir kauptilboðsgerð og leita til þar til bærra sérfræðinga um nánari skoðun.
Vel staðsett og glæsilegt 281,9 fm fimm herbergja einbýlishús með innbyggðum bílskúr við Kjarrprýði 2, 210 Garðabær. Eignin skiptist þannig að íbúðarhlutinn er 234,4 og 47,5 fm bílskúr. Hátt er til lofts, gólfsíðir gluggar og gólfhiti.
Frábært skipulag og staðsetning á húsinu í þessu vinsæla hverfi. Stutt í helstu þjónustu og falleg útivistarsvæði.
Nánari upplýsingar gefur :
Bjarný Björg Arnórsdóttir löggiltur fasteignasali í síma 694-2526 / bjarny@remax.is
Nánari lýsing:
Húsið skilast eins og eignin er við skoðun (tilbúið til innréttingar) Fullbúið að utan, skjólgóður og stór garður með verönd. Góð aðkoma er að húsinu með snjóbræðslu og stóru hellulögðu bílstæði fyrir framan bílskúr. Eignin er laus til afhendingar í kaupsamning.
Eignin skiptist í forstofu, gestsalerni, tvö baðherbergi, stofu, borðstofu, eldhús, sjónvarpshol, hjónaherbergi með fataherbergi og sér baðherbergi, þrjú barnaherbergi, þvotthús og bílskúr. Hátt er til lofts, gólfsíðir gluggar og gólfhiti.
Frábært skipulag sem hentar vel fyrir fjölskyldufólk. Stutt er í náttúruna og fallegar gönguleiðir.
Eignin afhendist eins og hún er við skoðun - tilbúin til innréttinga en búið er að grunna veggi í húsinu, gólf eru flotuð. Bílskúr og þvottahús er frágengið með flísum á gólfi og búið að mála eina umferð. Loftskiptikerfi er í húsinu, góð loftræsting bætir gæði inniloft og dregur úr uppsöfnun raka innandyra. Lóð er frágengin að mestu. Lagnaleið fyrir heitan pott er komin útfyrir sökkul. Rafmagnstöflur komnar upp með vinnurafmagni, öll útiljós tengd. Innbyggð tæki frá Ísleifi Jónssyni í sturtum.
Húsið stendur til boða að fá afhent á mismunandi stigum, það er að segja með eða án innréttinga og svo framvegis. Kaupandi skal sjá um að fá nýja meistara að verkinu frá og með afhendingardegi eða semja við sitjandi meistara.
Kaupandi greiðir skipulagsgjald þegar það verður lagt á (0,3% af brunabótamati) yfirleitt að lokinni lokaúttekt.
Tengdir aðilar:
Byggingaraðili: Eyrar braggi ehf.
Hönnuður: Bent Larsen Fróðason
Hönnun burðarvirkis: Björgvin Víglundsson
Lagnahönnun: Björgvin Víglundsson
Raflagnahönnun: Rafhönnun ehf
Byggingastjóri: Ásberg Kristján Pétursson
Nánari upplýsingar gefur :
Bjarný Björg Arnórsdóttir löggiltur fasteignasali í síma 694-2526 / bjarny@remax.is
Gjöld sem kaupandi þarf að standa straum af vegna kaupanna:
1. Stimpilgjald af kaupsamningi - 0,8% af heildarfasteignamati hjá einstaklingum. (Sé um fyrstu kaup að ræða er stimpilgjald af kaupsamningi 0,4%)
2. Stimpilgjald af kaupsamningi - 1,6% af heildarfasteignamati hjá lögaðilum.
3. Þinglýsingargjald af kaupsamningi, veðskuldabréfi, veðleyfi o.fl. 2.500 kr. af hverju skjali.
4. Lántökugjald lánastofnunar - sjá heimasíður lánastofnanna.
5. Umsýslugjald til fasteignasölu 69.900. kr. m.vsk.
Í lögum um fasteignakaup nr. 40/2002 er kveðið á um ríka skoðunarskyldu kaupenda á fasteignum. Vill RE/MAX því skora á væntanlega kaupendur að kynna sér vel ástand fasteigna fyrir kauptilboðsgerð og leita til þar til bærra sérfræðinga um nánari skoðun.