Löggiltir fasteignasalar innan Félags fasteignasala:
Hannes Steindórsson
Bogi Molby Pétursson
Guðrún Antonsdóttir
Heimir Hallgrímsson
Hrafnkell P. H. Pálmason
Viðar Marinósson
Elías Haraldsson
Kristján Þórir Hauksson
Albert Bjarni Úlfarsson
Ragnar Þorsteinsson
Þórey Ólafsdóttir
Andri Freyr Halldórsson
Upplýsingar
Verðsaga
Byggt 2014
153,4 m²
4 herb.
2 baðherb.
3 svefnh.
Þvottahús
Sameiginl. inngangur
Bílastæði
Lyfta
Lýsing
Nýtt á skrá! Lundur 4 Kópavogi - Glæsileg og mikið endurnýjuð 4ra herb. íbúð á 9. hæð!
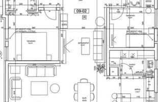
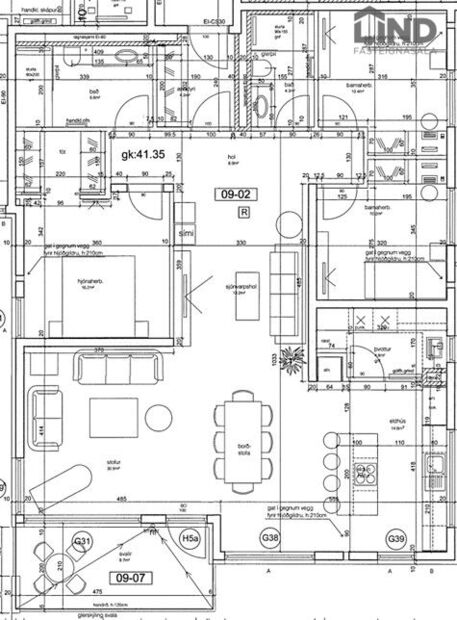
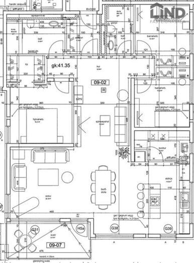
Lind fasteignasala / Heimir Hallgrímsson lögg. fasteignasali kynna til sölu glæsilega íbúð í vönduðu húsi byggðu af BYGG við Lund 4 í Kópavogi. Um er að ræða 153,4 fermetra íbúð í lyftuhúsi á 9. hæð með 3 svefnherbergjum, rúmgóðri stofu með gólfsíðum gluggum, fallegu endurnýjuðu eldhúsi með stórri eyju sem er opið við stofu, sjónvarpsstofu, rúmgóðum yfirbyggðum svölum, 2 endurnýjuðum baðherbergjum með sturtu og góðu þvottaherbergi. Gólfhiti í allri íbúðinni. Sérgeymsla í kjallara sem er 10,9 fermetrar og sérmerkt stæði í bílakjallara með rafhleðslustöð.
Árið 2023 var eldhúsið endurnýjað á afar smekklegan máta með vönduðum eldhúsinnréttingum og kvartssít steini á borðum. Eldhúseyja var stækkuð og komið fyrir afar vönduðum eldhústækjum frá Studio Line Siemens og Grohe blöndunartækjum. Sama ár voru bæði baðherbergi endurnýjuð með vönduðum flísum, blöndunartækjum og fallegri óbeinni lýsingu. Þá er búið að sérsmíða fallegar hillur við sjónvarpsstofu og umhverfis sjónvarps (sérsmíði var í höndum Við og við sf.). Auk þess var klæðaskápur í forstofu og innréttingar í þvottaherbergi endurnýjaðar.
Sameign hússins er afar snyrtileg með flísum á ytra anddyri og teppum á sameign. Tvær lyftur er í húsinu sem ganga niður í bílakjallara. Rafmagnshurðaropnun er á aðalhurðum í sameign. Myndavéladyrasími er í húsinu. Þvottastæði í bílakjallara. Lóðin er snyrtileg og frágengin með hellulagðri stétt fyrir framan hús með snjóbræðslu og sameiginlegum malbikuðum stæðum.
Við hönnun hússins var haft að leiðarljósi að hafa íbúðirnar bjartar og rúmgóðar með stórum gluggum sem ná niður í gólf og hita í gólfum. Húsið eru álklædd og eru því viðhaldslítil. Stutt er í Fossvoginn með sinni einstöku fegurð, Öskjuhlíðin og rómaðar gönguleiðir tengja Lundinn saman á þann hátt að gott jafnvægi er á milli byggðar og náttúru. Hverfið er byggt upp með sex kjörnum og stórum grænum svæðum sem flæða á milli þeirra. Stutt er í margvíslega þjónustu og afþreyingu. Smáralindin, Kringlan svo ekki sé minnst á menningarlífið í Gjánni, s.s. Salinn og Gerðarsafn er steinsnar frá Lundi.
Nánari lýsing:
Forstofa: Með parketi á gólfi, góðum skápum og fallegum spegli með baklýsingu.
Sjónvarpsstofa: Er rúmgóð, með parketi á gólfi með fallegum sérsmíðuðum hillum og ramma utan um sjónvarp (frá Við og við sf.) ásamt sérsmíðuðum flísalögðum skenk frá Handverk.
Stofa: Er rúmgóð, með parketi á gólfi og stórum gólfsíðum gluggum til suðurs og vesturs sem gerir hana virkilega bjarta. Stofa rúmar vel setustofu og borðstofu. Útgengi á svalir frá stofu.
Svalir: Er rúmgóðar með viðarkubbum á svalagólfi. Yfirbyggðar með opnanlegri svalalokun.
Eldhús: Var endurnýjað á afar fallegan máta árið 2023. Gott skápa- og vinnupláss með tækjaskáp og vönduðum Siemens Studio Line eldhústækjum. Fallegur kvartssít steinn á borðum. Eldhús er með stórri eldhúseyju og opið við stofu. Tveir Siemens bakaraofnar (annar einnig gufuofn), Siemens spansuðu helluborð með innbyggðri viftu, innb. kæliskápur og innb. uppþvottavél. Undirfelldur vaskur og Grohe blöndunartæki. Gólfsíður gluggi til suðurs og annar gluggi til austurs sem hleypir inn góðri vinnubirtu.
Þvottaherbergi: Er staðsett inn af eldhúsi. Flísar á gólfi og endurnýjaðar innréttingar með vinnuborði og vaski. Tengi fyrir þvottavél og þurrkara ásamt stæði fyrir auka kæliskáp/frysti. Gluggi til austurs og gott skápapláss.
Baðherbergi I: Var endurnýjað árið 2023. Flísar á gólfi og veggjum. Flísalögð sturta með innb. Grohe blöndunartækjum. Niðurtekið loft að hluta með fallegri óbeinni lýsingu. Handklæðaofn, upphengt salerni, og innrétting við vask með marmara og Grohe blöndunartækjum.
Hjónaherbergi: Með parketi á gólfi og glugga til vesturs. Gengið inn í fataherbergi frá hjónaherbergi.
Fataherbergi: Er staðsett inn af hjónaherbergi. Parket á gólfi og góðir klæðaskápar.
Svefnherbergi II: Með parketi á gólfi, skápum og glugga til austurs.
Svefnherbergi III: Með parketi á gólfi, skápum og glugga til austurs.
Baðherbergi II: Var endurnýjað árið 2023. Flísar á gólfi og á veggjum og flísalögð sturta með glerþili. Falleg innrétting við vask, upphengt salerni, handklæðaofn og útloftun.
Sérmerkt bílastæði: Er vel staðsett í bílakjallara (númer 52).
Sérgeymsla: Í kjallara er 10,9 fermetrar að stærð. Epoxy máluð og með útloftun.
Hjóla- og vagnageymsla: Eru tvær og eru staðsettar í kjallara.
Nánari upplýsingar hjá:
Heimi Hallgrímssyni lögg. fasteignasala í síma 849-0672 eða á netfanginu heimir@fastlind.is
Lind fasteignasala / Heimir Hallgrímsson lögg. fasteignasali kynna til sölu glæsilega íbúð í vönduðu húsi byggðu af BYGG við Lund 4 í Kópavogi. Um er að ræða 153,4 fermetra íbúð í lyftuhúsi á 9. hæð með 3 svefnherbergjum, rúmgóðri stofu með gólfsíðum gluggum, fallegu endurnýjuðu eldhúsi með stórri eyju sem er opið við stofu, sjónvarpsstofu, rúmgóðum yfirbyggðum svölum, 2 endurnýjuðum baðherbergjum með sturtu og góðu þvottaherbergi. Gólfhiti í allri íbúðinni. Sérgeymsla í kjallara sem er 10,9 fermetrar og sérmerkt stæði í bílakjallara með rafhleðslustöð.
Árið 2023 var eldhúsið endurnýjað á afar smekklegan máta með vönduðum eldhúsinnréttingum og kvartssít steini á borðum. Eldhúseyja var stækkuð og komið fyrir afar vönduðum eldhústækjum frá Studio Line Siemens og Grohe blöndunartækjum. Sama ár voru bæði baðherbergi endurnýjuð með vönduðum flísum, blöndunartækjum og fallegri óbeinni lýsingu. Þá er búið að sérsmíða fallegar hillur við sjónvarpsstofu og umhverfis sjónvarps (sérsmíði var í höndum Við og við sf.). Auk þess var klæðaskápur í forstofu og innréttingar í þvottaherbergi endurnýjaðar.
Sameign hússins er afar snyrtileg með flísum á ytra anddyri og teppum á sameign. Tvær lyftur er í húsinu sem ganga niður í bílakjallara. Rafmagnshurðaropnun er á aðalhurðum í sameign. Myndavéladyrasími er í húsinu. Þvottastæði í bílakjallara. Lóðin er snyrtileg og frágengin með hellulagðri stétt fyrir framan hús með snjóbræðslu og sameiginlegum malbikuðum stæðum.
Við hönnun hússins var haft að leiðarljósi að hafa íbúðirnar bjartar og rúmgóðar með stórum gluggum sem ná niður í gólf og hita í gólfum. Húsið eru álklædd og eru því viðhaldslítil. Stutt er í Fossvoginn með sinni einstöku fegurð, Öskjuhlíðin og rómaðar gönguleiðir tengja Lundinn saman á þann hátt að gott jafnvægi er á milli byggðar og náttúru. Hverfið er byggt upp með sex kjörnum og stórum grænum svæðum sem flæða á milli þeirra. Stutt er í margvíslega þjónustu og afþreyingu. Smáralindin, Kringlan svo ekki sé minnst á menningarlífið í Gjánni, s.s. Salinn og Gerðarsafn er steinsnar frá Lundi.
Nánari lýsing:
Forstofa: Með parketi á gólfi, góðum skápum og fallegum spegli með baklýsingu.
Sjónvarpsstofa: Er rúmgóð, með parketi á gólfi með fallegum sérsmíðuðum hillum og ramma utan um sjónvarp (frá Við og við sf.) ásamt sérsmíðuðum flísalögðum skenk frá Handverk.
Stofa: Er rúmgóð, með parketi á gólfi og stórum gólfsíðum gluggum til suðurs og vesturs sem gerir hana virkilega bjarta. Stofa rúmar vel setustofu og borðstofu. Útgengi á svalir frá stofu.
Svalir: Er rúmgóðar með viðarkubbum á svalagólfi. Yfirbyggðar með opnanlegri svalalokun.
Eldhús: Var endurnýjað á afar fallegan máta árið 2023. Gott skápa- og vinnupláss með tækjaskáp og vönduðum Siemens Studio Line eldhústækjum. Fallegur kvartssít steinn á borðum. Eldhús er með stórri eldhúseyju og opið við stofu. Tveir Siemens bakaraofnar (annar einnig gufuofn), Siemens spansuðu helluborð með innbyggðri viftu, innb. kæliskápur og innb. uppþvottavél. Undirfelldur vaskur og Grohe blöndunartæki. Gólfsíður gluggi til suðurs og annar gluggi til austurs sem hleypir inn góðri vinnubirtu.
Þvottaherbergi: Er staðsett inn af eldhúsi. Flísar á gólfi og endurnýjaðar innréttingar með vinnuborði og vaski. Tengi fyrir þvottavél og þurrkara ásamt stæði fyrir auka kæliskáp/frysti. Gluggi til austurs og gott skápapláss.
Baðherbergi I: Var endurnýjað árið 2023. Flísar á gólfi og veggjum. Flísalögð sturta með innb. Grohe blöndunartækjum. Niðurtekið loft að hluta með fallegri óbeinni lýsingu. Handklæðaofn, upphengt salerni, og innrétting við vask með marmara og Grohe blöndunartækjum.
Hjónaherbergi: Með parketi á gólfi og glugga til vesturs. Gengið inn í fataherbergi frá hjónaherbergi.
Fataherbergi: Er staðsett inn af hjónaherbergi. Parket á gólfi og góðir klæðaskápar.
Svefnherbergi II: Með parketi á gólfi, skápum og glugga til austurs.
Svefnherbergi III: Með parketi á gólfi, skápum og glugga til austurs.
Baðherbergi II: Var endurnýjað árið 2023. Flísar á gólfi og á veggjum og flísalögð sturta með glerþili. Falleg innrétting við vask, upphengt salerni, handklæðaofn og útloftun.
Sérmerkt bílastæði: Er vel staðsett í bílakjallara (númer 52).
Sérgeymsla: Í kjallara er 10,9 fermetrar að stærð. Epoxy máluð og með útloftun.
Hjóla- og vagnageymsla: Eru tvær og eru staðsettar í kjallara.
Nánari upplýsingar hjá:
Heimi Hallgrímssyni lögg. fasteignasala í síma 849-0672 eða á netfanginu heimir@fastlind.is
Ár
Fasteignamat
Kaupverð
Stærð
Fermetraverð
13. des. 2022
96.350.000 kr.
124.000.000 kr.
153.4 m²
808.344 kr.
9. sep. 2022
96.350.000 kr.
64.500.000 kr.
153.4 m²
420.469 kr.
22. maí. 2015
52.950.000 kr.
65.000.000 kr.
153.4 m²
423.729 kr.
Byggt á upplýsingum úr Þjóðskrá Íslands frá 2006-2026