Löggiltir fasteignasalar innan Félags fasteignasala:
Sverrir Kristinsson
Kjartan Hallgeirsson
Guðlaugur Ingi Guðlaugsson
Daði Hafþórsson
Gunnar Helgi Einarsson
Gunnar Bergmann Jónsson
Jenný Sandra Gunnarsdóttir
Vista
fjölbýlishús

Borgartún 30

105 Reykjavík

145.000.000 kr.

888.480 þ.kr./m2
Fasteignanúmer

F2260280

Fasteignamat

121.250.000 kr.

Brunabótamat

92.880.000 kr.

Áhvílandi

0 kr.

Arion banki – Reikna lán
Upplýsingar
Verðsaga
svg
Byggt 2003
svg
163,2 m²
svg
3 herb.
svg
2 baðherb.
svg
2 svefnh.
svg
Þvottahús
svg
Sameiginl. inngangur
svg
Bílastæði

Lýsing

Eignamiðlun kynnir:

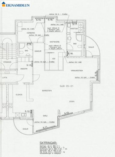
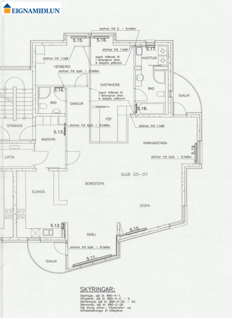
Borgartún 30A. Glæsileg og rúmgóð 163,2 fm endaíbúð á 5. hæð í lyfthúsi ásamt stæði í bílageymslu. Lyftan opnast beint inní íbúðina. Tvennar svalir og útsýni.

Íbúðin skiptist m.a. í  stórar stofur, sólskála, eldhús, tvö svefnherbergi, fataherbergi, baðherbergi, þvottahús, snyrtingu, gang og forstofu. Sér geymsla fylgir í kjallara. Hjónaherbergið er í raun hjónasvíta með fataherbergi, baðherbergi og þvottahúsi.
Smelltu hér ef þú vilt fá söluyfirlit strax !
Samkvæmt fasteignaskrá er íbúðin skráð 150,5 fm og geymla 12,7 fm.

Nánari lýsing: komið er inn í flísalagða forstofu með skápum. Úr forstofu er annars vegar gengið í stofur og hins vegar í eldhúsið. Stofurnar eru samliggjandi, mjög rúmgóðar og bjartar. Gólf er parketagt. Tvennar svalir eru frá stofum, annarsvegar suðursvalir sem eru til hliðar við sólskálann og hins vegar minni svalir en þær svalir snúa í norður.  Eldhúsið er með fallegri viðarinnréttingu frá Brúnás sem nær upp í loft og nýjum tækjum. Góður borðkrókur og flísar á gólfi. Herbergin eru tvö. Þau eru bæði parketlgöð. Innaf hjónaherbergi eru fataherbergi, baðherbergi og þvottahús. Baðherbergið er flísalagt og með sturtuklefa og glugga. Flísalagt þvottahús með glugga er innaf baðherberginu. Innaf gangi við hlíð forstofu er flísalögð snyrting

Húsið er byggt af ÍAV árið 2003. Falleg eign í eftirsóttu lyftuhúsi með verslun og þjónustu í göngufæri. Íbúðin getur verið laus til afhendingar fljótlega.

Nánari upplýsingar veitir Hilmar Þór Hafsteinsson Lögg. fasteignasali/leigumiðlari, í síma 824-9098, tölvupóstur hilmar@eignamidlun.is eða skrifstofa Eignamiðlunar í síma 588-9090

***
Ábyrg þjónusta í áratugi. Eignamiðlun var stofnuð 1957 og er elsta starfandi fasteignasala á Íslandi. Reynsla, heiðarleiki og þekking á fasteignamarkaðnum eru grunnur að farsælum viðskiptum. 

Eignamiðlun Grensásvegi 11, 108 Reykjavík - Opið frá kl. 9-17 mánudaga til fimmtudaga og 9-16 á föstudögum.

Heimasíða Eignamiðlunar

Eignamiðlun á Facebook

Eignamiðlun

Eignamiðlun

Grensásvegi 11, 108 Reykjavík
Ár
Fasteignamat
Kaupverð
Stærð
Fermetraverð
7. mar. 2019
74.200.000 kr.
68.000.000 kr.
163.2 m²
416.667 kr.
10. apr. 2015
50.150.000 kr.
62.000.000 kr.
163.2 m²
379.902 kr.
Byggt á upplýsingum úr Þjóðskrá Íslands frá 2006-2026
Eignamiðlun

Eignamiðlun

Grensásvegi 11, 108 Reykjavík