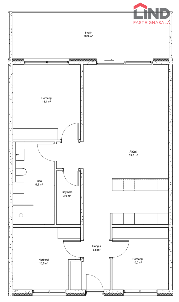
HRAFNABORG 4, 190 Vogar