Upplýsingar
Byggt 1928
186,2 m²
4 herb.
1 baðherb.
3 svefnh.
Þvottahús
Sérinngangur
Aukaíbúð
Lýsing
Fasteignasala Sauðárkróks býður til sölu fasteignina við Suðurgötu 16, Sauðárkróki ásamt tilheyrandi lóðarleiguréttindum.
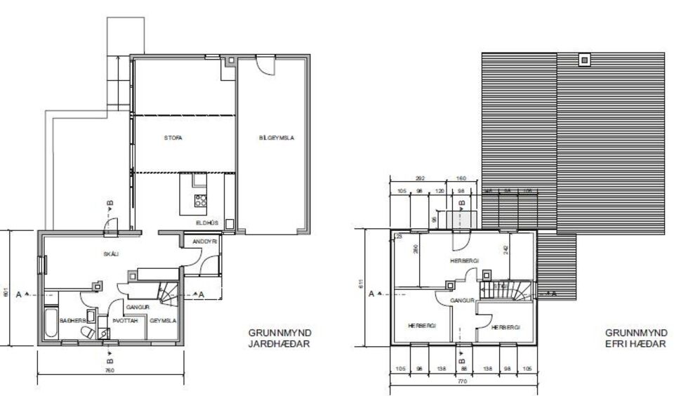
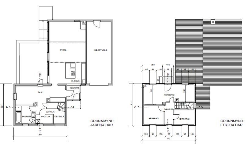
Vandað og mikið endurnýjað fjögurra herbergja einbýlishús á tveimur hæðum ásamt bílskúr, alls 186,2 fm.
Skráð stærð íbúðarhússins skv. HMS er 159 fm. og bílskúr er skráður 27,2 fm.
Leigulóð hússins er 472 fm.
Fasteignin skiptist í þrjú herbergi, eldhús og stofu í sama rými, hol, baðherbergi, þvottahús, geymslu og forstofu.
Frá Suðurgötu er gengið í flísalagða og bjarta forstofu.
Þaðan er komið í rúmgott hol, þar við eru skápar.
Eldhús og stofa er í sama rými með handgerðum leirflísum á gólfi og gólfhita. Rýmið er bæði bjart og rúmgott. Arinn er í stofu. Ljós innrétting í eldhúsi smíðuð af Trésmiðjunni Borg. Frá eldhúsi og stofu er stór rennihurð á skjólgóða, hellulagða verönd suðvestan við húsið. Snjóbræðsla er í hellum.
Á baðherbergi eru flísar á gólfi og gólfhiti. Viðarinnrétting við vask. Baðkar og sturta.
Gott þvottahús þar sem er málað gólf og vaskaborð.
Geymsla er við stiga þar sem áður var forstofa. Gólf er flísalagt og hurð frá geymslu út á Suðurgötu.
Stigi er til efri hæðar þar sem eru þrjú herbergi og parket á þeim öllum.
Bílskúr er frágenginn með góðum veggföstum hillum.
Í garði er geymsluskúr sem er einangraður að utan.
Helstu endurbætur:
Íbúðarhúsið er upphaflega byggt árið 1928, þá var neðri hæðin steypt og efri hæðin úr timbri.
Árið 1989 var byggt við húsið til vesturs stofa, eldhús, anddyri og bílgeymsla. Það sama ár voru gerðar miklar endurbætur á íbúðarhúsinu sjálfu. Baðherbergi var endurnýjað. Útveggir einangraðir með steinull, nema norðurveggur á jarðhæð. Steinull á milli togbanda í þaki. Ný gólfefni lögð: Plankaparkett og flísar (í baðherbergi) á jarðhæð, gólfhiti í baðherbegisgólfi og stofugólfi sem er lagt handgerðum leirflísum. Parket lagt á efri hæð. Allar inni- og útihurðir nýjar nema gamla útihurðin að götunni. Bandsagaður panill í lofti.
Hellulögð stétt í horninu þar sem gamla húsið og viðbyggingin mætast. Hún er afgirt með hleðslusteini og skjólgirðingu og snjóbræðlukerfi undir stéttinni. Rennihurð á stofuvegg gerir stéttina að viðbótarherbergi á sumardögum í umhverfi sem einkennist af grónum brekkum Nafanna. Þarna verður Spánarhiti. Steinlagt bílastæði framan við bílgeymsludyr og nýja anddyrið. Fráveitulagnir endurnýjaðar út í brunn. Verktaki við viðbyggingu og endurbætur: Trésmiðjunni Borg. Yfirsmiður: Bragi Skúlason. Raflagnir: Rafsjá, Jón Pálmason. Pípulagnir: Hannes Helgason. Múrverk: Baldur Haraldsson, Aðalsteinn Maríusson. Hönnnun: Arkitekt: Árni Ragnarsson. Burðarvirki og lagnir: Bragi Þór Haraldsson. Raflagnir: Jón Gestur Hermannsson.
Árið 2013 var svo múrhúð og panill rifin af efri hæð og reiðingseinangrun skipt út fyrir steinull. Ný útveggjaklæðning. Allir gluggar í gamla húsi endurnýjaðir. Allir ofnar, ofna- og raflagnir endurnýjaðar. Breytt herbergjaskipan og parkett lagt á efri hæð. Yfirsmiður: Ólafur Þorbergsson. Raflagnir: Tengill.
Árin 2018 og 2023 voru útveggir, gluggar og hurðir málað utan.
Nánari upplýsingar er að fá hjá Fasteignasölu Sauðárkróks í síma 453 5900 eða á netfangið fasteignir@krokurinn.is
Sunna Björk Atladóttir lögmaður og löggiltur fasteignasali
Eva Dögg Bergþórsdóttir löggiltur fasteignasali
Ella Magga, aðstoðarmaður fasteignasala
Vandað og mikið endurnýjað fjögurra herbergja einbýlishús á tveimur hæðum ásamt bílskúr, alls 186,2 fm.
Skráð stærð íbúðarhússins skv. HMS er 159 fm. og bílskúr er skráður 27,2 fm.
Leigulóð hússins er 472 fm.
Fasteignin skiptist í þrjú herbergi, eldhús og stofu í sama rými, hol, baðherbergi, þvottahús, geymslu og forstofu.
Frá Suðurgötu er gengið í flísalagða og bjarta forstofu.
Þaðan er komið í rúmgott hol, þar við eru skápar.
Eldhús og stofa er í sama rými með handgerðum leirflísum á gólfi og gólfhita. Rýmið er bæði bjart og rúmgott. Arinn er í stofu. Ljós innrétting í eldhúsi smíðuð af Trésmiðjunni Borg. Frá eldhúsi og stofu er stór rennihurð á skjólgóða, hellulagða verönd suðvestan við húsið. Snjóbræðsla er í hellum.
Á baðherbergi eru flísar á gólfi og gólfhiti. Viðarinnrétting við vask. Baðkar og sturta.
Gott þvottahús þar sem er málað gólf og vaskaborð.
Geymsla er við stiga þar sem áður var forstofa. Gólf er flísalagt og hurð frá geymslu út á Suðurgötu.
Stigi er til efri hæðar þar sem eru þrjú herbergi og parket á þeim öllum.
Bílskúr er frágenginn með góðum veggföstum hillum.
Í garði er geymsluskúr sem er einangraður að utan.
Helstu endurbætur:
Íbúðarhúsið er upphaflega byggt árið 1928, þá var neðri hæðin steypt og efri hæðin úr timbri.
Árið 1989 var byggt við húsið til vesturs stofa, eldhús, anddyri og bílgeymsla. Það sama ár voru gerðar miklar endurbætur á íbúðarhúsinu sjálfu. Baðherbergi var endurnýjað. Útveggir einangraðir með steinull, nema norðurveggur á jarðhæð. Steinull á milli togbanda í þaki. Ný gólfefni lögð: Plankaparkett og flísar (í baðherbergi) á jarðhæð, gólfhiti í baðherbegisgólfi og stofugólfi sem er lagt handgerðum leirflísum. Parket lagt á efri hæð. Allar inni- og útihurðir nýjar nema gamla útihurðin að götunni. Bandsagaður panill í lofti.
Hellulögð stétt í horninu þar sem gamla húsið og viðbyggingin mætast. Hún er afgirt með hleðslusteini og skjólgirðingu og snjóbræðlukerfi undir stéttinni. Rennihurð á stofuvegg gerir stéttina að viðbótarherbergi á sumardögum í umhverfi sem einkennist af grónum brekkum Nafanna. Þarna verður Spánarhiti. Steinlagt bílastæði framan við bílgeymsludyr og nýja anddyrið. Fráveitulagnir endurnýjaðar út í brunn. Verktaki við viðbyggingu og endurbætur: Trésmiðjunni Borg. Yfirsmiður: Bragi Skúlason. Raflagnir: Rafsjá, Jón Pálmason. Pípulagnir: Hannes Helgason. Múrverk: Baldur Haraldsson, Aðalsteinn Maríusson. Hönnnun: Arkitekt: Árni Ragnarsson. Burðarvirki og lagnir: Bragi Þór Haraldsson. Raflagnir: Jón Gestur Hermannsson.
Árið 2013 var svo múrhúð og panill rifin af efri hæð og reiðingseinangrun skipt út fyrir steinull. Ný útveggjaklæðning. Allir gluggar í gamla húsi endurnýjaðir. Allir ofnar, ofna- og raflagnir endurnýjaðar. Breytt herbergjaskipan og parkett lagt á efri hæð. Yfirsmiður: Ólafur Þorbergsson. Raflagnir: Tengill.
Árin 2018 og 2023 voru útveggir, gluggar og hurðir málað utan.
Nánari upplýsingar er að fá hjá Fasteignasölu Sauðárkróks í síma 453 5900 eða á netfangið fasteignir@krokurinn.is
Sunna Björk Atladóttir lögmaður og löggiltur fasteignasali
Eva Dögg Bergþórsdóttir löggiltur fasteignasali
Ella Magga, aðstoðarmaður fasteignasala