Löggiltir fasteignasalar innan Félags fasteignasala:
Páll Þórólfsson
Guðbjörg Guðmundsdóttir
Jason Kristinn Ólafsson
Sverrir Pálmason
Vista
fjölbýlishús

Lindargata 27

101 Reykjavík

91.800.000 kr.

878.469 þ.kr./m2
Fasteignanúmer

F2279872

Fasteignamat

83.700.000 kr.

Brunabótamat

57.250.000 kr.

Áhvílandi

0 kr.

Arion banki – Reikna lán
Upplýsingar
Verðsaga
svg
Byggt 2006
svg
104,5 m²
svg
3 herb.
svg
1 baðherb.
svg
2 svefnh.
svg
Þvottahús
svg
Útsýni
svg
Sameiginl. inngangur
svg
Lyfta
svg
Laus strax
Opið hús: 19. febrúar 2026 kl. 12:30 til 12:50

Opið hús: Lindargata 27, 101 Reykjavík, Íbúð merkt: 01 03 01. Eignin verður sýnd fimmtudaginn 19. febrúar 2026 milli kl. 12:30 og kl. 12:50.

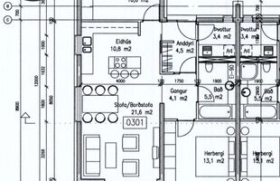
Lýsing

Betri Stofan fasteignasala og Jason Kristinn Ólafsson, sími 7751515 kynnir: Lindargata 27, 101 Reykjavík. 104,5 fermetra, 3ja herbergja endaíbúð. 
Eignin skiptist í eftirfarandi: Forstofa, þvottahús, baðherbergi, tvö svefnherbergi, stofa, eldhús, svalir og sérgeymsla.
Fasteignamat um næstu áramót verður kr. 93.000.000-

Nánari lýsing:
Forstofa: flsalagt með fataskáp og gluggum.
Eldhús með eyju innaf stofunni.
Stofa með hurð út á suðursvalir. Góðir gaflgluggar á stofunni og eldhúsinu. Gott hjónaherbergi með skáp.
Svefnherbergi II: Með parketi. 
Þvottahús með gólfflísum og innréttingu.
Baðherbergi: Flísalagt með baðkari og innréttingu.
Sérgeymsla: Góð geymsla er í sameign. 

Falleg íbúð á 3. hæð í lyftuhúsi. Íbúðin er laus við kaupsamning. Útsýni er frá íbúðinni. Góð bílastæði á lóð norðanmegin við húsið. Eftirsótt staðsetning. Stutt í verslun og þjónustu.

Nánari upplýsingar veita: 
Jason Kristinn Ólafsson, sími 775 1515 - löggiltur fasteignasali. - netfang: jason@betristofan.is

 


Gjöld sem kaupandi þarf að standa straum af ef að kaupum verður:
1. Stimpilgjald af fasteignamati fasteignar er 0.8%, en 0,4% fyrir fyrstu kaup og 1,6% fyrir lögaðila.  
2. Þinglýsingargjald: kaupsamningi, skuldabréfi, veðleyfi, afsali o.s.frv. er kr. 3.800 af hverju skjali.
3. Lántökukostnaður samkvæmt verðskrá viðkomandi lánastofnunar.
4. Umsýslugjald til fasteignasölu skv. gjaldskrá.

Skoðunarskylda kaupanda:
Í lögum um fasteignakaup nr. 40/2002 er kveðið á um ríka skoðunarskyldu kaupenda á fasteignum. Betri Stofan fasteignasala bendir væntanlegum kaupendum á að kynna sér vel ástand fasteigna við skoðun og fyrir tilboðsgerð og ef þurfa þykir að leita til sérfræðinga um nánari ástandsskoðun.

img
Jason Kristinn Ólafsson
Lögg.fasteignasali innan félags fasteignasala
Betri Stofan Fasteignasala
Borgartúni 30, 105 Reykjavík
Betri Stofan Fasteignasala

Betri Stofan Fasteignasala

Borgartúni 30, 105 Reykjavík
phone
img

Jason Kristinn Ólafsson

Borgartúni 30, 105 Reykjavík
Ár
Fasteignamat
Kaupverð
Stærð
Fermetraverð
24. sep. 2018
56.800.000 kr.
56.000.000 kr.
104.5 m²
535.885 kr.
28. maí. 2015
39.250.000 kr.
47.500.000 kr.
104.5 m²
454.545 kr.
14. ágú. 2007
22.660.000 kr.
35.900.000 kr.
104.5 m²
343.541 kr.
Byggt á upplýsingum úr Þjóðskrá Íslands frá 2006-2026
Betri Stofan Fasteignasala

Betri Stofan Fasteignasala

Borgartúni 30, 105 Reykjavík
phone

Jason Kristinn Ólafsson

Borgartúni 30, 105 Reykjavík