Löggiltir fasteignasalar innan Félags fasteignasala:
Sverrir Kristinsson
Kjartan Hallgeirsson
Guðlaugur Ingi Guðlaugsson
Daði Hafþórsson
Gunnar Helgi Einarsson
Gunnar Bergmann Jónsson
Jenný Sandra Gunnarsdóttir
Vista
svg

73

svg

71  Skoðendur

svg

Skráð  17. feb. 2026

fjölbýlishús

Áshamar 6

221 Hafnarfjörður

81.800.000 kr.

798.828 þ.kr./m2
Fasteignanúmer

F2526102

Fasteignamat

78.700.000 kr.

Brunabótamat

62.490.000 kr.

Áhvílandi

0 kr.

Arion banki – Reikna lán
Upplýsingar
svg
Byggt 2023
svg
102,4 m²
svg
3 herb.
svg
1 baðherb.
svg
2 svefnh.
svg
Bílastæði
svg
Lyfta

Lýsing

Eignamiðlun kynnir:

Eignamiðlun kynnir nýjar eignir við Áshamar 2-10 í glæsilegum fjölbýlishúsum í Svansvottuðu ferli í Hamranesi í Hafnarfirði. Í húsunum eru 140 íbúðir, allt frá stúdíóíbúðum til fjögurra herbergja íbúða. Íbúðirnar eru bjartar og nútímalegar með hagnýtu skipulagi. Glæsilegt hverfi í nágrenni við stórkostlega náttúru, Hvaleyrarvatn, Helgafell, Kleifarvatn o.fl. 
Bókið skoðun hjá: Rögnvaldur Örn Jónsson lfg. í síma: 660-3452 eða rognvaldur@eignamidlun.is


Heimasíða verkefnisins:

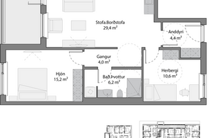
Áshamar 6, íbúð 05-03 er 102,4 fm 3 herb.íbúð í nýju glæsilegu lyftuhúsi á mjög góðum stað í Hafnarfirði.  Sérmerkt bílastæði í bílskýli.
Opinber skráning eignarinnar: Birt flatarmál er 102,4 fm og þar af 8,5 fm geymsla í sameign.

**Smelltu hér til að fá sent söluyfirlit**

Bókið skoðun hjá sölumanni Eignamiðlunar.
Rögnvaldur Örn Jónsson í síma 660-3452 eða rognvaldur@eignamidlun.is

Nánari lýsing:
Íbúðirnar afhendast fullfrágengnar meö öllum innréttingum og gólfefnum, flísar og vandað harðparket verður á gólfum.
Eldhúsinnrétting er frá Nobilia í Þýskalandi. Eldhúsinnrétting er fullbúin með blöndunartækjum og eldhústækjum þ.e. helluborði, viftu í innréttingu eða eyjuháfi yfir helluborði þar sem það á við, innbyggðum ísskáp, innbyggðri uppþvottavél og ofni. Eldhústæki eru frá AEG.
Baðherbergisgólf og sturturými eru flísalögð. Baðherbergisveggir eru spartlaðir og málaðir með rakaþolinni málningu á þeim veggjum sem ekki eru flísalagðir. Baðinnrétting er með neðri skáp, hvítri handlaug og efri skápum með spegli á hurðum og ljósi. Salerni er vegghengt með innbyggðum vatnskassa. Blöndunartæki á baði eru hitastýrð blöndunartæki og sturtustöng með utanáliggjandi blöndunartækjum. Lýsing er í lofti á baðherbergjum. Vandað harðparket er á alrýmum. Sjá nánar í skilalýsingu.  Innréttingar í þessari íbúð eru: Dökk Concrete Terra


Kaupendur greiða skipulagsgjald þ.e 0,3% af endanlegu brunabótamati þegar það verður innheimt. 

***
Ábyrg þjónusta í áratugi. Eignamiðlun var stofnuð 1957 og er elsta starfandi fasteignasala á Íslandi. Reynsla, heiðarleiki og þekking á fasteignamarkaðnum eru grunnur að farsælum viðskiptum. 

Eignamiðlun Grensásvegi 11, 108 Reykjavík - Opið frá kl. 9-17 mánudaga til fimmtudaga og 9-16 á föstudögum.

Heimasíða Eignamiðlunar

Eignamiðlun á Facebook

Eignamiðlun

Eignamiðlun

Grensásvegi 11, 108 Reykjavík
Eignamiðlun

Eignamiðlun

Grensásvegi 11, 108 Reykjavík