Löggiltir fasteignasalar innan Félags fasteignasala:
Sverrir Kristinsson
Kjartan Hallgeirsson
Guðlaugur Ingi Guðlaugsson
Daði Hafþórsson
Gunnar Helgi Einarsson
Gunnar Bergmann Jónsson
Jenný Sandra Gunnarsdóttir
Vista
svg

27

svg

17  Skoðendur

svg

Skráð  17. feb. 2026

fjölbýlishús

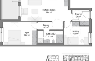
Áshamar 6 - íbúð 103

221 Hafnarfjörður

79.500.000 kr.

750.708 þ.kr./m2
Fasteignanúmer

F2526078

Fasteignamat

69.600.000 kr.

Brunabótamat

0 kr.

Áhvílandi

0 kr.

Arion banki – Reikna lán
Upplýsingar
svg
Byggt 2023
svg
105,9 m²
svg
3 herb.
svg
1 baðherb.
svg
2 svefnh.
svg
Þvottahús
svg
Bílastæði
svg
Lyfta

Lýsing

Eignamiðlun kynnir:

Eignamiðlun kynnir nýjar eignir við Áshamar 2-10 í glæsilegum fjölbýlishúsum í Svansvottuðu ferli í Hamranesi í Hafnarfirði. Í húsunum eru 140 íbúðir, allt frá stúdíóíbúðum til fjögurra herbergja íbúða. Íbúðirnar eru bjartar og nútímalegar með hagnýtu skipulagi. Glæsilegt hverfi í nágrenni við stórkostlega náttúru, Hvaleyrarvatn, Helgafell, Kleifarvatn o.fl. 

NÁNARI UPPLÝSINGAR GEFUR: Rögnvaldur Örn Jónsson í síma 660-3452 eða rognvaldur@eignamidlun.is

**Sækja söluyfirlit**

Heimasíða verkefnisins:

Áshamar 6 - íbúð 103 , íbúð 01-03 er 105.9 fm 3 herb.íbúð í nýju glæsilegu lyftuhúsi á mjög góðum stað í Hafnarfirði. Stæði í bílskýli merkt B3-04 fylgir íbúðinni.
Opinber skráning eignarinnar: Birt flatarmál er 105.9 fm, með geymslu í sameign.

Bókið skoðun hjá sölumanni Eignamiðlunar.
Gunnar Bergmann Jónsson í síma 839-1600 eða gunnarbergmann@eignamidlun.is
Kári Sighvatsson í síma 899-8815 eða kari@eignamidlun.is
Rögnvaldur Örn Jónsson í síma 660-3452 eða rognvaldur@eignamidlun.is
Oddný María Kristinsdóttir í síma 777-3711 eða oddny@eignamidlun.is

Nánari lýsing:
Íbúðirnar afhendast fullfrágengnar meö öllum innréttingum og gólfefnum, flísar og vandað harðparket verður á gólfum.
Eldhúsinnrétting er frá Nobilia í Þýskalandi. Eldhúsinnrétting er fullbúin með blöndunartækjum og eldhústækjum þ.e. helluborði, viftu í innréttingu eða eyjuháfi yfir helluborði þar sem það á við, innbyggðum ísskáp, innbyggðri uppþvottavél og ofni. Eldhústæki eru frá AEG.
Baðherbergisgólf og sturturými eru flísalögð. Baðherbergisveggir eru spartlaðir og málaðir með rakaþolinni málningu á þeim veggjum sem ekki eru flísalagðir. Baðinnrétting er með neðri skáp, hvítri handlaug og efri skápum með spegli á hurðum og ljósi. Salerni er vegghengt með innbyggðum vatnskassa. Blöndunartæki á baði eru hitastýrð blöndunartæki og sturtustöng með utanáliggjandi blöndunartækjum. Lýsing er í lofti á baðherbergjum. Vandað harðparket er á alrýmum. Sjá nánar í skilalýsingu.  Innréttingar í þessari íbúð eru: Dökk Concrete Terra

Kaupendur greiða skipulagsgjald þ.e 0,3% af endanlegu brunabótamati þegar það verður innheimt. 

***
Ábyrg þjónusta í áratugi. Eignamiðlun var stofnuð 1957 og er elsta starfandi fasteignasala á Íslandi. Reynsla, heiðarleiki og þekking á fasteignamarkaðnum eru grunnur að farsælum viðskiptum. 

Eignamiðlun Grensásvegi 11, 108 Reykjavík - Opið frá kl. 9-17 mánudaga til fimmtudaga og 9-16 á föstudögum.

Heimasíða Eignamiðlunar

Eignamiðlun á Facebook

Eignamiðlun

Eignamiðlun

Grensásvegi 11, 108 Reykjavík
Eignamiðlun

Eignamiðlun

Grensásvegi 11, 108 Reykjavík