Upplýsingar
Byggt 2025
169,6 m²
4 herb.
2 baðherb.
2 svefnh.
Þvottahús
Sameiginl. inngangur
Bílastæði
Lyfta
Lýsing
Háborg fasteignasala og Bestla byggingarfélag kynna: Garðabraut 1 Akranesi – í nýju og glæsilegu íbúðarhverfi. Húsið er lyftuhús með bílageymslu.
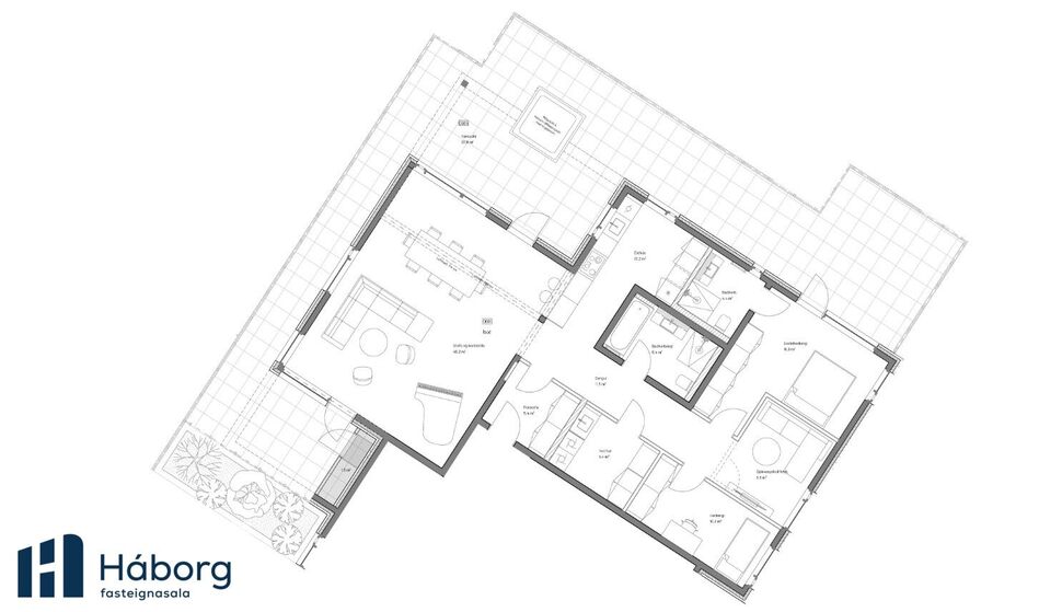
Íbúð 601 – Þriggja til fjögurra herbergja íbúð á 6. hæð, staðsett í nýju og glæsilegu íbúðarhverfi. Hún er 169,6 fm að stærð, þar af er geymsla 15,4 fm. Einnig fylgja eigninni tvö stæði í bílakjallara.
Íbúðin skiptist í forstofu, sér þvottahús, baðherbergi með sturtu og baðkari, hjónasvítu með baðherbergi og góðum fataskápum, barnaherbergi og sjónvarpsrými þar sem hægt er að útbúa annað svefnherbergi. Alrými er opið með eldhúsi, borðstofu og stofu. Útgengt er út á þaksvalir úr stofu, að stærð 97,6 fm, með 0,9 fm geymslu.
Íbúðin skilast fullbúin án megin gólfefna, nema í votrýmum þar sem eru flísar. Áætluð afhending er í september 2025.
Helstu kostir íbúðar.
Heimasíða Garðabraut 1
Allar upplýsingar um eignina veita: Katla Hanna Steed löggiltur fasteignasali í síma 822 1661 eða katla@haborg.is, Jórunn Skúladóttir löggiltur fasteignasali í síma 845 8958 eða jorunn@haborg.is og Kristín Rós Magnadóttir löggiltur fasteignasali í síma 860-2078 eða kristin@haborg.is.
Almennt Fjölbýlishúsið að Garðabraut er staðsett í nýju og glæsilegu íbúðarhverfi á Akranesi.Tvö stigahús eru í byggingunni, hvort með lyftu og kjallara. Byggingin er 4 og 7 hæðir með samtals 50 íbúðum af mismunandi stærðum – tveggja, þriggja og fjögurra herbergja. Í kjallara er bílageymsla með merktum stæðum fyrir flestar íbúðir. Aðgengi að sérgeymslum, hjóla- og vagnageymslu, ásamt tæknirýmum. Aðalinngangur hússins er á 1. hæð. Flestar íbúðir eru með aukinni lofthæð og allar með svölum eða sérafnotareit. Úr mörgum íbúðum er fallegt útsýni og þakíbúðir bjóða upp á stórar þaksvalir með möguleika á rafmagnspotti. Flestum íbúðum fylgir stæði í bílakjallara og stærri íbúðum fylgja tvö stæði.
Á Lóð eru hellulögð svæði og hitalagnir í gönguleiðum og bílastæðum fyrir hreyfihamlaða. Undirbúið er fyrir rafhleðslustöðvar og djúpgámar eru staðsettir á lóðinni.
Eldhús eru með innréttingum frá GKS/Nobilia í ljósgráum lit. Efri skápar eru vegghengdir með LED-lýsingu undir. Borðplötur eru úr HPL. Eldhústæki frá AEG fylgja – spanhelluborð og bakarofn með innbyggðum hitamæli. Gufugleypir er annaðhvort innbyggður í efri skáp eða sem eyju-/veggháfur frá Airforce/Elica. Gert er ráð fyrir innbyggðum kæli, frysti og uppþvottavél og fylgja hurðaforstykki í stíl. Blöndunartæki frá Grohe eru hitastýrð og vaskur úr stáli er límdur ofan á borðplötuna.
Baðherbergi eru flísalögð, gólf eru flísalögð með 60x60 cm flísum og hluti veggja flísalagður upp í loft. Innréttingar eru í ljósgráum lit með slitsterkri HPL borðplötu og hvítum vaski. Grohe blöndunartæki eru hitastýrð og sturtan afmörkuð með gleri. Salerni er vegghengt með innbyggðum vatnskassa.
Þvottahús Í sumum íbúðum er sér þvottaaðstaða, annars er hún inn af baðherbergi. Tengi eru fyrir þvottavél og barkalausan þurrkara með rakaþétti. Gólf er flísalagt.
Hita- og loftræstikerfi. Íbúðir og sameign eru hitaðar með ofnakerfi samkvæmt teikningum. Allar íbúðir eru með loftræstikerfi með varmaendurvinnslu, þar sem loft er sogið úr eldhúsi og baðherbergi og ferskt loft dælt inn í önnur rými. Kerfið endurvinnur allt að 85% varma og síar loftið, sem dregur úr svifryki og frjókornum. Loftræstisamstæður eru staðsettar á svölum.
Allar nánari upplýsingar veita Katla Hanna Steed löggiltur fasteignasali í síma 822 1661 eða katla@haborg.is, Jórunn Skúladóttir löggiltur fasteignasali í síma 845 8958 eða jorunn@haborg.is og Kristín Rós Magnadóttir löggiltur fasteignasali í síma 860-2078 eða kristin@haborg.is.
Íbúð 601 – Þriggja til fjögurra herbergja íbúð á 6. hæð, staðsett í nýju og glæsilegu íbúðarhverfi. Hún er 169,6 fm að stærð, þar af er geymsla 15,4 fm. Einnig fylgja eigninni tvö stæði í bílakjallara.
Íbúðin skiptist í forstofu, sér þvottahús, baðherbergi með sturtu og baðkari, hjónasvítu með baðherbergi og góðum fataskápum, barnaherbergi og sjónvarpsrými þar sem hægt er að útbúa annað svefnherbergi. Alrými er opið með eldhúsi, borðstofu og stofu. Útgengt er út á þaksvalir úr stofu, að stærð 97,6 fm, með 0,9 fm geymslu.
Íbúðin skilast fullbúin án megin gólfefna, nema í votrýmum þar sem eru flísar. Áætluð afhending er í september 2025.
Helstu kostir íbúðar.
- Aukin lofthæð
- Gólfhiti
- Hjónasvíta
- Útsýni
- Innbyggð lýsing að hluta
- Free@Home hússtjórnarkerfi
- Þaksvalir 97,6 fm
- Loftræstikerfi með varmaendurvinnslu
- Innrétting í eldhúsi frá GKS/Nobilia
- Eldhúsið með HPL borðplötu og tækjum frá AEG.
- Votrými flísalögð
- Birtugæði og loftgæði
- Nýtt glæsilegt íbúðarhverfi
- Vandaður verktaki
Heimasíða Garðabraut 1
Allar upplýsingar um eignina veita: Katla Hanna Steed löggiltur fasteignasali í síma 822 1661 eða katla@haborg.is, Jórunn Skúladóttir löggiltur fasteignasali í síma 845 8958 eða jorunn@haborg.is og Kristín Rós Magnadóttir löggiltur fasteignasali í síma 860-2078 eða kristin@haborg.is.
Almennt Fjölbýlishúsið að Garðabraut er staðsett í nýju og glæsilegu íbúðarhverfi á Akranesi.Tvö stigahús eru í byggingunni, hvort með lyftu og kjallara. Byggingin er 4 og 7 hæðir með samtals 50 íbúðum af mismunandi stærðum – tveggja, þriggja og fjögurra herbergja. Í kjallara er bílageymsla með merktum stæðum fyrir flestar íbúðir. Aðgengi að sérgeymslum, hjóla- og vagnageymslu, ásamt tæknirýmum. Aðalinngangur hússins er á 1. hæð. Flestar íbúðir eru með aukinni lofthæð og allar með svölum eða sérafnotareit. Úr mörgum íbúðum er fallegt útsýni og þakíbúðir bjóða upp á stórar þaksvalir með möguleika á rafmagnspotti. Flestum íbúðum fylgir stæði í bílakjallara og stærri íbúðum fylgja tvö stæði.
Á Lóð eru hellulögð svæði og hitalagnir í gönguleiðum og bílastæðum fyrir hreyfihamlaða. Undirbúið er fyrir rafhleðslustöðvar og djúpgámar eru staðsettir á lóðinni.
Eldhús eru með innréttingum frá GKS/Nobilia í ljósgráum lit. Efri skápar eru vegghengdir með LED-lýsingu undir. Borðplötur eru úr HPL. Eldhústæki frá AEG fylgja – spanhelluborð og bakarofn með innbyggðum hitamæli. Gufugleypir er annaðhvort innbyggður í efri skáp eða sem eyju-/veggháfur frá Airforce/Elica. Gert er ráð fyrir innbyggðum kæli, frysti og uppþvottavél og fylgja hurðaforstykki í stíl. Blöndunartæki frá Grohe eru hitastýrð og vaskur úr stáli er límdur ofan á borðplötuna.
Baðherbergi eru flísalögð, gólf eru flísalögð með 60x60 cm flísum og hluti veggja flísalagður upp í loft. Innréttingar eru í ljósgráum lit með slitsterkri HPL borðplötu og hvítum vaski. Grohe blöndunartæki eru hitastýrð og sturtan afmörkuð með gleri. Salerni er vegghengt með innbyggðum vatnskassa.
Þvottahús Í sumum íbúðum er sér þvottaaðstaða, annars er hún inn af baðherbergi. Tengi eru fyrir þvottavél og barkalausan þurrkara með rakaþétti. Gólf er flísalagt.
Hita- og loftræstikerfi. Íbúðir og sameign eru hitaðar með ofnakerfi samkvæmt teikningum. Allar íbúðir eru með loftræstikerfi með varmaendurvinnslu, þar sem loft er sogið úr eldhúsi og baðherbergi og ferskt loft dælt inn í önnur rými. Kerfið endurvinnur allt að 85% varma og síar loftið, sem dregur úr svifryki og frjókornum. Loftræstisamstæður eru staðsettar á svölum.
Allar nánari upplýsingar veita Katla Hanna Steed löggiltur fasteignasali í síma 822 1661 eða katla@haborg.is, Jórunn Skúladóttir löggiltur fasteignasali í síma 845 8958 eða jorunn@haborg.is og Kristín Rós Magnadóttir löggiltur fasteignasali í síma 860-2078 eða kristin@haborg.is.