Upplýsingar
Verðsaga
Byggt 2020
74 m²
3 herb.
1 baðherb.
2 svefnh.
Sérinngangur
Laus strax
Lýsing
Betri Stofan og Jason Kristinn Ólafsson, sími 7751515 kynnir: Falleg 3ja herb íbúð í Tjarnabakki 2a í Innri-Njarðvík, 260 Reykjanesbæ
Laus strax
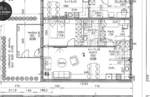
Vel skipulögð björt og falleg þriggja herbergja íbúð (merkt 108).
Alrýmið er bjart, þar eru stofa og eldhús í opnu rými. HTH innréttingar frá ormsson.
Stærð eignar er samtals 74 m2, þar af er íbúð skráð 68,9m2 og geymsla í séreign 5,1m2
Húsið er staðsteypt, einangrað að utan og klætt með hvítri álklæðningu.
Nánari lýsing eignar:
Anddyri flísalagt með fataskápum.
Stofa og alrými með harðparketi og útgengi á sólpall sem snýr í suðaustur.
Baðherbergi flísalagt með sturtuklefa, vegghengt salerni, góðar innréttingar og þvottaaðstaða inná baðherbergi.
Eldhús með hvítum háglans innréttingum, innbyggð uppþvottavél, flísalagt milli neðri og efri skápa og er opið inn að stofu.
Hjónaherbergi með góðum fataskápum og harðparketi.
Herbergi með harðparketi og fataskáp.
Gólfhiti í allri íbúðinni.
Geymsla er rúmgóð séreign og er staðsett í sameignarrými.
Sérafnotaflötur Búið að byggja stóran sólpall.
Sérmerkt bílastæði fylgir öllum íbúðum.
Bókið skoðun:
Jason Kristinn Ólafsson, sími 775 1515 - löggiltur fasteignasali. - netfang: jason@betristofan.is
Laus strax
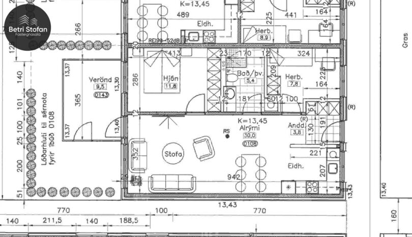
Vel skipulögð björt og falleg þriggja herbergja íbúð (merkt 108).
Alrýmið er bjart, þar eru stofa og eldhús í opnu rými. HTH innréttingar frá ormsson.
Stærð eignar er samtals 74 m2, þar af er íbúð skráð 68,9m2 og geymsla í séreign 5,1m2
Húsið er staðsteypt, einangrað að utan og klætt með hvítri álklæðningu.
Nánari lýsing eignar:
Anddyri flísalagt með fataskápum.
Stofa og alrými með harðparketi og útgengi á sólpall sem snýr í suðaustur.
Baðherbergi flísalagt með sturtuklefa, vegghengt salerni, góðar innréttingar og þvottaaðstaða inná baðherbergi.
Eldhús með hvítum háglans innréttingum, innbyggð uppþvottavél, flísalagt milli neðri og efri skápa og er opið inn að stofu.
Hjónaherbergi með góðum fataskápum og harðparketi.
Herbergi með harðparketi og fataskáp.
Gólfhiti í allri íbúðinni.
Geymsla er rúmgóð séreign og er staðsett í sameignarrými.
Sérafnotaflötur Búið að byggja stóran sólpall.
Sérmerkt bílastæði fylgir öllum íbúðum.
Bókið skoðun:
Jason Kristinn Ólafsson, sími 775 1515 - löggiltur fasteignasali. - netfang: jason@betristofan.is
Gjöld sem kaupandi þarf að standa straum af ef að kaupum verður:
1. Stimpilgjald af fasteignamati fasteignar er 0.8%, en 0,4% fyrir fyrstu kaup og 1,6% fyrir lögaðila.
2. Þinglýsingargjald: kaupsamningi, skuldabréfi, veðleyfi, afsali o.s.frv. er kr. 3.800 af hverju skjali.
3. Lántökukostnaður samkvæmt verðskrá viðkomandi lánastofnunar.
4. Umsýslugjald til fasteignasölu skv. gjaldskrá.
Skoðunarskylda kaupanda:
Í lögum um fasteignakaup nr. 40/2002 er kveðið á um ríka skoðunarskyldu kaupenda á fasteignum. Betri Stofan fasteignasala bendir væntanlegum kaupendum á að kynna sér vel ástand fasteigna við skoðun og fyrir tilboðsgerð og ef þurfa þykir að leita til sérfræðinga um nánari ástandsskoðun.
Ár
Fasteignamat
Kaupverð
Stærð
Fermetraverð
29. jan. 2021
27.300.000 kr.
29.370.000 kr.
74 m²
396.892 kr.
Byggt á upplýsingum úr Þjóðskrá Íslands frá 2006-2026