Löggiltir fasteignasalar innan Félags fasteignasala:
Óskar Rúnar Harðarson
Jason Guðmundsson
Þröstur Þórhallsson
Ólafur Finnbogason
Kjartan Ísak Guðmundsson
Gústaf Adolf Björnsson
Viðar Böðvarsson
Rakel Viðarsdóttir
Ragnheiður Pétursdóttir
Böðvar Þ. Eggertsson
Vista
fjölbýlishús

Laugarnesvegur 89

105 Reykjavík

79.900.000 kr.

914.188 þ.kr./m2
Fasteignanúmer

F2256145

Fasteignamat

81.200.000 kr.

Brunabótamat

57.340.000 kr.

Áhvílandi

0 kr.

Arion banki – Reikna lán
Upplýsingar
Verðsaga
svg
Byggt 2001
svg
87,4 m²
svg
2 herb.
svg
1 baðherb.
svg
1 svefnh.
svg
Sameiginl. inngangur
svg
Bílastæði
svg
Lyfta

Lýsing

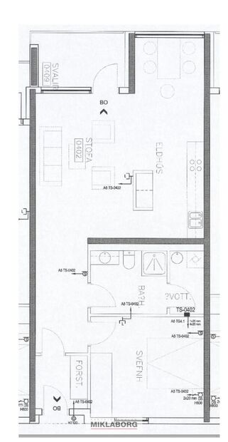
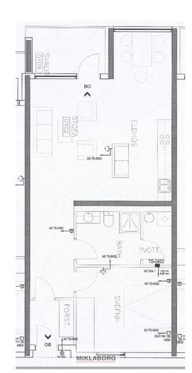
Miklaborg kynnir: Tveggja til þriggja herberga íbúð á fjórðu hæð í lyftu húsi við Laugarnesveg 89. Eignin skiptist í forstofu, svefnherbergi, baðherbergi, þvottahús, eldhús, stofu, borðstofu, vinnuherbergi, geymslu og bílastæði í kjallara


Bókaðu skoðun: Óskar Sæmann í síma 6912312 eða osa@miklaborg.is

Nánari lýsing eignar.

Komið er inn í forstofu með flísum á gólfi, fataskáp og skóskáp. Svefnherbergi með parketi á gólfi og stórum fataskápum. Eldhús með grárri innréttingu og ljósri borðplötu, ofni, helluborði, háf og plássi fyrir uppþvottavél og ísskáp. Stofa, borðstofa og eldhús eru í opnu alrými með parketi á gólfi og útgengt út á svalir til suðurs með svalalokun. búið er að gera auka herbergi þar sem borstofa er teiknuð. Baðherbergi með flísum á gólfi, sturtuklefa, upphengdu salerni og innréttingu með speglaskáp. Inn af baðherbergi er þvottahús þar sem vélar eru í vinnuhæð með skúffum fyrir neðan. Sér geymsla íbúðar er á jarðhæð. Stæði í bílakjallara fylgir eigninni, búið er að leggja fyrir bílahleðslu í stæðið.

Nánari upplýsingar veitir

Óskar Sæmann Axelsson löggiltur fasteignasali í síma 6912312 eða osa@miklaborg.is

Miklaborg fasteignasala

Miklaborg fasteignasala

Lágmúli 4, 108 Reykjavík
Ár
Fasteignamat
Kaupverð
Stærð
Fermetraverð
31. maí. 2012
22.550.000 kr.
26.000.000 kr.
87.4 m²
297.483 kr.
17. júl. 2007
20.565.000 kr.
26.700.000 kr.
87.4 m²
305.492 kr.
Byggt á upplýsingum úr Þjóðskrá Íslands frá 2006-2026
Miklaborg fasteignasala

Miklaborg fasteignasala

Lágmúli 4, 108 Reykjavík