Löggiltir fasteignasalar innan Félags fasteignasala:
Páll Þórólfsson
Guðbjörg Guðmundsdóttir
Jason Kristinn Ólafsson
Sverrir Pálmason
Vista
fjölbýlishús

Þorraholt 17 - 109

210 Garðabær

97.900.000 kr.

976.072 þ.kr./m2
Fasteignanúmer

F2539640

Fasteignamat

8.740.000 kr.

Brunabótamat

0 kr.

Áhvílandi

0 kr.

Arion banki – Reikna lán
Upplýsingar
svg
Byggt 2026
svg
100,3 m²
svg
3 herb.
svg
1 baðherb.
svg
2 svefnh.
svg
Útsýni
svg
Sameiginl. inngangur
svg
Bílastæði
svg
Lyfta
svg
Laus strax
Opið hús: 21. febrúar 2026 kl. 15:30 til 16:30

Velkomin á opið hús í sýningaríbúð í Þorraholti 13d, íbúð 213. Jason sími 7751515 og aðrir sölumenn Betri Stofunnar eru á svæðinu. Bjóðum uppá sýningar í 13c, 17 og 19a.

Lýsing

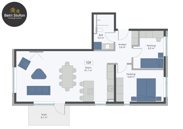
Jason Kristinn Ólafsson sími 7751515  - jason@betristofan.is  og Betri Stofan fasteignasala kynna: Þorraholt 17 í Hnoðraholti, 210 Garðabæ. Glæsileg 100 fermetra, 3ja herbergja íbúð við Þorraholt 17  í litlu fjölbýli. Eignin er með bílastæði í bílakjallara, sérgeymslu, baðherbergi með þvottaaðstöðu, 2 svefnherbergjum. stofu, eldhúsi og svölum til suðurs. Stæðið er merkt: B17

SÝNUM DAGLEGA - BETRI STOFAN

NÁNAR UM VERKEFNIÐ: www.thorraholtid.is 

Þorraholt 17 íbúð 109: Glæsileg 100,3, fermetra íbúð á 1. hæð með svölum til suðurs og merktu bílastæði í bílakjallara. Sérgeymsla fylgir íbúðinni sem er 17,1 fermetrar að stærð. Afhending er í mars-apríl 2026 með fyrirvara um að öryggisúttekt sé komin á húsið.

ÞG verk er að byggja glæsilegar íbúðir við Þorraholt 17 í Garðabæ. Um er að ræða fjölbreyttar 2ja - 4ra herbergja íbúðir í lyftuhúsum og fylgja bílastæði í bílakjallara íbúðum. Svalir eða sérafnotaflötur fylgir öllum íbúðum ásamt sérgeymslu á jarðhæð. Sameiginlegur bílakjallari er með Þorraholti 19.

Húsið stendur á útsýnisstað til suðurs og vesturs.

Húsið er steinsteypt og útveggir einangraðir og klæddir að utan sem tryggir lágmarks viðhald húsanna. Gluggar eru ál/tré kerfi og glerjaðir með K-gleri. Innveggir aðrir en steyptir eru úr hleðslusteini.

Þorraholt stendur á einstökum stað í Garðabæ – í grónu og friðsælu umhverfi þar sem náttúra og þægindi borgarlífs fara saman. Hér eru fjölbreytt útivistarsvæði og fallegar gönguleiðir rétt við heimilið, auk þess sem stutt er í skóla, leikskóla, verslanir og alla helstu þjónustu. Garðabær er þekktur fyrir öflugt samfélag, góðar samgöngur og fjölbreytt tækifæri til íþrótta, menningar og útivistar – allt sem þarf fyrir virkt og innihaldsríkt daglegt líf.

Svæðið í kringum Þorraholt býður upp á jafnvægi milli rólegrar náttúru og nálægðar við líflega miðju höfuðborgarsvæðisins. Hér getur þú notið kyrrðarinnar heima fyrir og verið samt aðeins örfáum mínútum frá vinnu, verslun og afþreyingu. Það gerir Þorraholt að kjörnum stað fyrir þá sem vilja bæði lífsgæði og þægindi í senn.

ÞG Verk hafa yfir 28 ára reynslu á byggingarmarkaði. Fyrirtækið leggur áherslu á vandaðar íbúðir, góða þjónustu og skil íbúða á réttum tíma. Áreiðanleiki, gæði og notagildi eru einkunnarorð ÞG verks og fyrirtækið kappkostar að eiga gott samstarf við viðskiptavini sína. 

Ef misræmi er á milli eignaskiptasamnings, söluyfirlits og/eða sölusíðu þá gilda þær upplýsingar sem koma fyrir í eignaskiptasamningi og samþykktum teikningum. 

Innréttingar: Í eldhúsum og baðherbergjum eru Nobilia innréttingar frá GKS. Eldhúsinnréttingar eru mismunandi útfærðar eftir íbúðum. Lýsing undir efri skápum í eldhúsum. Speglaskápar eru á aðalbaðherbergjum. 

Eldhústæki: Íbúðunum fylgja vönduð eldhústæki af gerðinni Siemens. Íbúðum er skilað með span helluborði, innbyggðum kæliskáp, innbyggðri uppþvottavél, blástursofni og viftu eða lofthengdum eyjuháfi þar sem það á við.

Hreinlætistæki: Salernisskál (Laufen) er vegghengd með innbyggðum vatnskassa. Sturtur eru með flísalögðum botni og hertu sturtugleri. Hreinlætistæki eru hitastýrð frá Damixa. Þvottahús eru ýmist innan baðherbergja eða í sér rými.

Seljandi áskilur sér allan rétt til að gera efnis-, tæknilegar- og útlits breytingar meðan á byggingaframkvæmd stendur.

Kaupandi greiðir skipulagsgjald sem nemur 0,3% af brunabótamati þegar það er lagt á.

Heimild seljanda til að breyta eignaskiptasamning sé þess þörf án þess þó að rýra eignarrétt kaupanda. Innréttingateikningar eru þær sem gilda ef misræmi er milli arkitektateikninga og innréttingateikninga og eru þær áritaðar og hluti samningsins. Þar sem enn er verið að klára þinglýsingu á eignaskiptasamningi þá eru fastanúmer ekki rétt og verða leiðrétt fyrir kaupsamning um eignina.

Eignin afhendist skv skilalýsingu. 

Allar nánari upplýsingar veitir Jason Kristinn Ólafsson, sími 7751515 - jason@betristofan.is löggiltur fasteignasali hjá Betri Stofunni.


Gjöld sem kaupandi þarf að standa straum af ef að kaupum verður:
1. Stimpilgjald af fasteignamati fasteignar er 0.8%, en 0,4% fyrir fyrstu kaup og 1,6% fyrir lögaðila.  
2. Þinglýsingargjald: kaupsamningi, skuldabréfi, veðleyfi, afsali o.s.frv. er kr. 3.800 af hverju skjali.
3. Lántökukostnaður samkvæmt verðskrá viðkomandi lánastofnunar.
4. Umsýslugjald til fasteignasölu skv. gjaldskrá.

Skoðunarskylda kaupanda:
Í lögum um fasteignakaup nr. 40/2002 er kveðið á um ríka skoðunarskyldu kaupenda á fasteignum. Betri Stofan fasteignasala bendir væntanlegum kaupendum á að kynna sér vel ástand fasteigna við skoðun og fyrir tilboðsgerð og ef þurfa þykir að leita til sérfræðinga um nánari ástandsskoðun.

img
Jason Kristinn Ólafsson
Lögg.fasteignasali innan félags fasteignasala
Betri Stofan Fasteignasala
Borgartúni 30, 105 Reykjavík
Betri Stofan Fasteignasala

Betri Stofan Fasteignasala

Borgartúni 30, 105 Reykjavík
phone
img

Jason Kristinn Ólafsson

Borgartúni 30, 105 Reykjavík
Betri Stofan Fasteignasala

Betri Stofan Fasteignasala

Borgartúni 30, 105 Reykjavík
phone

Jason Kristinn Ólafsson

Borgartúni 30, 105 Reykjavík