Upplýsingar
Verðsaga
Byggt 1919
45,3 m²
2 herb.
1 baðherb.
1 svefnh.
Þvottahús
Sameiginl. inngangur
Lýsing
Betri Stofan Fasteignasala og Hreiðar Levý lögg. fasteignasali kynna fallega, bjarta og mikið uppgerða 2ja herbegja íbúð á 3. hæð í fallegu steinsteyptu húsi að Grundarstíg 11 í Þingholtunum í 101 Reykjavík. Glæsileg rými með aukinni lofthæð og fallegri gluggasetningu einkenna íbúðina. Eignin var öll standsett fyrir fáeinum árum á smekklegan máta þar sem eldhús, bað og gólfefni var endurnýjað. Húsið hefur fengið mjög gott viðhald hin síðustu ár þar sem það hefur ma. verið endursteinað, þakjárn endurnýjað ásamt þakrennum og niðurföllum ásamt því að gluggar og gler hafa verið endurnýjað. Þá voru klóaklagnir endurnýjaðar fyrir um 15 árum. Íbúðin er afar vel skipulögð og skiptist í gang sem tengi saman öll rými íbúðar, opið, bjart og fallegt alrými með samliggjandi stofu og eldhúsi, rúmgóðu svefnherbergi ásamt baðherbergi með sturtu. Þá fylgir eigninni sérgeymsla í kjallara.
Bókið skoðun hjá Hreiðari Levý lögg. fasteignasala í síma 661-6021 eða hreidar@betristofan.is
Fasteignamat fyrir árið 2026 skv. HMS er 50.550.000kr.
Eignin Grundarstígur 11 er skráð sem hér segir hjá FMR: Eign 200-6978, birt stærð 45.3 fm. Þar af er sérgeymsla eignar merkt 01 0005 skráð 3,7fm.
Einstaklega falleg íbúð á afar vinsælum stað í Þingholtunum með alla helstu verslun og þjónustu í stuttu göngufæri ásamt fjölbreyttri flóru kaffi- og veitingastaða, menningarhúsa og listasafna.
Framkvæmdir á húsi:
2020:
- Húsið allt múrviðgert að utan og steinað upp á nýtt.
- Gler og gluggar hússins endurnýaðir, nema í stigahúsi.
- Þakjárn, þakpappi, þakrennur og niðurföll endurnýjuð
- Skipt um útihurðir á þvottaherbergi og geymslugangi
Nánari lýsing:
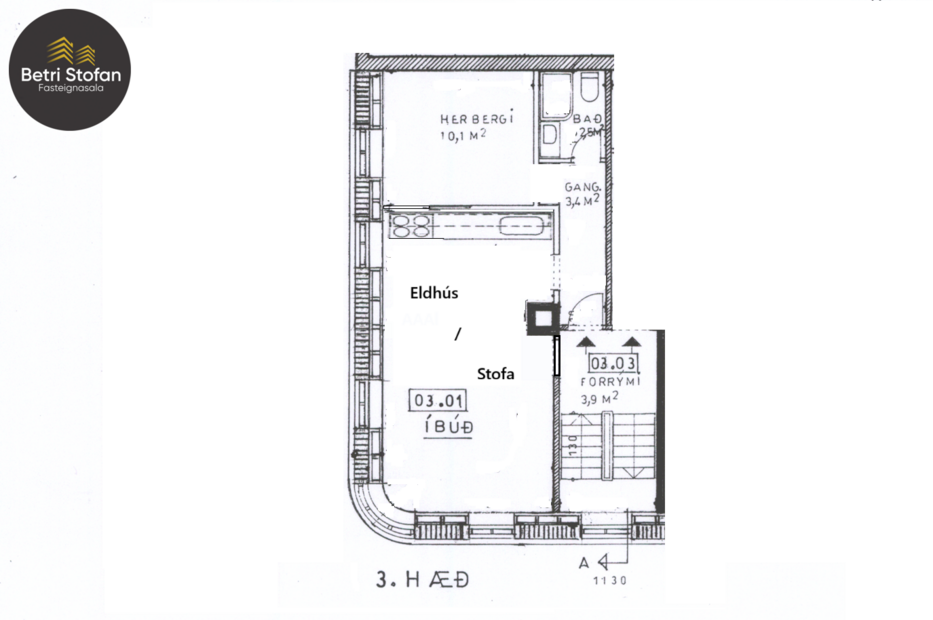
Gangur: Tengir saman öll rými íbúðar.
Alrými: Einstaklega fallegt og bjart rými með samliggjandi eldhúsi og stofu. Hátt til lofts og fallegir gluggar.
Eldhús: Endurnýjað fyrir 4 árum með fallegri innréttingu með innbyggðum ískáp, uppþvottavél, blástursofni, spanhelluborði og eldhúsvaski. Opið og samliggjandi stofu.
Stofa: Rúmgóð, falleg og björt. Opin við eldhús.
Herbergi: Rúmgott. Nýtt í dag sem fundarherbergi.
Baðherbergi: Endurnýjað á smekklegan hátt fyrir um 4 árum. Sturtuklefi, upphengt salerni, baðinnrétting með neðri skúffum, vask og spegli fyrir ofan vask. Flísar á gólfi.
Í kjallara eru:
Sér geymsla: 3,7fm
Sameign: Hjóla- og vagnageymsla. Þvotta- og þurrkherbergi með glugga. Stigahús er mjög snyrtilegt, linoleumdúklagt og nýlega málað.
Afar falleg eign á vinsælum stað í Þingholtunum í miðbæ Reykjavíkur.
Nánari upplýsingar veitir Hreiðar Levý Guðmundsson löggiltur fasteignasali, í síma 661- 6021, tölvupóstur hreidar@betristofan.is.
Bókið skoðun hjá Hreiðari Levý lögg. fasteignasala í síma 661-6021 eða hreidar@betristofan.is
Fasteignamat fyrir árið 2026 skv. HMS er 50.550.000kr.
Eignin Grundarstígur 11 er skráð sem hér segir hjá FMR: Eign 200-6978, birt stærð 45.3 fm. Þar af er sérgeymsla eignar merkt 01 0005 skráð 3,7fm.
Einstaklega falleg íbúð á afar vinsælum stað í Þingholtunum með alla helstu verslun og þjónustu í stuttu göngufæri ásamt fjölbreyttri flóru kaffi- og veitingastaða, menningarhúsa og listasafna.
Framkvæmdir á húsi:
2020:
- Húsið allt múrviðgert að utan og steinað upp á nýtt.
- Gler og gluggar hússins endurnýaðir, nema í stigahúsi.
- Þakjárn, þakpappi, þakrennur og niðurföll endurnýjuð
- Skipt um útihurðir á þvottaherbergi og geymslugangi
Nánari lýsing:
Gangur: Tengir saman öll rými íbúðar.
Alrými: Einstaklega fallegt og bjart rými með samliggjandi eldhúsi og stofu. Hátt til lofts og fallegir gluggar.
Eldhús: Endurnýjað fyrir 4 árum með fallegri innréttingu með innbyggðum ískáp, uppþvottavél, blástursofni, spanhelluborði og eldhúsvaski. Opið og samliggjandi stofu.
Stofa: Rúmgóð, falleg og björt. Opin við eldhús.
Herbergi: Rúmgott. Nýtt í dag sem fundarherbergi.
Baðherbergi: Endurnýjað á smekklegan hátt fyrir um 4 árum. Sturtuklefi, upphengt salerni, baðinnrétting með neðri skúffum, vask og spegli fyrir ofan vask. Flísar á gólfi.
Í kjallara eru:
Sér geymsla: 3,7fm
Sameign: Hjóla- og vagnageymsla. Þvotta- og þurrkherbergi með glugga. Stigahús er mjög snyrtilegt, linoleumdúklagt og nýlega málað.
Afar falleg eign á vinsælum stað í Þingholtunum í miðbæ Reykjavíkur.
Nánari upplýsingar veitir Hreiðar Levý Guðmundsson löggiltur fasteignasali, í síma 661- 6021, tölvupóstur hreidar@betristofan.is.
Gjöld sem kaupandi þarf að standa straum af ef að kaupum verður:
1. Stimpilgjald af fasteignamati fasteignar er 0.8%, en 0,4% fyrir fyrstu kaup og 1,6% fyrir lögaðila.
2. Þinglýsingargjald: kaupsamningi, skuldabréfi, veðleyfi, afsali o.s.frv. er kr. 3.800 af hverju skjali.
3. Lántökukostnaður samkvæmt verðskrá viðkomandi lánastofnunar.
4. Umsýslugjald til fasteignasölu skv. gjaldskrá.
Skoðunarskylda kaupanda:
Í lögum um fasteignakaup nr. 40/2002 er kveðið á um ríka skoðunarskyldu kaupenda á fasteignum. Betri Stofan fasteignasala bendir væntanlegum kaupendum á að kynna sér vel ástand fasteigna við skoðun og fyrir tilboðsgerð og ef þurfa þykir að leita til sérfræðinga um nánari ástandsskoðun.
Ár
Fasteignamat
Kaupverð
Stærð
Fermetraverð
5. maí. 2021
29.250.000 kr.
34.000.000 kr.
45.3 m²
750.552 kr.
17. júl. 2015
16.200.000 kr.
20.900.000 kr.
45.3 m²
461.369 kr.
Byggt á upplýsingum úr Þjóðskrá Íslands frá 2006-2026