Upplýsingar
Byggt 2018
120,2 m²
3 herb.
2 baðherb.
2 svefnh.
Þvottahús
Útsýni
Sameiginl. inngangur
Lyfta
Laus strax
Lýsing
Betri Stofan fasteignasala, ÞG verk og Jason Kristinn Ólafsson, sími 7751515 - jason@betristofan.is kynna með stolti: Kolagötu 3, íbúð 206. Falleg 120,2 fermetra 3ja herbergja íbúð með rúmgóðri þakverönd og útsýni út á Reykjavíkurhöfn við Kolagötu 3.
Fasteignamat um næstu áramót verður: kr. 133.350.000-
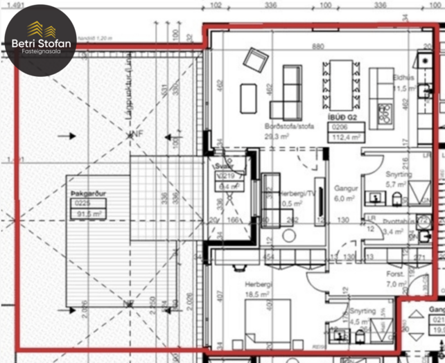
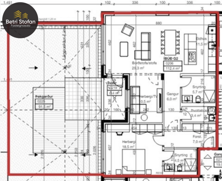
Eignin skiptist í: Tvö svefnherbergi, stofu/borðstofu, þakverönd, eldhús með vönduðum tækjum, tveimur baðherbergi og þvottaherbergi.
Forstofa: Með harðparketi á gólfi og skápum. Fataskápar eru sprautulakkaðir með innvols frá Innval af vandaðri gerð. Inngangshurð er svargrá með viðaráferð frá Huet.
Hjónaherbergi: Er stórt með harðparketi á gólfi og miklu skápaplássi. Stór gluggi út að sérafnotafleti/verönd og baðherbergi II inn af hjónaherbergi.
Baðherbergi II: Virkilega glæsilegt með flísum frá Iris stone á bæði gólfi og veggjum. Falleg innrétting frá Noblessa. Meganite borðplata með innbyggðum vaski úr sama efni. Eldhús: Með harðparketi á gólfi og glæsilegri innréttingu frá Noblessa með eyju. Borðplata er úr Meganite Carrara efni og með eldhúsvask sem felldur er í borðplötuna úr sama efni. Öll eldhústæki eru af vönduðustu gerð frá Siemens. Lýsing er undir efri skápum og ljúflokun á skúffum og skápum. Innbyggður kæliskápur, uppþvottavél og vínkælir fylgir. Auk þess innfelld kaffivél og innbyggður gufugleypir í eldhúseyju.
Stofa: Með harðparketi á gólfi og gluggum í tvær áttir. Stofa er opin við eldhús og rúmar setustofu og borðstofu. Fallegt útsýni úr stofu út á Reykjavíkurhöfn.
Þakverönd: Gengið er út á þakverönd frá stofu. Viðarverönd og fallegt útsýni að Reykjavíkurhöfn.
Baðherbergi I: Er afar glæsilegt með flísum frá Iris stone á bæði gólfi og veggjum. Falleg innrétting frá Noblessa. Meganite borðplata með innbyggðum vaski úr sama efni. Upphengt salerni með innbyggðum vatnskassa og falleg flísalögð sturta með innbyggðum blöndunartækjum frá Vola.
Upphengt salerni með innbyggðum vatnskassa og falleg flísalögð sturta með innbyggðum blöndunartækjum frá Vola.
Svefnherbergi: Með harðparketi á gólfi og glugga sem snýr út að verönd. Var upphaflega opið sem sjónvarpsstofa.
Þvottaherbergi: Með flísum á gólfi, innréttingu og vaski. Stæði fyrir þvottavél og þurrkara.
Geymsla: Alls 7,7 fermetrar að stærð.
Einstakt hús í hjarta borgarinnar.
Hafnartorg skartar 70 hágæða íbúðum. Allar innréttingar og tæki eru sérvaldar af innanhúsarkitekt til að mynda eina stílhreina heild og eru öll tæki og tæknibúnaður fyrsta flokks. Allt ytra efnisval bygginganna er í hæsta gæðaflokki sem og allur lóðarfrágangur. Undir húsunum er stærsti bílakjallari landsins sem nær allt til Hörpunnar. Íbúðirnar eru frábærlega staðsettar í nálægð við menningu, sögu, verslun og þjónustu. Lúxus fasteignir í hjarta Reykjavíkur með iðandi mannlíf allt um kring.
Byggingaraðili.
Frá árinu 1998 hefur ÞG Verk byggt fjölda heimila fyrir ánægðar fjölskyldur. Áreiðanleiki, gæði og notagildi eru einkunnarorð fyrirtækisins. Meginmarkmið ÞG Íbúða ehf er að skila góðu verki og eiga traust og áreiðanleg samskipti við viðskiptavini.
Bókið skoðun: Jason Kristinn Ólafsson, sími 7751515 - jason@betristofan.is löggiltur fasteignasali.
Fasteignamat um næstu áramót verður: kr. 133.350.000-
Eignin skiptist í: Tvö svefnherbergi, stofu/borðstofu, þakverönd, eldhús með vönduðum tækjum, tveimur baðherbergi og þvottaherbergi.
Forstofa: Með harðparketi á gólfi og skápum. Fataskápar eru sprautulakkaðir með innvols frá Innval af vandaðri gerð. Inngangshurð er svargrá með viðaráferð frá Huet.
Hjónaherbergi: Er stórt með harðparketi á gólfi og miklu skápaplássi. Stór gluggi út að sérafnotafleti/verönd og baðherbergi II inn af hjónaherbergi.
Baðherbergi II: Virkilega glæsilegt með flísum frá Iris stone á bæði gólfi og veggjum. Falleg innrétting frá Noblessa. Meganite borðplata með innbyggðum vaski úr sama efni. Eldhús: Með harðparketi á gólfi og glæsilegri innréttingu frá Noblessa með eyju. Borðplata er úr Meganite Carrara efni og með eldhúsvask sem felldur er í borðplötuna úr sama efni. Öll eldhústæki eru af vönduðustu gerð frá Siemens. Lýsing er undir efri skápum og ljúflokun á skúffum og skápum. Innbyggður kæliskápur, uppþvottavél og vínkælir fylgir. Auk þess innfelld kaffivél og innbyggður gufugleypir í eldhúseyju.
Stofa: Með harðparketi á gólfi og gluggum í tvær áttir. Stofa er opin við eldhús og rúmar setustofu og borðstofu. Fallegt útsýni úr stofu út á Reykjavíkurhöfn.
Þakverönd: Gengið er út á þakverönd frá stofu. Viðarverönd og fallegt útsýni að Reykjavíkurhöfn.
Baðherbergi I: Er afar glæsilegt með flísum frá Iris stone á bæði gólfi og veggjum. Falleg innrétting frá Noblessa. Meganite borðplata með innbyggðum vaski úr sama efni. Upphengt salerni með innbyggðum vatnskassa og falleg flísalögð sturta með innbyggðum blöndunartækjum frá Vola.
Upphengt salerni með innbyggðum vatnskassa og falleg flísalögð sturta með innbyggðum blöndunartækjum frá Vola.
Svefnherbergi: Með harðparketi á gólfi og glugga sem snýr út að verönd. Var upphaflega opið sem sjónvarpsstofa.
Þvottaherbergi: Með flísum á gólfi, innréttingu og vaski. Stæði fyrir þvottavél og þurrkara.
Geymsla: Alls 7,7 fermetrar að stærð.
Einstakt hús í hjarta borgarinnar.
Hafnartorg skartar 70 hágæða íbúðum. Allar innréttingar og tæki eru sérvaldar af innanhúsarkitekt til að mynda eina stílhreina heild og eru öll tæki og tæknibúnaður fyrsta flokks. Allt ytra efnisval bygginganna er í hæsta gæðaflokki sem og allur lóðarfrágangur. Undir húsunum er stærsti bílakjallari landsins sem nær allt til Hörpunnar. Íbúðirnar eru frábærlega staðsettar í nálægð við menningu, sögu, verslun og þjónustu. Lúxus fasteignir í hjarta Reykjavíkur með iðandi mannlíf allt um kring.
Byggingaraðili.
Frá árinu 1998 hefur ÞG Verk byggt fjölda heimila fyrir ánægðar fjölskyldur. Áreiðanleiki, gæði og notagildi eru einkunnarorð fyrirtækisins. Meginmarkmið ÞG Íbúða ehf er að skila góðu verki og eiga traust og áreiðanleg samskipti við viðskiptavini.
Bókið skoðun: Jason Kristinn Ólafsson, sími 7751515 - jason@betristofan.is löggiltur fasteignasali.
Gjöld sem kaupandi þarf að standa straum af ef að kaupum verður:
1. Stimpilgjald af fasteignamati fasteignar er 0.8%, en 0,4% fyrir fyrstu kaup og 1,6% fyrir lögaðila.
2. Þinglýsingargjald: kaupsamningi, skuldabréfi, veðleyfi, afsali o.s.frv. er kr. 3.800 af hverju skjali.
3. Lántökukostnaður samkvæmt verðskrá viðkomandi lánastofnunar.
4. Umsýslugjald til fasteignasölu skv. gjaldskrá.
Skoðunarskylda kaupanda:
Í lögum um fasteignakaup nr. 40/2002 er kveðið á um ríka skoðunarskyldu kaupenda á fasteignum. Betri Stofan fasteignasala bendir væntanlegum kaupendum á að kynna sér vel ástand fasteigna við skoðun og fyrir tilboðsgerð og ef þurfa þykir að leita til sérfræðinga um nánari ástandsskoðun.