Upplýsingar
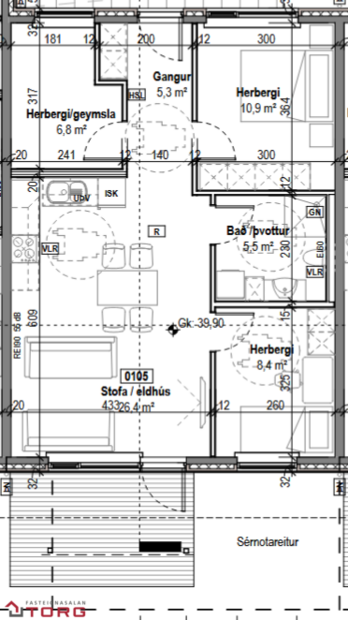
73,2 m²
3 herb.
1 baðherb.
2 svefnh.
Sérinngangur
Opið hús: 26. febrúar 2026
kl. 17:00
til 17:30
Matthildur Sunna Þorláksdóttir lgfs s. 690-4966 verður á staðnum og sýnir
Lýsing
SÆKJA SÖLUYFIRLIT HÉR
TORG FASTEIGNASALA KYNNIR Í SÖLU: Nýbygging í Dalshverfi, Reykjanesbæ. Eignin er á neðri hæð og er fullbúin, þriggja til fjögurra herbergja og 73,2 fm. Sér inngangur og sérafnotareitur til suðurs. Geymsla (6,8 fm) með glugga innan íbúðar . Áætlaðar afhendingar á verkefninu er eigi síðar en apríl 2026. Allar nánari upplýsingar veita Matthildur Sunna Þorláksdóttir, lögfræðingur og löggiltur fasteignasali, í síma 690-4966 eða matthildur@fstorg.is
ATH. Myndirnar eru úr sýningaríbúð í Jötundal 6, íb. nr. 101
Um verkefnið:
Um er að ræða hús á tveim hæðum með 13 íbúðum í nýju, fjölskylduvænu íbúðahverfi.
Íbúðirnar afhendast allar fullbúnar að innan sem utan, með innfelldum ísskáp, innfelldri uppþvottavél, loftljósum og gardínum, einnig með gólfefnum. Íbúðirnar eru allar með sér inngangi.
Svalir og sólpallar eru á móti suðri.
Eignin skilast fullbúin skv. skilalýsingu:
Íbúðin skilast fullbúin með gólfefnum, harðparket frá Harðviðarval á stofu, eldhúsi og herbergjum og flísar á baðherbergi og anddyri.
Innréttingar í eldhúsi frá HTH eða sambærilegum gæðum
Tæki í eldhúsi eru spanhelluborð, bakaraofn og veggháfur frá AEG eða sambærilegt. Einnig afhendist íbúðin með innbyggðum ísskáp og uppþvottavél.
Gólf baðherbergis og veggir á baðherbergi eru flísalagðir. Öll salerni eru upphengd og innbyggð í vegg. Á baði er handklæðaofn. Sturta er í öllum íbúðum og sturtubotn flísalagður.
Aðstaða fyrir þvottavél og þurrkara er á baði.
Húsið er byggt úr forsteyptum einingum.
Þakplata er varin með tveim lögum af asfalt pappa, einangrað með XPS einangrun. Takkadúkur einangraður með XPS einangrun, jarðvegsdúk og harpaðri þakmöl með kornstærð 60-80 mm.
Gluggar eru álklæddir timburgluggar.
Veggir að innan eru hlaðnir úr BAUROC hleðslustein og sandspartlaðir, grunnaðir og málaðir með tveimur umferðum af plastmálningu.
Fyrir nánari lýsingu, sjá skilalýsingu byggingaraðila hér.
Kaupandi greiðir skipulagsgjald af eigninni sem nemur 0,3% af brunabótamati og leggst á eftir að endanlegt brunabótamat hefur fengist á eignina.
Forsendur söluyfirlits:
Söluyfirlit er samið af fasteignasala í samræmi við ákvæði laga nr. 70/2015. Þær upplýsingar sem fram koma í söluyfirliti þessu eru sóttar í opinberar skrár, til seljanda sjálfs og eftir atvikum til húsfélags. Seljandi veitir upplýsingar um eign í samræmi við upplýsingaskyldu laga um fasteignakaup nr. 40/2002. Fasteignasali sannreynir að þær upplýsingar séu réttar með sjónskoðun á eigninni. Fasteignasali getur ekki fullyrt um ástand og eiginleika þeirra hluta fasteigna sem ekki eru aðgengilegir og sjást ekki berum augum, t.d. lagnir, dren, skólp og þak.
Gjöld sem kaupandi þarf að standa straum af vegna kaupanna:
Stimpilgjald af kaupsamningi sem er hlutfall af fasteignamati. Stimpilgjald er 0,8% fyrir einstaklinga (0,4% við fyrstu kaup m.v. að lágmarki 50% eignarhlut) og 1,6% fyrir lögaðila.Þinglýsingargjald hvers skjals er kr. 2.700,- .Lántökugjald lánastofnunar skv. gjaldskrá viðkomandi lánveitanda. Umsýsluþóknun fasteignasölu skv. gjaldskrá. Ef um nýbyggingu er að ræða greiðir kaupandi skipulagsgjald, 0,3% af brunabótamati, þegar það er lagt á.
TORG fasteignasala bendir fasteignakaupendum á ríka skoðunarskyldu kaupenda sem kveðið er á í lögum um fasteignakaup nr.40/2002. Skorað er á kaupendur að kynna sér vandlega ástand fasteigna og nýta til þess aðstoð sérfræðinga. Sömuleiðis er bent á upplýsingaskyldu seljanda samanber 26.gr. Laga nr.40/2002 um fasteignakaup og 25.gr. laga nr.26/1994 um fjöleignarhús. Seljanda er bent á að kynna sér tilvitnaðar lagagreinar.
TORG FASTEIGNASALA KYNNIR Í SÖLU: Nýbygging í Dalshverfi, Reykjanesbæ. Eignin er á neðri hæð og er fullbúin, þriggja til fjögurra herbergja og 73,2 fm. Sér inngangur og sérafnotareitur til suðurs. Geymsla (6,8 fm) með glugga innan íbúðar . Áætlaðar afhendingar á verkefninu er eigi síðar en apríl 2026. Allar nánari upplýsingar veita Matthildur Sunna Þorláksdóttir, lögfræðingur og löggiltur fasteignasali, í síma 690-4966 eða matthildur@fstorg.is
ATH. Myndirnar eru úr sýningaríbúð í Jötundal 6, íb. nr. 101
Um verkefnið:
Um er að ræða hús á tveim hæðum með 13 íbúðum í nýju, fjölskylduvænu íbúðahverfi.
Íbúðirnar afhendast allar fullbúnar að innan sem utan, með innfelldum ísskáp, innfelldri uppþvottavél, loftljósum og gardínum, einnig með gólfefnum. Íbúðirnar eru allar með sér inngangi.
Svalir og sólpallar eru á móti suðri.
Eignin skilast fullbúin skv. skilalýsingu:
Íbúðin skilast fullbúin með gólfefnum, harðparket frá Harðviðarval á stofu, eldhúsi og herbergjum og flísar á baðherbergi og anddyri.
Innréttingar í eldhúsi frá HTH eða sambærilegum gæðum
Tæki í eldhúsi eru spanhelluborð, bakaraofn og veggháfur frá AEG eða sambærilegt. Einnig afhendist íbúðin með innbyggðum ísskáp og uppþvottavél.
Gólf baðherbergis og veggir á baðherbergi eru flísalagðir. Öll salerni eru upphengd og innbyggð í vegg. Á baði er handklæðaofn. Sturta er í öllum íbúðum og sturtubotn flísalagður.
Aðstaða fyrir þvottavél og þurrkara er á baði.
Húsið er byggt úr forsteyptum einingum.
Þakplata er varin með tveim lögum af asfalt pappa, einangrað með XPS einangrun. Takkadúkur einangraður með XPS einangrun, jarðvegsdúk og harpaðri þakmöl með kornstærð 60-80 mm.
Gluggar eru álklæddir timburgluggar.
Veggir að innan eru hlaðnir úr BAUROC hleðslustein og sandspartlaðir, grunnaðir og málaðir með tveimur umferðum af plastmálningu.
Fyrir nánari lýsingu, sjá skilalýsingu byggingaraðila hér.
Kaupandi greiðir skipulagsgjald af eigninni sem nemur 0,3% af brunabótamati og leggst á eftir að endanlegt brunabótamat hefur fengist á eignina.
Forsendur söluyfirlits:
Söluyfirlit er samið af fasteignasala í samræmi við ákvæði laga nr. 70/2015. Þær upplýsingar sem fram koma í söluyfirliti þessu eru sóttar í opinberar skrár, til seljanda sjálfs og eftir atvikum til húsfélags. Seljandi veitir upplýsingar um eign í samræmi við upplýsingaskyldu laga um fasteignakaup nr. 40/2002. Fasteignasali sannreynir að þær upplýsingar séu réttar með sjónskoðun á eigninni. Fasteignasali getur ekki fullyrt um ástand og eiginleika þeirra hluta fasteigna sem ekki eru aðgengilegir og sjást ekki berum augum, t.d. lagnir, dren, skólp og þak.
Gjöld sem kaupandi þarf að standa straum af vegna kaupanna:
Stimpilgjald af kaupsamningi sem er hlutfall af fasteignamati. Stimpilgjald er 0,8% fyrir einstaklinga (0,4% við fyrstu kaup m.v. að lágmarki 50% eignarhlut) og 1,6% fyrir lögaðila.Þinglýsingargjald hvers skjals er kr. 2.700,- .Lántökugjald lánastofnunar skv. gjaldskrá viðkomandi lánveitanda. Umsýsluþóknun fasteignasölu skv. gjaldskrá. Ef um nýbyggingu er að ræða greiðir kaupandi skipulagsgjald, 0,3% af brunabótamati, þegar það er lagt á.
TORG fasteignasala bendir fasteignakaupendum á ríka skoðunarskyldu kaupenda sem kveðið er á í lögum um fasteignakaup nr.40/2002. Skorað er á kaupendur að kynna sér vandlega ástand fasteigna og nýta til þess aðstoð sérfræðinga. Sömuleiðis er bent á upplýsingaskyldu seljanda samanber 26.gr. Laga nr.40/2002 um fasteignakaup og 25.gr. laga nr.26/1994 um fjöleignarhús. Seljanda er bent á að kynna sér tilvitnaðar lagagreinar.