Upplýsingar
Byggt 1951
83,4 m²
3 herb.
1 baðherb.
2 svefnh.
Sameiginl. inngangur
Opið hús: 25. febrúar 2026
kl. 17:00
til 17:30
Opið hús: Sörlaskjól 66, 107 Reykjavík. Eignin verður sýnd miðvikudaginn 25. febrúar 2026 milli kl. 17:00 og kl. 17:30.
Lýsing
Hraunhamar fasteignasala kynnir tveggja-þriggja herbergja íbúð í þríbýli á eftirsóttum stað við sjávarsíðuna í Vesturbæ Reykjavíkur.
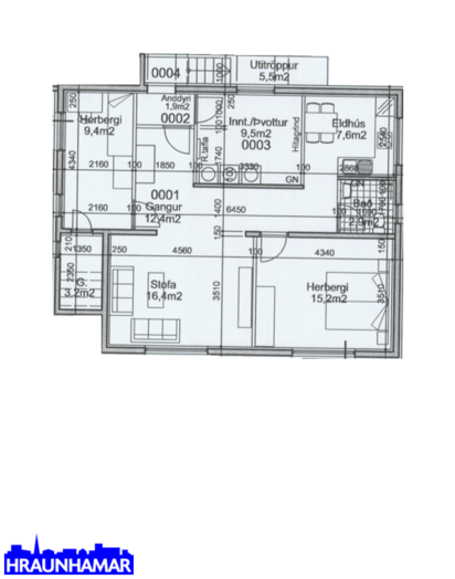
Eignin er skráð 83,4 fm skv. HMS.
Nánari lýsing eignar:
Sérinngangur bakgarðsmegin.
Hol/gangur.
Eldhús með hvítri innréttingu. Skápur.
Tvö rúmgóð herbergi með fataskápum. (Annað þeirra er merkt stofa á teikningu)
Flísalagt baðherbergi með upphengdu salerni og baðkari. (er merkt herbergi til vinstri á teikningu). Geymsla undir útistiga innan baðherbergis.
Sameiginlegt þvottahús í kjallaranum.
Íbúðin er ekki í samræmi við teikningar.
Til eru samþykktar teikningar af viðbyggingu kjallarans frá 2018 og eru þær teikningar gerðar í samræmi við viðbyggingu efrihæðar. Eiga því ekki við í dag.
Nánari upplýsingar veitir:
Glódís Helgadóttir löggiltur fasteignasali í s. 659-0510 eða glodis@hraunhamar.is
Skoðunarskylda:
Í lögum um fasteignakaup nr. 40/2002 er kveðið á um ríka skoðunarskyldu kaupenda á fasteignum. Hraunhamar fasteignasala vill benda væntanlegum kaupendum á að kynna sér vel ástand fasteigna fyrir kauptilboðsgerð og ef þurfa þykir að leita til sérfræðinga fyrir nánari ástandsskoðun.
Gjöld sem kaupandi þarf að standa straum af vegna kaupanna:
1. Stimpilgjald af kaupsamningi, fyrstu kaup (0,4%), almenn kaup (0,8%), lögaðilar (1,6%) af heildarfasteignamati.
2. Þinglýsingargjald af kaupsamningi, veðskuldabréfi, mögulegu veðleyfi o.fl. – 3.800 kr. af hverju skjali.
3. Lántökugjald lánastofnunar er skv. verðskrá viðkomandi lánastofnunar.
4. Umsýslugjald til fasteignasölu skv. þjónustusamningi
Hraunhamar er elsta fasteignasala Hafnarfjarðar, stofnuð 1983.
Hraunhamar, í fararbroddi í rúm 40 ár. – Hraunhamar.is
Smelltu hér til að fá frítt söluverðmat.
Smelltu hér til að fá söluyfirlit sent strax.
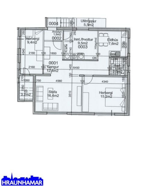
Eignin er skráð 83,4 fm skv. HMS.
Nánari lýsing eignar:
Sérinngangur bakgarðsmegin.
Hol/gangur.
Eldhús með hvítri innréttingu. Skápur.
Tvö rúmgóð herbergi með fataskápum. (Annað þeirra er merkt stofa á teikningu)
Flísalagt baðherbergi með upphengdu salerni og baðkari. (er merkt herbergi til vinstri á teikningu). Geymsla undir útistiga innan baðherbergis.
Sameiginlegt þvottahús í kjallaranum.
Íbúðin er ekki í samræmi við teikningar.
Til eru samþykktar teikningar af viðbyggingu kjallarans frá 2018 og eru þær teikningar gerðar í samræmi við viðbyggingu efrihæðar. Eiga því ekki við í dag.
Nánari upplýsingar veitir:
Glódís Helgadóttir löggiltur fasteignasali í s. 659-0510 eða glodis@hraunhamar.is
Skoðunarskylda:
Í lögum um fasteignakaup nr. 40/2002 er kveðið á um ríka skoðunarskyldu kaupenda á fasteignum. Hraunhamar fasteignasala vill benda væntanlegum kaupendum á að kynna sér vel ástand fasteigna fyrir kauptilboðsgerð og ef þurfa þykir að leita til sérfræðinga fyrir nánari ástandsskoðun.
Gjöld sem kaupandi þarf að standa straum af vegna kaupanna:
1. Stimpilgjald af kaupsamningi, fyrstu kaup (0,4%), almenn kaup (0,8%), lögaðilar (1,6%) af heildarfasteignamati.
2. Þinglýsingargjald af kaupsamningi, veðskuldabréfi, mögulegu veðleyfi o.fl. – 3.800 kr. af hverju skjali.
3. Lántökugjald lánastofnunar er skv. verðskrá viðkomandi lánastofnunar.
4. Umsýslugjald til fasteignasölu skv. þjónustusamningi
Hraunhamar er elsta fasteignasala Hafnarfjarðar, stofnuð 1983.
Hraunhamar, í fararbroddi í rúm 40 ár. – Hraunhamar.is
Smelltu hér til að fá frítt söluverðmat.
Smelltu hér til að fá söluyfirlit sent strax.