Upplýsingar
Verðsaga
Byggt 1972
189,9 m²
4 herb.
1 baðherb.
3 svefnh.
Þvottahús
Bílskúr
Sérinngangur
Lýsing
Guðbergur s 8936001 og fasteignasalan Bær kynna: Einbýlishús á einni hæð 190 fm með 4 svefnherbergjum, stofu, sólstofu, eldhúsi, baðherbergi, þvottaherbergi og bílskúr á 1200 fm lóð.
Frábær staðsettning og stutt í náttúruna.
Nánari lýsing: Anddyri með flísum á gólfi og fatahengi. Svefnherbergin eru 4 og þrjú með fataskáp, parket á gólfum í öllum herbergjum nema einu sem er með máluðu gólfi. Baðherbergi er flísalagt í hólf og gólf, upphengt salerni, handklæðaofn og innrétting. Eldhús er nýlegt og með miklu skápaplássi, innbyggður: frystir, ísskápur, uppþvottavél, tveir bökunar ofnar, spanhelluborð og vifta. Þvottaherbergi með flísalögðu gólfi, tengi fyrir tvær þvottavélar og þurkara og útgengi út í garð. Stofa með flísum á gólfi. Sólskáli er í beinu framhaldi af stofu með parket á gólfi, arni og útgengi út á verönd og þaðan út í garð. Rúmgóður bílskúr og inn af honum er geymsla.
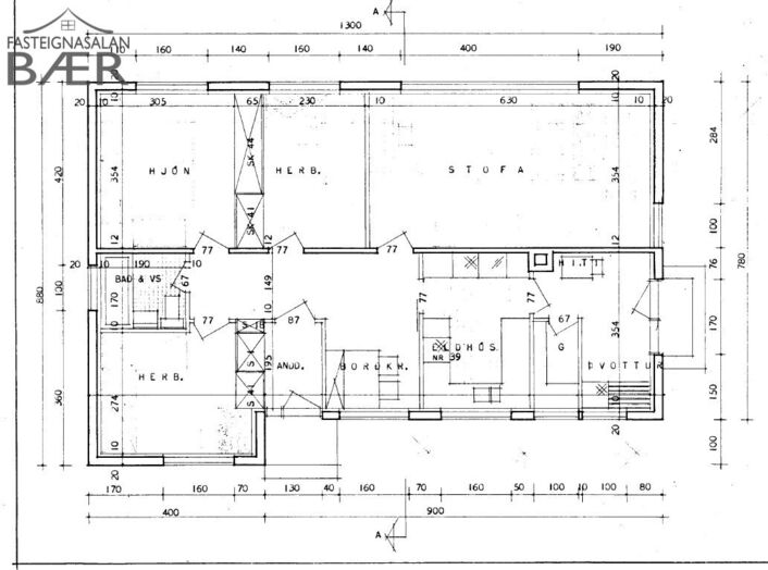
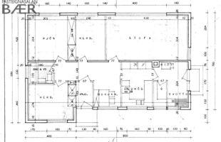
Teikning af húsinu sem er í myndum er ekki með rétta herbergjaskipan eins og hún er í dag.
Viðhald: Skipt um allt gler nema í opnanlegum fögum á vestur hlið, allir gluggar úr herbergjum og stofu út í garð nýlegir. Allar raflagnir nýjar, ný tafla, rofar og tenglar. Þakjárn og pappi var endurnýjað 2019.
Húsið lítur vel út en skipta þarf um klæðningu á bílskúr inn í garð.
Stór lóð, góð staðsettning og fallegar gönguleiðir í 100m fjarlægð.
Allar nánari upplýsingar veitir Guðbergur Guðbergsson löggiltur fasteignasali s 8936001. beggi@fasteignasalan.is
Frábær staðsettning og stutt í náttúruna.
Nánari lýsing: Anddyri með flísum á gólfi og fatahengi. Svefnherbergin eru 4 og þrjú með fataskáp, parket á gólfum í öllum herbergjum nema einu sem er með máluðu gólfi. Baðherbergi er flísalagt í hólf og gólf, upphengt salerni, handklæðaofn og innrétting. Eldhús er nýlegt og með miklu skápaplássi, innbyggður: frystir, ísskápur, uppþvottavél, tveir bökunar ofnar, spanhelluborð og vifta. Þvottaherbergi með flísalögðu gólfi, tengi fyrir tvær þvottavélar og þurkara og útgengi út í garð. Stofa með flísum á gólfi. Sólskáli er í beinu framhaldi af stofu með parket á gólfi, arni og útgengi út á verönd og þaðan út í garð. Rúmgóður bílskúr og inn af honum er geymsla.
Teikning af húsinu sem er í myndum er ekki með rétta herbergjaskipan eins og hún er í dag.
Viðhald: Skipt um allt gler nema í opnanlegum fögum á vestur hlið, allir gluggar úr herbergjum og stofu út í garð nýlegir. Allar raflagnir nýjar, ný tafla, rofar og tenglar. Þakjárn og pappi var endurnýjað 2019.
Húsið lítur vel út en skipta þarf um klæðningu á bílskúr inn í garð.
Stór lóð, góð staðsettning og fallegar gönguleiðir í 100m fjarlægð.
Allar nánari upplýsingar veitir Guðbergur Guðbergsson löggiltur fasteignasali s 8936001. beggi@fasteignasalan.is
Ár
Fasteignamat
Kaupverð
Stærð
Fermetraverð
10. ágú. 2020
49.250.000 kr.
53.000.000 kr.
189.9 m²
279.094 kr.
21. mar. 2014
26.900.000 kr.
24.200.000 kr.
189.9 m²
127.435 kr.
13. júl. 2009
27.620.000 kr.
22.600.000 kr.
189.9 m²
119.010 kr.
Byggt á upplýsingum úr Þjóðskrá Íslands frá 2006-2026