Upplýsingar
Verðsaga
Byggt 2014
121,6 m²
3 herb.
1 baðherb.
2 svefnh.
Þvottahús
Sameiginl. inngangur
Bílastæði
Lyfta
Lýsing
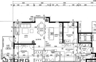
Fasteignasalan TORG og Margrét Rós lgf. kynna í sölu glæsilega og afar rúmgóða íbúð á 5. hæð með svalalokun og stæði í bílageymslu við Lund 4 í Kópavogi. Um er að ræða 121,6 fermetra íbúð í vönduðu lyftuhúsi byggt af BYGG. íbúðin er með 2 svefnherbergjum, rúmgóðri stofu með gólfsíðum gluggum, fallegu eldhúsi með stórri eyju sem er opið við stofu, sjónvarpsstofu, rúmgóðum yfirbyggðum svölum, fallegu baðherbergi með sturtu og góðu þvottaherbergi. Gólfhiti er í allri íbúðinni. Sérgeymsla í kjallara sem er 7,1 fermetrar og sérmerkt stæði í bílakjallara. Nánari upplýsingar veitir Margrét Rós Einarsdóttir Löggiltur fasteignasali, í síma 856-5858, tölvupóstur margret@fstorg.is.
*** SÆKJA SÖLUYFIRLIT HÉR ***
Birt stærð eignar skv. fasteignaskrá HMS er 121,6 m² þar af er íbúð skráð 114,5 m² og sér geymsla í kjallara skráð 7,1 m² - Bílastæði í bílageymslu merkt: B-33 tilheyrir eigninni.
ERTU Í SÖLUHUGLEIÐINGUM? SMELLTU HÉR FYRIR FRÍTT VERÐMAT
Sameign hússins er afar snyrtileg með flísum á ytra anddyri og teppum á sameign. Tvær lyftur er í húsinu sem ganga niður í bílakjallara. Rafmagnshurðaropnun er á aðalhurðum í sameign. Myndavéladyrasími er í húsinu. Þvottastæði í bílakjallara. Lóðin er snyrtileg og frágengin með hellulagðri stétt fyrir framan hús með snjóbræðslu og sameiginlegum malbikuðum stæðum.
Við hönnun hússins var haft að leiðarljósi að hafa íbúðirnar bjartar og rúmgóðar með stórum gluggum sem ná niður í gólf og hita í gólfum. Húsið eru álklædd og eru því viðhaldslítil. Stutt er í Fossvoginn með sinni einstöku fegurð, Öskjuhlíðin og rómaðar gönguleiðir tengja Lundinn saman á þann hátt að gott jafnvægi er á milli byggðar og náttúru. Hverfið er byggt upp með sex kjörnum og stórum grænum svæðum sem flæða á milli þeirra. Stutt er í margvíslega þjónustu og afþreyingu. Smáralindin, Kringlan svo ekki sé minnst á menningarlífið í Gjánni, s.s. Salinn og Gerðarsafn er steinsnar frá Lundi.
Nánari lýsing:
Forstofa er með flísum á gólfi, góðum skápum og fallegri forstofuhurð með gleri.
Þvottaherbergi er staðsett til hliðar af forstofu. Flísar á gólfi og innrétting með góðu skápaplássi ásamt vinnuborði og vaski. Tengi fyrir þvottavél og þurrkara ásamt stæði fyrir kæliskáp/frysti.
Sjónvarpsstofa og hol er staðsett inn af forstofu og tengir saman önnur rými íbúðar. Með parketi á gólfi og opin inn í alrými íbúðar.
Svefnherbergi er til hliðar við sjónvarpshol og með parketi á gólfi ásamt góðum skápum og glugga til norðurs.
Alrými er stórt og rúmar vel opið eldhús, stofu, borðstofu, hol og sjónvarpshol. Parket á gólfi
Eldhús er með vandaðri eikar innréttingu og eldunareyju ásamt helluborði. Ofn og combiofn í vinnuhæð og uppþvottavél í innréttingu.
Stofa er rúmgóð með stórum gólfsíðum gluggum til tveggja átta sem gerir rýmið virkilega bjart. Rúmar vel borðstofu og setustofu með útgengi á svalir frá stofu.
Svalir eru rúmgóðar með flísum á svalagólfi og opnanlegri svalalokun.
Baðherbergi er rúmgott með vandaðri innréttingu með vaski og spegli ásamt lýsingu. Vegghengt salerni og "walk in" sturta með glerskilrúmi ásamt handklæðaofni á vegg. Flísalagt hátt og lágt með hvítum flísum á vegg og gráum á gólfi.
Hjónaherbergi er rúmgott með parketi á gólfi og stórum glugga ásamt fataherbergi inn af herbergi.
Fataherbergi er staðsett inn af hjónaherbergi og með parketi á gólfi ásamt vönduðum hillum og skúffum á tvo vegu.
Gólfhiti í öllum gólfum. Eikarparket á gólfum nema á votrýmum þar eru flísar.
Sérmerkt bílastæði (númer 33) er einstaklega vel staðsett í bílakjallara. Sér þvottastæði fyrir bíla er í bílakjallara.
Sérgeymsla er í kjallaram 7,1 m2 að stærð ásamt útloftun.
Hjóla- og vagnageymsla eru tvær og eru staðsettar í kjallara.
** HVERS VIRÐI ER ÞÍN EIGN? SMELLTU HÉR **
Frábært staðsetning miðsvæðis á höfuðborgarsvæðinu, þar sem öll helsta þjónusta og verslanir eru í göngufær. Örstutt er í frábær útivistarsvæði í Fossvogi, ásamt góðum göngu- og hjólastígum sem liggja í allar áttir og náttúruna í kring m.a. í Elliðarárdal, Nauthólsvík og víðar í næsta nágrenni. Virkilega falleg eign sem vert er að skoða.
Nánari upplýsingar veita:
Margrét Rós Einarsdóttir - Löggiltur fasteignasali í Félagi fasteignasala / s. 856-5858 / margret@fstorg.is
Aðalsteinn Bjarnason - Löggiltur fasteignasali í Félagi fasteignasala / s. 773-3532 / adalsteinn@fstorg.is
KÍKTU Í HEIMSÓKN TIL MÍN Á FACEBOOK
VILTU VITA HVAÐ VIÐSKIPTAVINIR OKKAR HAFA SEGJA? SMELLTU HÉR
Um skoðunar- og aðgæsluskyldu:
Í lögum um fasteignakaup nr. 40/2002 er kveðið á um ríka skoðunarskyldu kaupenda á fasteignum. Væntanlegum kaupendum er bent á að kynna sér vel ástand fasteigna við skoðun og fyrir tilboðsgerð og ef þurfa þykir að leita til sérfræðinga um nánari ástandsskoðun. Almennt getur kaupandi ekki borið fyrir sig að ástand eignar sé annað en það sem hann hefði mátt sjá við slíka skoðun.
Forsendur söluyfirlits:
Söluyfirlit er samið af fasteignasala í samræmi við ákvæði laga nr. 70/2015. Þær upplýsingar sem fram koma í söluyfirliti þessu eru sóttar í opinberar skrár, til seljanda sjálfs og eftir atvikum til húsfélags. Seljandi veitir upplýsingar um eign í samræmi við upplýsingaskyldu laga um fasteignakaup nr. 40/2002, og ábyrgist að þær séu réttar. Fasteignasali sannreynir að þær upplýsingar séu réttar með sjónskoðun á eigninni. Fasteignasali getur ekki fullyrt um ástand og eiginleika þeirra hluta fasteigna sem ekki eru aðgengilegir og sjást ekki berum augum, t.d. lagnir, dren, skólp og þak. Það sama á við um staðhæfingar seljanda eignar um viðhald og einstaka framkvæmdir.
Gjöld sem kaupandi þarf að standa straum af vegna kaupanna:
Stimpilgjald af kaupsamningi sem er hlutfall af fasteignamati. Stimpilgjald er 0,8% fyrir einstaklinga (0,4% við fyrstu kaup) og 1,6% fyrir lögaðila.
Þinglýsingargjald af kaupsamningi, veðskuldabréfum, veðleyfum o.fl. Þinglýsingargjald er kr. 2.700,- fyrir hvert skjal.
Lántökugjald lánastofnunar. Um lántökugjald vísast í gjaldskrá viðkomandi lánveitanda.
Umsýsluþóknun fasteignasölu skv. gjaldskrá.
Ef um nýbyggingu er að ræða greiðir kaupandi skipulagsgjald, 0,3% af brunabótamáti, þegar það er lagt á.
*** SÆKJA SÖLUYFIRLIT HÉR ***
Birt stærð eignar skv. fasteignaskrá HMS er 121,6 m² þar af er íbúð skráð 114,5 m² og sér geymsla í kjallara skráð 7,1 m² - Bílastæði í bílageymslu merkt: B-33 tilheyrir eigninni.
ERTU Í SÖLUHUGLEIÐINGUM? SMELLTU HÉR FYRIR FRÍTT VERÐMAT
Sameign hússins er afar snyrtileg með flísum á ytra anddyri og teppum á sameign. Tvær lyftur er í húsinu sem ganga niður í bílakjallara. Rafmagnshurðaropnun er á aðalhurðum í sameign. Myndavéladyrasími er í húsinu. Þvottastæði í bílakjallara. Lóðin er snyrtileg og frágengin með hellulagðri stétt fyrir framan hús með snjóbræðslu og sameiginlegum malbikuðum stæðum.
Við hönnun hússins var haft að leiðarljósi að hafa íbúðirnar bjartar og rúmgóðar með stórum gluggum sem ná niður í gólf og hita í gólfum. Húsið eru álklædd og eru því viðhaldslítil. Stutt er í Fossvoginn með sinni einstöku fegurð, Öskjuhlíðin og rómaðar gönguleiðir tengja Lundinn saman á þann hátt að gott jafnvægi er á milli byggðar og náttúru. Hverfið er byggt upp með sex kjörnum og stórum grænum svæðum sem flæða á milli þeirra. Stutt er í margvíslega þjónustu og afþreyingu. Smáralindin, Kringlan svo ekki sé minnst á menningarlífið í Gjánni, s.s. Salinn og Gerðarsafn er steinsnar frá Lundi.
Nánari lýsing:
Forstofa er með flísum á gólfi, góðum skápum og fallegri forstofuhurð með gleri.
Þvottaherbergi er staðsett til hliðar af forstofu. Flísar á gólfi og innrétting með góðu skápaplássi ásamt vinnuborði og vaski. Tengi fyrir þvottavél og þurrkara ásamt stæði fyrir kæliskáp/frysti.
Sjónvarpsstofa og hol er staðsett inn af forstofu og tengir saman önnur rými íbúðar. Með parketi á gólfi og opin inn í alrými íbúðar.
Svefnherbergi er til hliðar við sjónvarpshol og með parketi á gólfi ásamt góðum skápum og glugga til norðurs.
Alrými er stórt og rúmar vel opið eldhús, stofu, borðstofu, hol og sjónvarpshol. Parket á gólfi
Eldhús er með vandaðri eikar innréttingu og eldunareyju ásamt helluborði. Ofn og combiofn í vinnuhæð og uppþvottavél í innréttingu.
Stofa er rúmgóð með stórum gólfsíðum gluggum til tveggja átta sem gerir rýmið virkilega bjart. Rúmar vel borðstofu og setustofu með útgengi á svalir frá stofu.
Svalir eru rúmgóðar með flísum á svalagólfi og opnanlegri svalalokun.
Baðherbergi er rúmgott með vandaðri innréttingu með vaski og spegli ásamt lýsingu. Vegghengt salerni og "walk in" sturta með glerskilrúmi ásamt handklæðaofni á vegg. Flísalagt hátt og lágt með hvítum flísum á vegg og gráum á gólfi.
Hjónaherbergi er rúmgott með parketi á gólfi og stórum glugga ásamt fataherbergi inn af herbergi.
Fataherbergi er staðsett inn af hjónaherbergi og með parketi á gólfi ásamt vönduðum hillum og skúffum á tvo vegu.
Gólfhiti í öllum gólfum. Eikarparket á gólfum nema á votrýmum þar eru flísar.
Sérmerkt bílastæði (númer 33) er einstaklega vel staðsett í bílakjallara. Sér þvottastæði fyrir bíla er í bílakjallara.
Sérgeymsla er í kjallaram 7,1 m2 að stærð ásamt útloftun.
Hjóla- og vagnageymsla eru tvær og eru staðsettar í kjallara.
** HVERS VIRÐI ER ÞÍN EIGN? SMELLTU HÉR **
Frábært staðsetning miðsvæðis á höfuðborgarsvæðinu, þar sem öll helsta þjónusta og verslanir eru í göngufær. Örstutt er í frábær útivistarsvæði í Fossvogi, ásamt góðum göngu- og hjólastígum sem liggja í allar áttir og náttúruna í kring m.a. í Elliðarárdal, Nauthólsvík og víðar í næsta nágrenni. Virkilega falleg eign sem vert er að skoða.
Nánari upplýsingar veita:
Margrét Rós Einarsdóttir - Löggiltur fasteignasali í Félagi fasteignasala / s. 856-5858 / margret@fstorg.is
Aðalsteinn Bjarnason - Löggiltur fasteignasali í Félagi fasteignasala / s. 773-3532 / adalsteinn@fstorg.is
KÍKTU Í HEIMSÓKN TIL MÍN Á FACEBOOK
VILTU VITA HVAÐ VIÐSKIPTAVINIR OKKAR HAFA SEGJA? SMELLTU HÉR
Um skoðunar- og aðgæsluskyldu:
Í lögum um fasteignakaup nr. 40/2002 er kveðið á um ríka skoðunarskyldu kaupenda á fasteignum. Væntanlegum kaupendum er bent á að kynna sér vel ástand fasteigna við skoðun og fyrir tilboðsgerð og ef þurfa þykir að leita til sérfræðinga um nánari ástandsskoðun. Almennt getur kaupandi ekki borið fyrir sig að ástand eignar sé annað en það sem hann hefði mátt sjá við slíka skoðun.
Forsendur söluyfirlits:
Söluyfirlit er samið af fasteignasala í samræmi við ákvæði laga nr. 70/2015. Þær upplýsingar sem fram koma í söluyfirliti þessu eru sóttar í opinberar skrár, til seljanda sjálfs og eftir atvikum til húsfélags. Seljandi veitir upplýsingar um eign í samræmi við upplýsingaskyldu laga um fasteignakaup nr. 40/2002, og ábyrgist að þær séu réttar. Fasteignasali sannreynir að þær upplýsingar séu réttar með sjónskoðun á eigninni. Fasteignasali getur ekki fullyrt um ástand og eiginleika þeirra hluta fasteigna sem ekki eru aðgengilegir og sjást ekki berum augum, t.d. lagnir, dren, skólp og þak. Það sama á við um staðhæfingar seljanda eignar um viðhald og einstaka framkvæmdir.
Gjöld sem kaupandi þarf að standa straum af vegna kaupanna:
Stimpilgjald af kaupsamningi sem er hlutfall af fasteignamati. Stimpilgjald er 0,8% fyrir einstaklinga (0,4% við fyrstu kaup) og 1,6% fyrir lögaðila.
Þinglýsingargjald af kaupsamningi, veðskuldabréfum, veðleyfum o.fl. Þinglýsingargjald er kr. 2.700,- fyrir hvert skjal.
Lántökugjald lánastofnunar. Um lántökugjald vísast í gjaldskrá viðkomandi lánveitanda.
Umsýsluþóknun fasteignasölu skv. gjaldskrá.
Ef um nýbyggingu er að ræða greiðir kaupandi skipulagsgjald, 0,3% af brunabótamáti, þegar það er lagt á.
Ár
Fasteignamat
Kaupverð
Stærð
Fermetraverð
13. maí. 2014
15.850.000 kr.
47.000.000 kr.
121.6 m²
386.513 kr.
Byggt á upplýsingum úr Þjóðskrá Íslands frá 2006-2026