Upplýsingar
Verðsaga
Byggt 2007
177,7 m²
4 herb.
2 baðherb.
3 svefnh.
Þvottahús
Sérinngangur
Bílastæði
Opið hús: 1. mars 2026
kl. 14:00
til 14:30
Opið hús: Klettakór 1C, 203 Kópavogur íb. 301. Eignin verður sýnd sunnudaginn 1. mars 2026 milli kl. 14:00 og kl. 14:30.
Lýsing
Valhöll kynnir: Glæsilega 4ra herbergja útsýnisíbúð með sérinngangi á þriðju og efstu hæð að Klettakór 1c, 203 Kópavogi. Tvö stæði í lokaðri bílageymslu. Tvö baðherbergi. Þvottahús og rúmgóð geymsla innan íbúðar. Hiti í gólfum. Rúmgóðar suðvestur svalir. Um er að ræða stórglæsilega og rúmgóða útsýnisíbúð með miklu útsýni til Esjunnar, Heiðmerkur, Bláfjalla, Elliðavatns og yfir Kópavog og Reykjanes.
Smelltu hér til að skoða myndband af eigninni
Nánari upplýsingar veitir Óskar H. Bjarnasen, lögmaður og löggiltur fasteignasali í síma 691-1931 eða oskar@valholl.is.
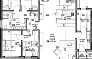
Skv. Fasteignayfirliti HMS er íbúðin 177,7 fm auk tveggja samliggjandi stæða í lokaðri bílageymslu, merkt B16 og B17.
Nánari lýsing:
Forstofa með flísum á gólfi og forstofuskáp.
Rúmgóð geymsla (7,3 fm) er inn af forstofu með flísum á gólfi, hillum og glugga. Mögulegt væri að nota þetta rými sem skrifstofu eða fjórða svefnherbergið.
Mjög rúmgóð og björt stofa með parketi á gólfi, gluggum á tvo vegu og er útgengt á rúmgóðar suðvestur svalir (15,8 fm). Hemild er fyrir svalalokun.
Eldhús er opið með borðstofu og stofu með parketi á gólfi, dökkri innréttingu, eyju, Miele spanhelluborði, Miele ofni, borðkrók og mjög stórum glugga með stórfenglegu útsýni til norðausturs m.a. yfir Elliðavatn.
Þvottahús með flísum á gólfi og innréttingu fyrir tæki í vinnuhæð.
Hjónaherbergi með parketi á gólfi og fataskápum. Inn af hjónaherberginu er sérbaðherbergi flísalagt í hólf og gólf, fallegri innréttingu, upphengdu salerni, glugga og sturtuklefa.
Svefnherbergisgangur leiðir að tveimur barnarherbergjum og baðherbergi. Á ganginum er í dag skrifsfofuaðstaða.
Svefnherbergi II og III bæði með parketi á gólfi og fataskápum.
Baðherbergið er flísalagt í hólf og gólf, með fallegri innréttingu, stórum vaski glugga og rúmgóðri flísalagðri sturtu.
Í sameign er sameiginleg hjóla/vagnageymsla.
Tvö sér bílastæði hlið við hlið í lokaðri bílageymslu. Búið að setja upp rafhleðslukerfi í húsinu og þarf eingögnu að setja upp stöð.
Aðstaða til bílaþvotta er í bílageymslu. Stórt bílaplan er á lóð með uppsettum sameiginlegum rafhleðslustöðvum.
Falleg fjölskyldueign með stórkostlegu útsýni yfir Kópavog, Elliðavatn, fjallagarða umhverfis höfuðborgarsvæðið, til sjávar og Reykjanesskaga. Afar barnvænt hverfi og göngufæri í leik og grunnskóla sem og íþróttir, verslun og þjónustu. Útivist og góðar gönguleiðir á næsta leiti.
Nánari upplýsingar veitir Óskar H. Bjarnasen, lögmaður og löggiltur fasteignasali í síma 691-1931 eða oskar@valholl.is.
Smelltu hér til að skoða myndband af eigninni
Nánari upplýsingar veitir Óskar H. Bjarnasen, lögmaður og löggiltur fasteignasali í síma 691-1931 eða oskar@valholl.is.
Skv. Fasteignayfirliti HMS er íbúðin 177,7 fm auk tveggja samliggjandi stæða í lokaðri bílageymslu, merkt B16 og B17.
Nánari lýsing:
Forstofa með flísum á gólfi og forstofuskáp.
Rúmgóð geymsla (7,3 fm) er inn af forstofu með flísum á gólfi, hillum og glugga. Mögulegt væri að nota þetta rými sem skrifstofu eða fjórða svefnherbergið.
Mjög rúmgóð og björt stofa með parketi á gólfi, gluggum á tvo vegu og er útgengt á rúmgóðar suðvestur svalir (15,8 fm). Hemild er fyrir svalalokun.
Eldhús er opið með borðstofu og stofu með parketi á gólfi, dökkri innréttingu, eyju, Miele spanhelluborði, Miele ofni, borðkrók og mjög stórum glugga með stórfenglegu útsýni til norðausturs m.a. yfir Elliðavatn.
Þvottahús með flísum á gólfi og innréttingu fyrir tæki í vinnuhæð.
Hjónaherbergi með parketi á gólfi og fataskápum. Inn af hjónaherberginu er sérbaðherbergi flísalagt í hólf og gólf, fallegri innréttingu, upphengdu salerni, glugga og sturtuklefa.
Svefnherbergisgangur leiðir að tveimur barnarherbergjum og baðherbergi. Á ganginum er í dag skrifsfofuaðstaða.
Svefnherbergi II og III bæði með parketi á gólfi og fataskápum.
Baðherbergið er flísalagt í hólf og gólf, með fallegri innréttingu, stórum vaski glugga og rúmgóðri flísalagðri sturtu.
Í sameign er sameiginleg hjóla/vagnageymsla.
Tvö sér bílastæði hlið við hlið í lokaðri bílageymslu. Búið að setja upp rafhleðslukerfi í húsinu og þarf eingögnu að setja upp stöð.
Aðstaða til bílaþvotta er í bílageymslu. Stórt bílaplan er á lóð með uppsettum sameiginlegum rafhleðslustöðvum.
Falleg fjölskyldueign með stórkostlegu útsýni yfir Kópavog, Elliðavatn, fjallagarða umhverfis höfuðborgarsvæðið, til sjávar og Reykjanesskaga. Afar barnvænt hverfi og göngufæri í leik og grunnskóla sem og íþróttir, verslun og þjónustu. Útivist og góðar gönguleiðir á næsta leiti.
Nánari upplýsingar veitir Óskar H. Bjarnasen, lögmaður og löggiltur fasteignasali í síma 691-1931 eða oskar@valholl.is.
Ár
Fasteignamat
Kaupverð
Stærð
Fermetraverð
22. ágú. 2022
80.350.000 kr.
114.900.000 kr.
177.7 m²
646.595 kr.
26. mar. 2020
67.750.000 kr.
79.000.000 kr.
177.7 m²
444.569 kr.
25. apr. 2012
37.050.000 kr.
39.500.000 kr.
177.7 m²
222.285 kr.
11. sep. 2007
25.590.000 kr.
49.000.000 kr.
177.7 m²
275.746 kr.
Byggt á upplýsingum úr Þjóðskrá Íslands frá 2006-2026