Upplýsingar
Byggt 2025
109 m²
3 herb.
1 baðherb.
2 svefnh.
Þvottahús
Sameiginl. inngangur
Bílastæði
Lyfta
Lýsing
Betri Stofan fasteignasala og Jason Ólafsson fasteignasli kynnir: Glæsilegar útsýnisíbúðir í fjölbreyttum stærðum við Heklureit þar sem áhersla er lögð á nútímalega hönnun með vönduðum sérsmíðuðum ítölskum innréttingum og nýjustu Siemens tækjum. Gólfsíðir gluggar hleypa mikilli náttúrulegri birtu inn og auka útsýni. Gólfhiti er í öllum íbúðum. Íbúðir á efri hæðum hafa eigin þakgarða en sameiginlegur þakgarður verður einnig fyrir alla íbúa í húsinu ásamt fallegum inngarði. Frábær staðsetning í miðborginni en þó fjarri skarkala miðbæjarins.
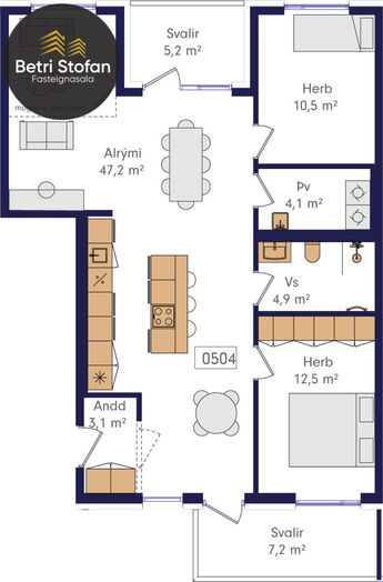
Íbúð 504 er rúmgóð 3ja herbergja íbúð á 5. hæð í 8. hæða húsi, með öllum þægindum sem hægt er að hugsa sér. Samtals 109 fermetrar. Svalir til suðurs (7,2 fm) og með frábæru útsýni til norðurs (4,3 fm) og skiptist íbúðin í 2 svefnherbergi, stofu, eldhús, baðherbergi og sér þvottahús. Gólfhiti er í íbúðinni. Val stendur tim boða um innréttingar. Sérgeymsla fylgir að stærðinni 12,8 fm. Stæði merkt B55 fylgir íbúðinni.
Heimasíða
Húsið er klætt með mismunandi litaðri álklæðningu ásamt Bambus sem gefur því lifandi yfirbragð og þarfnast lítils viðhalds.
Miðlæg staðsetning tryggir gott aðgengi að helstu umferðaræðum sem sparar tíma og peninga.
Örstutt í helstu stofnbrautir eins og Sæbraut, Kringlumýrabraut og Miklubraut.
Kaupandi greiðir skipulagsgjald sem er 0,3% af væntanlegu brunabótamati
Bókið skoðun hjá sérfræðingum um eignina:
Jason Kristinn Ólafsson, sími 775 1515 / jason@betristofan.is
Dagrún Davíðsdóttir, sími 866 1763 / dagrun@betristofan.is
Guðbjörg Guðmundsdóttir sími 899 5533 / gudbjorg@betristofan.is
Íbúð 504 er rúmgóð 3ja herbergja íbúð á 5. hæð í 8. hæða húsi, með öllum þægindum sem hægt er að hugsa sér. Samtals 109 fermetrar. Svalir til suðurs (7,2 fm) og með frábæru útsýni til norðurs (4,3 fm) og skiptist íbúðin í 2 svefnherbergi, stofu, eldhús, baðherbergi og sér þvottahús. Gólfhiti er í íbúðinni. Val stendur tim boða um innréttingar. Sérgeymsla fylgir að stærðinni 12,8 fm. Stæði merkt B55 fylgir íbúðinni.
Heimasíða
Húsið er klætt með mismunandi litaðri álklæðningu ásamt Bambus sem gefur því lifandi yfirbragð og þarfnast lítils viðhalds.
Miðlæg staðsetning tryggir gott aðgengi að helstu umferðaræðum sem sparar tíma og peninga.
Örstutt í helstu stofnbrautir eins og Sæbraut, Kringlumýrabraut og Miklubraut.
Kaupandi greiðir skipulagsgjald sem er 0,3% af væntanlegu brunabótamati
Bókið skoðun hjá sérfræðingum um eignina:
Jason Kristinn Ólafsson, sími 775 1515 / jason@betristofan.is
Dagrún Davíðsdóttir, sími 866 1763 / dagrun@betristofan.is
Guðbjörg Guðmundsdóttir sími 899 5533 / gudbjorg@betristofan.is
Gjöld sem kaupandi þarf að standa straum af ef að kaupum verður:
1. Stimpilgjald af fasteignamati fasteignar er 0.8%, en 0,4% fyrir fyrstu kaup og 1,6% fyrir lögaðila.
2. Þinglýsingargjald: kaupsamningi, skuldabréfi, veðleyfi, afsali o.s.frv. er kr. 3.800 af hverju skjali.
3. Lántökukostnaður samkvæmt verðskrá viðkomandi lánastofnunar.
4. Umsýslugjald til fasteignasölu skv. gjaldskrá.
Skoðunarskylda kaupanda:
Í lögum um fasteignakaup nr. 40/2002 er kveðið á um ríka skoðunarskyldu kaupenda á fasteignum. Betri Stofan fasteignasala bendir væntanlegum kaupendum á að kynna sér vel ástand fasteigna við skoðun og fyrir tilboðsgerð og ef þurfa þykir að leita til sérfræðinga um nánari ástandsskoðun.