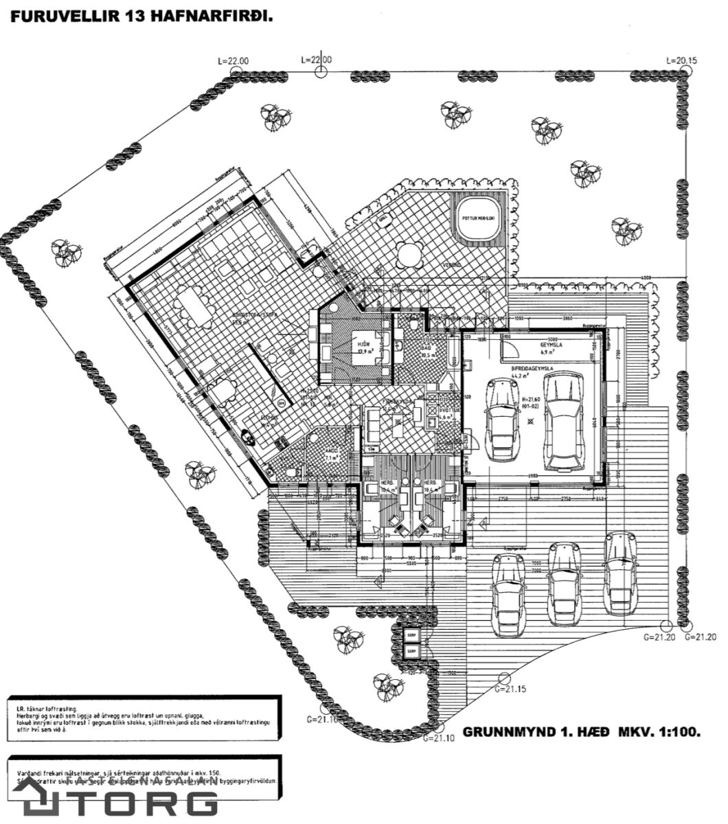
Furuvellir, 221 Hafnarfjörður