Löggiltir fasteignasalar innan Félags fasteignasala:
Ástþór Reynir Guðmundsson
Vigdís R. S. Helgadóttir
Guðbjörg Helga Jóhannesdóttir
Gylfi Jens Gylfason
Sigrún Matthea Sigvaldadóttir
Sveinn Gíslason
Páll Guðmundsson
Þórarinn Arnar Sævarsson
Berglind Hólm Birgisdóttir
Þorsteinn Gíslason
Guðrún Lilja Tryggvadóttir
Brynjar Ingólfsson
Guðný Þorsteinsdóttir
Bjarni Blöndal
Þorsteinn Ólafs
Þórdís Björk Davíðsdóttir
Jóhann Kristinn Jóhannesson
Bjarný Björg Arnórsdóttir
Salvör Þóra Davíðsdóttir
Magga Sigríður Gísladóttir
Upplýsingar
Verðsaga
Byggt 2019
84 m²
3 herb.
1 baðherb.
2 svefnh.
Sérinngangur
Opið hús: 26. febrúar 2026
kl. 17:00
til 17:30
Opið hús: Sjónarvegur 5, 210 Garðabær, Íbúð merkt: 01 01 01. Eignin verður sýnd fimmtudaginn 26. febrúar 2026 milli kl. 17:00 og kl. 17:30.
Lýsing
Magnús Már Lúðvíksson og RE/MAX fasteignasala kynna: Fallega 3 herbergja 84,0 fm íbúð á jarðhæð með sérinngangi og sérafnotareit í fallegu fjölbýlishúsi að Sjónarvegi 5 í Urriðaholti í Garðabæ.
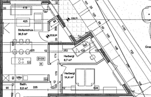
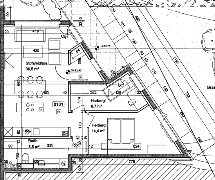
Eignin skiptist í: Anddyri, eldhús, stofu / borðstofu, hjónaherbergi, herbergi, baðherbergi, þvottahús, geymslu merkt 01-10.
Bókið skoðun hjá: Magga í síma 699-2010 eða maggi@remax.is
Lýsing eignar:
Anddyri: Parket á gólfi, fataskápur.
Eldhús: Parket á gólfi, steinn á borði, gott skápa- og borðpláss, innfelld uppþvottavél, ofn í vinnuhæð, eyja með spanhelluborði og fallegum gufugleypi.
Stofa: Parket á gólfi, opin og björt, opin við stofu.
Hjónaherbergi: 14,4 fm. Parket á gólfi, fataskápur útgengt út á sérafnotareit.
Herbergi: 8,7 fm. Parket á gólfi.
Baðherbergi: Flísar á gólfi og veggjum að hluta, innrétting undir og við handlaug ásamt speglaskáp, sturta með hertu glerskilrúmi, upphengt salerni og handklæðaofn, stæði fyrir þvottavé og þurrkara.
Geymsla: Í sameign á jarðhæð. 2,5 fm.
Hjóla- og vagnageymsla: Sameiginleg í sameign.
Um er að ræða staðsteypt 14 íbúða fjölbýli á 4 hæðum með aðalinngangi á 2 hæð Húsin eru í Urriðaholti í Garðabæ, einstakt og nýstárlegt hverfi. Umkringt óspilltri náttúru, sérlega vel staðsett innan höfuðborgarsvæðisins. Í jaðri við helstu útivistarsvæði höfuðborgarsvæðisins, ósnortin náttúra, stutt á golfvöllinn.
Frekari upplýsingar veitir: Magnús Már Lúðvíksson löggiltur fasteignasali í síma 699-2010 eða maggi@remax.is
Eignin skiptist í: Anddyri, eldhús, stofu / borðstofu, hjónaherbergi, herbergi, baðherbergi, þvottahús, geymslu merkt 01-10.
Bókið skoðun hjá: Magga í síma 699-2010 eða maggi@remax.is
Lýsing eignar:
Anddyri: Parket á gólfi, fataskápur.
Eldhús: Parket á gólfi, steinn á borði, gott skápa- og borðpláss, innfelld uppþvottavél, ofn í vinnuhæð, eyja með spanhelluborði og fallegum gufugleypi.
Stofa: Parket á gólfi, opin og björt, opin við stofu.
Hjónaherbergi: 14,4 fm. Parket á gólfi, fataskápur útgengt út á sérafnotareit.
Herbergi: 8,7 fm. Parket á gólfi.
Baðherbergi: Flísar á gólfi og veggjum að hluta, innrétting undir og við handlaug ásamt speglaskáp, sturta með hertu glerskilrúmi, upphengt salerni og handklæðaofn, stæði fyrir þvottavé og þurrkara.
Geymsla: Í sameign á jarðhæð. 2,5 fm.
Hjóla- og vagnageymsla: Sameiginleg í sameign.
Um er að ræða staðsteypt 14 íbúða fjölbýli á 4 hæðum með aðalinngangi á 2 hæð Húsin eru í Urriðaholti í Garðabæ, einstakt og nýstárlegt hverfi. Umkringt óspilltri náttúru, sérlega vel staðsett innan höfuðborgarsvæðisins. Í jaðri við helstu útivistarsvæði höfuðborgarsvæðisins, ósnortin náttúra, stutt á golfvöllinn.
Frekari upplýsingar veitir: Magnús Már Lúðvíksson löggiltur fasteignasali í síma 699-2010 eða maggi@remax.is
Ár
Fasteignamat
Kaupverð
Stærð
Fermetraverð
28. okt. 2024
66.100.000 kr.
69.000.000 kr.
10101 m²
6.831 kr.
29. nóv. 2019
17.900.000 kr.
42.900.000 kr.
84 m²
510.714 kr.
Byggt á upplýsingum úr Þjóðskrá Íslands frá 2006-2026