Löggiltir fasteignasalar innan Félags fasteignasala:
Freyja Sigurðardóttir
Ágústa Hauksdóttir
Andrea Guðrún Gunnlaugsdóttir
Glódís Helgadóttir
Hlynur Halldórsson
Valgerður Ása Gissurardóttir
Vista
svg

7

svg

7  Skoðendur

svg

Skráð  24. feb. 2026

fjölbýlishús

Apalskarð 2 íb. 406

221 Hafnarfjörður

94.900.000 kr.

765.323 þ.kr./m2
Fasteignanúmer

F2533875

Fasteignamat

86.700.000 kr.

Brunabótamat

83.440.000 kr.

Áhvílandi

0 kr.

Arion banki – Reikna lán
Upplýsingar
svg
Byggt 2024
svg
124 m²
svg
4 herb.
svg
3 svefnh.
svg
Bílastæði
svg
Lyfta
Opið hús: 24. febrúar 2026 kl. 17:00 til 17:30

Verið velkomin - Opið hús í Apalskarði 2, 4, 6 og 8, þriðjudaginn 24. febrúar 2026 á milli kl. 17:00-17:30. Sölumenn verða á staðnum í sýngaríbúð í Apalskarði 4, Einar s. 888-7979 og Glódís s. 659-0510.

Lýsing

BÓKIÐ SKOÐUN - SÝNUM SAMDÆGURS - Einar s 888-7979, Hlynur s. 698-2603, Glódís s. 659-0510, Helgi s. 893-2233

Hraunhamar fasteignasala kynnir: Apalskarð 2, glæsilegar nýjar 3ja-4ra herbergja íbúðir í góðu lyftufjölbýli vel staðsett í göngufjarlægð frá leik- og grunnskóla í Skarðshlíðarhverfinu í Hafnarfirði. 
Íbúðirnar skilast allar fullbúnar án gólfefna en votrými verða flísalögð. Öllum íbúðunum fylgir stæði í lokaðri bílageymslu.


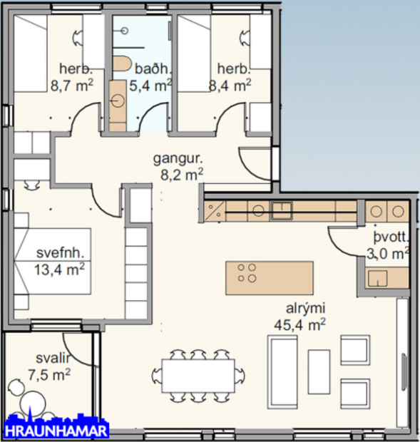
Íbúð 406 er skráð 124 fm með geymslu, fjögurra herbergja með svölum.

ÍBÚÐIN ER LAUS STRAX.

Nánari lýsing skv. teikningu:
Forstofa.

Eldhús með smekklegri innréttingu og vönduðum eldunartækjum.
Inn af eldhúsi er þvottahús.
Björt stofa og borðstofa, þaðan er útgengt á svalir.
Hjónaherbergi með fataskápum.
Tvö svefnherbergi með fataskáp.
Flísalagt baðherbergi með innréttingu, upphengdu salerni, ,,walk in" sturtu. Gluggi.
Rúmgóð 11,6 fm sérgeymsla í sameign. 
Bílastæði í bílageymslu. 

Þetta er falleg og vel skipulögð íbúð með vönduðum innréttingum frá Parka og eldunartækjum frá Electrolux.
Húsið er einstaklega vel staðsett í Skarðshlíðarhverfinu þar sem stutt er í skóla og leikskóla. 


Heimasíða verkefnisins, smelltu hér.

Kaupendur greiða skipulagsgjald sem er 0,3% af brunabótamati þegar það verður lagt á.

Bókið skoðun hjá sölumönnum Hraunhamars: 
​​​​​Einar Örn Ágústsson, löggiltur fasteignasali, s. 888-7979, einar@hraunhamar.is
Glódís Helgadóttir, löggiltur fasteignasali s. 659-0510, glodis@hraunhamar.is
Hlynur Halldórsson, löggiltur fasteignasali, s. 698-2603, hlynur@hraunhamar.is
Helgi Jón Harðarson, sölust. s. 893-2233, helgi@hraunhamar.is


Gjöld sem kaupandi þarf að standa straum af vegna kaupanna:
1.    Stimpilgjald af kaupsamningi, fyrstu kaup (0,4%), almenn kaup (0,8%), lögaðilar (1,6%) af heildarfasteignamati.
2.    Þinglýsingargjald af kaupsamningi, veðskuldabréfi, mögulegu veðleyfi o.fl. – kr. 3.800 kr. af hverju skjali.
3.    Lántökugjald lánastofnunar er skv. verðskrá viðkomandi lánastofnunar.
4.    Umsýslugjald til fasteignasölu skv. þjónustusamningi

Hraunhamar er elsta fasteignasala Hafnarfjarðar, stofnuð 1983 
Hraunhamar, í farabroddi í 40 ár ! – Hraunhamar.is 
Smelltu hér til að fá frítt söluverðmat.

img
Glódís Helgadóttir
Lögg.fasteignasali innan félags fasteignasala
Hraunhamar fasteignasala
Bæjarhraun 10, 220 Hafnarfjörður
Hraunhamar fasteignasala

Hraunhamar fasteignasala

Bæjarhraun 10, 220 Hafnarfjörður
img

Glódís Helgadóttir

Bæjarhraun 10, 220 Hafnarfjörður
Hraunhamar fasteignasala

Hraunhamar fasteignasala

Bæjarhraun 10, 220 Hafnarfjörður

Glódís Helgadóttir

Bæjarhraun 10, 220 Hafnarfjörður