Löggiltir fasteignasalar innan Félags fasteignasala:
Óskar Rúnar Harðarson
Jason Guðmundsson
Þröstur Þórhallsson
Ólafur Finnbogason
Kjartan Ísak Guðmundsson
Gústaf Adolf Björnsson
Viðar Böðvarsson
Rakel Viðarsdóttir
Ragnheiður Pétursdóttir
Böðvar Þ. Eggertsson
Vista
fjölbýlishús

Hringhamar 37 (503)

221 Hafnarfjörður

79.900.000 kr.

833.160 þ.kr./m2
Fasteignanúmer

F2528639

Fasteignamat

76.000.000 kr.

Brunabótamat

60.320.000 kr.

Áhvílandi

0 kr.

Arion banki – Reikna lán
Upplýsingar
svg
Byggt 2023
svg
95,9 m²
svg
3 herb.
svg
1 baðherb.
svg
2 svefnh.
svg
Sameiginl. inngangur
svg
Hjólastólaaðgengi
svg
Bílastæði
svg
Lyfta

Lýsing

Miklaborg kynnir. Hringhamar 35 H-fj, íbúð 503 á efstu hæð í nýbyggingu, með útsýni í lyftuhúsi. Eigninni fylgir stæði í bílakjallara. Þekktir verktakar Dverghamrar. Íbúðin er 3ja herbergja glæsileg, með vönduðum tækjum AEG og innréttingum frá ARENS. Íbúðin afhendist án gólfefna, en votrými eru flísalög. Myndavéladyrasími í íbúðum. Góð staðsetning innan hverfi, skólar í göngufæri. Afhending við kaupsamning.


***BÓKAÐU SKOÐUN, VIÐ SÝNUM SAMDÆGURS***

Allar nánari upplýsingar veitir Svan Gunnar Guðlaugsson llöggiltur fasteignasali í síma 697 9300 eða svan@miklaborg.is



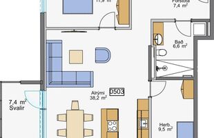
Íbúð 503- 95,9 fm þriggja herbergja íbúð á fimmtu hæð með sérmerktu stæði í bílakjallara.


Húsið: Hringhamar 35 H-fj, er nýbygging, lyftuhús, með útsýni úr flestum íbúðunum. Húsið glæsilegt fimm hæða fjölbýlishús með fjölbreyttu úrvali íbúða á góðum stað í hinu nýja Hamrahverfi í Hafnarfirði. Stutt er í skóla, leikskóla og alla helstu þjónustu. Greið samgönguleið er til og frá svæðinu um nýja Ásvallabraut.

Eigninni fylgir stæði í bílakjallara. Þekktir verktakar Dverghamrar.

Nánari lýsing eignar

Forstofa með fataskáp. Eldhús með eyju, innréttað með fallegri innréttingu frá Ormsson Arens með millibrúnum viðarlit og ljósum efriskápum í kremuðum lit. Vönduð tækin í eldhúsi eru frá AEG. Eldhús og stofa í opnu rými með útgengi út á svalir í suðvestur. Baðherbergi með flísum á gólfi og veggjum að hluta. Þvottaaðstaða er innan íbúðar á baðherbergi. Svefnherbergin eru tvö eru bæði rúmgóð og með fataskáp. Eigninni fylgir 9,6 fm geymsla í kjallara.


Kaupendur greiða skipulagsgjald 0,3% af væntanlegu brunabótarmati.


Nánari upplýsingar má finna á HEIMASÍÐU verkefnisins.


Dverghamrar ehf hafa yfir 30 ára reynslu á byggingarmarkaði. Byggingastjórar fyrirtækisins starfa eftir vottuðu gæðastjórnunarkerfi þar sem lögð er rík áhersla á fagleg vinnubrögð. Framkvæmdar eru reglulegar úttektir á verkþáttum framkvæmdarinnar þar sem tryggt er að unnið sé í samræmi við verklýsingar og að skilað sé traustri og góðri vöru á réttum tíma.


Nánari upplýsingar veita

Svan Gunnar Guðlaugsson llöggiltur fasteignasali í síma 697 9300 eða svan@miklaborg.is

Stefán Jóhann Stefánsson aðst.m. fasteignasala sími 659-2634 eða stefan@miklaborg.is

Kjartan Ísak Guðmundsson löggiltur fasteignasali, í síma 663-4392 eða kjartan@miklaborg.is

Ingimundur Ingimundarsson löggiltur fasteignasali, í síma 867-4540 eða ingimundur@miklaborg.is



Miklaborg fasteignasala

Miklaborg fasteignasala

Lágmúli 4, 108 Reykjavík
Miklaborg fasteignasala

Miklaborg fasteignasala

Lágmúli 4, 108 Reykjavík