Upplýsingar
Verðsaga
Byggt 2016
75,4 m²
2 herb.
1 baðherb.
2 svefnh.
Sameiginl. inngangur
Bílastæði
Lyfta
Lýsing
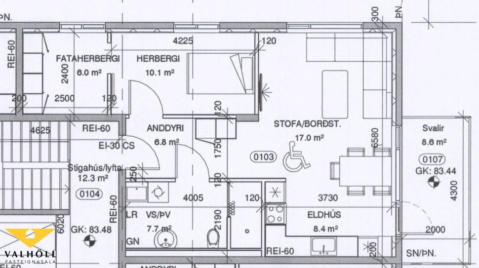
NÝTT Í SÖLU! Valhöll fasteignasala og Heiðar Friðjónsson lögg. fast. s. 693-3356, heidar@valholl.is, kynna til sölu Úlfarsárdal í Reykjavík, við Friggjarbrunn 18, íbúð 0103 sem er 75,4 fm 2ja til 3ja herb. endaíbúð í lyftuhúsi með stæði í opinni bílageymslu.
Nánari lýsing:
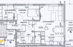
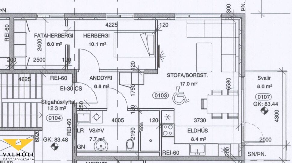
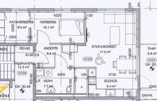
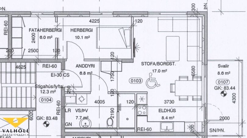
Komið er inn í parketlagt hol með skáp. Baðherbergið er flísalagt bæði hluti af veggjum og gólf. Innrétting er fyrir þvottarvél og þurrkara. Svefnherbergið er ágætt með skáp og inn af því er herbergi með rennihurð og góðum glugga, skáp og harðparketi á gólfi. Nýtist vel fyrir unga barn eða sem skrifstofa. Eldhús er með fallegri viðar innréttingu og innbyggðri uppþvottarvél. Útgengi er út á austur svalir úr eldhúsi. Stofan er rúmgóð og björt með harðparketi á gólfi.
Í kjallara er sérgeymsla á geymslugangi, rúmgóð hjóla og vagnageymsla og sér stæði í opinni bílageymslu, þar sem búið er að leggja fyrir hleðslustöð.
Þessi íbúð er sérútbúin fyrir fólk í hjólastól, þ.e, er með lyftu, og stærri hurð á baðherbergi sem opnast út.
Um er ræða rúmgóða íbúð með tveimur svefnherbergjum og stæði í bílageymslu á góðum stað í Úlfarsárdal, stutt í skóla, leiksskóla, bókasafn, sundlaug og íþróttasvæði Fram, sem er neðst í dalnum.
Ath. íbúðin er laus við kaupsamning og hentar frábærlega fyrir ungt fólk.
Allar frekari uppl. um eignina veitir Heiðar Friðjónsson lögg. fasteignasali í s. 693-3356 og heidar@valholl.is Pantið skoðun hjá Heiðari.
Um skoðunar- og aðgæsluskyldu:
Í lögum um fasteignakaup nr. 40/2002 er kveðið á um ríka skoðunarskyldu kaupenda á fasteignum. Valhöll fasteignasala bendir væntanlegum kaupendum á að kynna sér vel ástand fasteigna við skoðun og fyrir tilboðsgerð og ef þurfa þykir að leita til sérfræðinga um nánari ástandsskoðun.
Forsendur söluyfirlits:
Söluyfirlit er samið af fasteignasala í samræmi við ákvæði laga nr. 70/2015. Þær upplýsingar sem fram koma í söluyfirliti þessu eru sóttar í opinberar skrár, til seljanda sjálfs og eftir atvikum til húsfélags. Seljandi veitir upplýsingar um eign í samræmi við upplýsingaskyldu laga um fasteignakaup nr. 40/2002. Fasteignasali sannreynir að þær upplýsingar séu réttar með sjónskoðun á eigninni. Fasteignasali getur ekki fullyrt um ástand og eiginleika þeirra hluta fasteigna sem ekki eru aðgengilegir og sjást ekki berum augum, t.d. lagnir, dren, skólp og þak.
Gjöld sem kaupandi þarf að standa straum af vegna kaupanna:
Stimpilgjald af kaupsamningi sem er hlutfall af fasteignamati. Stimpilgjald er 0,8% fyrir einstaklinga og 1,6% fyrir lögaðila.
Þinglýsingargjald af kaupsamningi, veðskuldabréfum, veðleyfum o.fl. Þinglýsingargjald er kr. 2.700,- fyrir hvert skjal.
Lántökugjald lánastofnunar. Um lántökugjald vísast í gjaldskrá viðkomandi lánveitanda.
Umsýsluþóknun fasteignasölu skv. gjaldskrá.
Ef um nýbyggingu er að ræða greiðir kaupandi skipulagsgjald, 0,3% af brunabótamáti, þegar það er lagt á.
Nánari lýsing:
Komið er inn í parketlagt hol með skáp. Baðherbergið er flísalagt bæði hluti af veggjum og gólf. Innrétting er fyrir þvottarvél og þurrkara. Svefnherbergið er ágætt með skáp og inn af því er herbergi með rennihurð og góðum glugga, skáp og harðparketi á gólfi. Nýtist vel fyrir unga barn eða sem skrifstofa. Eldhús er með fallegri viðar innréttingu og innbyggðri uppþvottarvél. Útgengi er út á austur svalir úr eldhúsi. Stofan er rúmgóð og björt með harðparketi á gólfi.
Í kjallara er sérgeymsla á geymslugangi, rúmgóð hjóla og vagnageymsla og sér stæði í opinni bílageymslu, þar sem búið er að leggja fyrir hleðslustöð.
Þessi íbúð er sérútbúin fyrir fólk í hjólastól, þ.e, er með lyftu, og stærri hurð á baðherbergi sem opnast út.
Um er ræða rúmgóða íbúð með tveimur svefnherbergjum og stæði í bílageymslu á góðum stað í Úlfarsárdal, stutt í skóla, leiksskóla, bókasafn, sundlaug og íþróttasvæði Fram, sem er neðst í dalnum.
Ath. íbúðin er laus við kaupsamning og hentar frábærlega fyrir ungt fólk.
Allar frekari uppl. um eignina veitir Heiðar Friðjónsson lögg. fasteignasali í s. 693-3356 og heidar@valholl.is Pantið skoðun hjá Heiðari.
Um skoðunar- og aðgæsluskyldu:
Í lögum um fasteignakaup nr. 40/2002 er kveðið á um ríka skoðunarskyldu kaupenda á fasteignum. Valhöll fasteignasala bendir væntanlegum kaupendum á að kynna sér vel ástand fasteigna við skoðun og fyrir tilboðsgerð og ef þurfa þykir að leita til sérfræðinga um nánari ástandsskoðun.
Forsendur söluyfirlits:
Söluyfirlit er samið af fasteignasala í samræmi við ákvæði laga nr. 70/2015. Þær upplýsingar sem fram koma í söluyfirliti þessu eru sóttar í opinberar skrár, til seljanda sjálfs og eftir atvikum til húsfélags. Seljandi veitir upplýsingar um eign í samræmi við upplýsingaskyldu laga um fasteignakaup nr. 40/2002. Fasteignasali sannreynir að þær upplýsingar séu réttar með sjónskoðun á eigninni. Fasteignasali getur ekki fullyrt um ástand og eiginleika þeirra hluta fasteigna sem ekki eru aðgengilegir og sjást ekki berum augum, t.d. lagnir, dren, skólp og þak.
Gjöld sem kaupandi þarf að standa straum af vegna kaupanna:
Stimpilgjald af kaupsamningi sem er hlutfall af fasteignamati. Stimpilgjald er 0,8% fyrir einstaklinga og 1,6% fyrir lögaðila.
Þinglýsingargjald af kaupsamningi, veðskuldabréfum, veðleyfum o.fl. Þinglýsingargjald er kr. 2.700,- fyrir hvert skjal.
Lántökugjald lánastofnunar. Um lántökugjald vísast í gjaldskrá viðkomandi lánveitanda.
Umsýsluþóknun fasteignasölu skv. gjaldskrá.
Ef um nýbyggingu er að ræða greiðir kaupandi skipulagsgjald, 0,3% af brunabótamáti, þegar það er lagt á.
Ár
Fasteignamat
Kaupverð
Stærð
Fermetraverð
21. nóv. 2016
12.000.000 kr.
31.500.000 kr.
75.4 m²
417.772 kr.
Byggt á upplýsingum úr Þjóðskrá Íslands frá 2006-2026