Upplýsingar
Byggt 2025
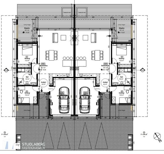
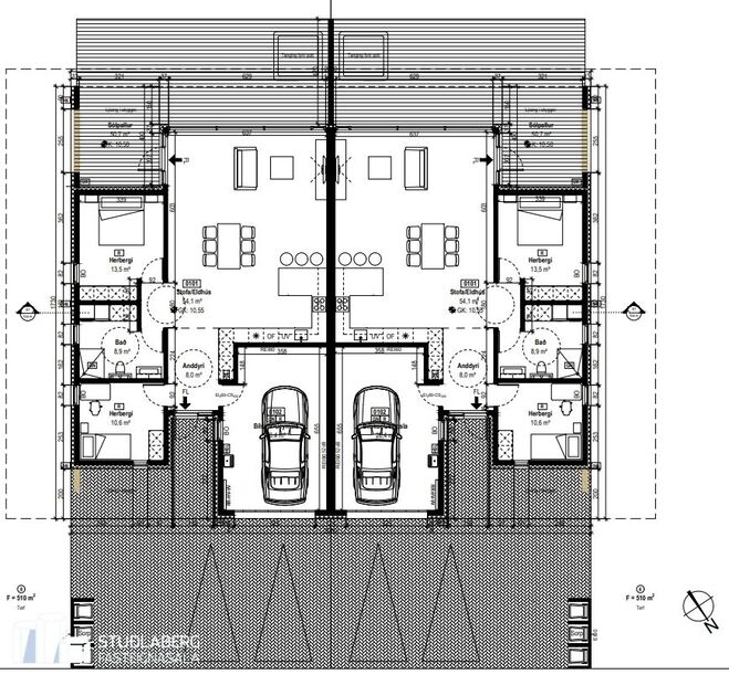
140,6 m²
3 herb.
1 baðherb.
2 svefnh.
Bílskúr
Sérinngangur
Lýsing
Stuðlaberg Fasteignasala kynnir í einkasölu mjög vönduð 3ja herbergja 140,6fm steypt parhús með innbyggðum bílskúr við Báruklöpp nr. 6 - 12 í Garði, Suðurnesjabæ.
------ Eignin er seld með fyrirvara ------
Eignirnar skilast fullbúnar jafnt að innan sem utan og eru tilbúnar til afhendingar í maí 2025.
Nýtt og glæsilegt hverfi - sami byggingaraðili hefur byggt alla götuna á snyrtilegan hátt.
*Um er að ræða vel skipulögð og mjög vönduð parhús sem skiptast í forstofu, hol, stofu, eldhús, baðherbergi og tvö svefnherbergi ásamt bílskúr.
*Eignirnar skilast fullfrágengnar að innan sem utan samkvæmt skilalýsingu seljanda.
*Húsin eru staðsteypt og gluggar og útidyrahurðir eru úr timbri/áli.
*Eignirnar eru klæddar að utan með tveggja millimetra þykkri standandi álklæðningu.
*Lóð er fullfrágengin með torfi, steypt plan og stéttar með snjóbræðslulögn, sorptunnuskýli og sólpallar með heitum potti á lóð.
*Að innan eru íbúðirnar fullfrágengnar með sérsmíðuðum innréttingum og hurðum frá Grindinni ehf. ásamt vönduðum tækjum í eldhúsi, fullmálaðar og með gæða gólfefnum.
*Gólfhiti er í öllum öllum gólfum.
*Hljóðvistardúkur er í loftum.
*Stutt er í skóla og leikskóla. Falleg náttúra er allt um kring og stutt er í ýmiss konar útivistarmöguleika.
*Kaupendur greiða skipulagsgjald þegar það verður lagt á sem er 0,3% af endanlegu brunabótamati eignanna.
Byggingaraðili:
Bragi Guðmundsson ehf. - er húsbyggjandi og ábyrgðaraðili verksins. Framúrskarandi og traustur verktaki með áratuga reynslu.
Nánari upplýsingar veitir Halldór Magnússon lfs.
S: 420-4000 /863-4495 - dori@studlaberg.is
------ Eignin er seld með fyrirvara ------
Eignirnar skilast fullbúnar jafnt að innan sem utan og eru tilbúnar til afhendingar í maí 2025.
Nýtt og glæsilegt hverfi - sami byggingaraðili hefur byggt alla götuna á snyrtilegan hátt.
*Um er að ræða vel skipulögð og mjög vönduð parhús sem skiptast í forstofu, hol, stofu, eldhús, baðherbergi og tvö svefnherbergi ásamt bílskúr.
*Eignirnar skilast fullfrágengnar að innan sem utan samkvæmt skilalýsingu seljanda.
*Húsin eru staðsteypt og gluggar og útidyrahurðir eru úr timbri/áli.
*Eignirnar eru klæddar að utan með tveggja millimetra þykkri standandi álklæðningu.
*Lóð er fullfrágengin með torfi, steypt plan og stéttar með snjóbræðslulögn, sorptunnuskýli og sólpallar með heitum potti á lóð.
*Að innan eru íbúðirnar fullfrágengnar með sérsmíðuðum innréttingum og hurðum frá Grindinni ehf. ásamt vönduðum tækjum í eldhúsi, fullmálaðar og með gæða gólfefnum.
*Gólfhiti er í öllum öllum gólfum.
*Hljóðvistardúkur er í loftum.
*Stutt er í skóla og leikskóla. Falleg náttúra er allt um kring og stutt er í ýmiss konar útivistarmöguleika.
*Kaupendur greiða skipulagsgjald þegar það verður lagt á sem er 0,3% af endanlegu brunabótamati eignanna.
Byggingaraðili:
Bragi Guðmundsson ehf. - er húsbyggjandi og ábyrgðaraðili verksins. Framúrskarandi og traustur verktaki með áratuga reynslu.
Nánari upplýsingar veitir Halldór Magnússon lfs.
S: 420-4000 /863-4495 - dori@studlaberg.is