Löggiltir fasteignasalar innan Félags fasteignasala:
Sverrir Kristinsson
Kjartan Hallgeirsson
Guðlaugur Ingi Guðlaugsson
Daði Hafþórsson
Gunnar Helgi Einarsson
Gunnar Bergmann Jónsson
Jenný Sandra Gunnarsdóttir
Upplýsingar
Verðsaga
svg
Byggt 1993
svg
150,6 m²
svg
6 herb.
svg
2 baðherb.
svg
5 svefnh.
svg
Sérinngangur

Lýsing

Eignamiðlun kynnir:

Draumahæð 8,210 Garðabær. Vandaðsmekklega innréttað og mikið endurnýjað 6 herbergja, 150,6 endaraðhús, þar af 23,4 fm bílskúr á vinsælum stað í Garðabæ.  5 svefnherbergi - Mikið endurnýjuð eign - Baðherbergi á báðum hæðum.  Frábær staðsetning þar sem stutt er í leiksvæði fyrir krakkana, leikskóla, aðra skóla og matvöruverslun.  Skemmtilegar gönguleiðir í hverfinu.  Efri hæð að nokkru leyti undir súð og því fleiri nýtanlegir fermetrar en birt stærð segir til um.
Húsið var mikið endurnýjað að innan 2022 og 2023:  Harðparket og gólfflísar frá Birgisson.  Innihurðar úr gegnheilli eik, lakkaðar svartar með svörtum handföngum úr Birgisson.  Bæði baðherbergin endurnýjuð með efnisvali frá  Ísleifi Jónssyni, Tengi, Steinprýði, Íspan, Byko, Voke III, Gólfefnabúðinni og Dekkor.  Gólf á neðri hæð flotað með hitalögnum. Tenglar og rofar endurnýjaðir.  Loft heilsparslað, var hraunað.  Teppi sett á stigann og sérsmíðað járnhandrið frá JSÓ.  Húsið málað að innan með málningu frá Sérefni. 2024 var þakið háþrýstiþvegið og málað að utan og að auki settir upp skápar í anddyri og herbergi efri hæðar. 2025 var bakgarður endurbyggður að fullu og smíðuð timburverönd og geymsluskúr settur upp. 
Eignin er skráð sem hér segir hjá Þjóðskrá: Fastanr. 206-9827, nánar tiltekið eign merkt 01-01.   birt heildarstærð 150.6 fm en til viðbótar má áætla að gólffllötur efri hæðar sé um 13-15 fm stærri en uppgefið er. Svalir eru til suðvesturs út frá efri hæð og eru skráðar fm. 
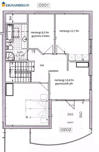
NEÐRI HÆÐ: Forstofa, innangengt í bílskúr, herbergi, hol, alrými sem er stofa, borðstofa og eldhús og baðherbergi með tengi fyrir þvottavél og þurkara.
EFRI HÆÐIN: 4 svefnherbergi og baðherbergi. Geymsluloft er yfir einu herbergjanna og úr því herbergi er gengið út á góðar svalir. 
Smelltu hér til að sækja söluyfirlit.

Nánari lýsing eignarinnar: NEÐRI HÆÐ:  FORSTOFA: Forstofa er með parketi á gólfi og hengi. HERBERGI I: Svefnherbergi á neðri hæð með harðparketi á gólfi.  
BAÐHERBERGI I: Baðherbergið er endurnýjað með með flísum frá Birgisson, salerni og blöndunartækjum frá Ísleifi Jónssyni, vaski frá Tengi, sturtugleri og spegli frá Íspan, handklæðaofni úr Byko og innréttingu úr Voke III. Tengi fyrir þvottavél og þurrkara á baðherberginu sem er með loftræstingu. STOFA OG BORÐSTOFA: Stofan og borðstofan eru í opnu rými með harðparketi á gólfi og þaðan er útgengt út á verönd með heitum potti.  Gardínur og brautir frá Z-brautum. ELDHÚS: Eldhúsið er endurnýjað með mattri innréttingu frá Voke III, Silistone borðplötu og innbyggðum ísskáp og uppþvottavél.  Tvöfaldur ofn er í innréttingu ( annar er líka örbylgjuofn) og Span helluborð, innfeldur vaskur og gufugleypur frá Rafha. 
BÍLSKÚR: Bílskúrinn er ágætlega rúmgóður með góðri fellihurð, sjálfvirkur opnari. Innangengt í bílskúr úr forstofu.Hleðslustöð fylgir eigninni
STIGI MILLI HÆÐA: Góður steyptur stigi milli hæða með kókosteppi og hljóðvistarplötum á vegg.
EFRI HÆÐ:  Hæðin var mikið tekin í gegn, en öll ljós voru endurnýjuð sem og tenglar og rofar.  Gólfið var allt flotað og lagt með harðparketi frá Birgisson fyrir utan baðherbergið. HERBERGI II: Hjónaherbergi með harðparketi og skápum, kommóður fylgja. HERBERGI III: Með harðparketi og þakglugga VELUX, herbergið er teiknað sem geymsla. HERBERGI IIII: Herbergi með harðparketi og góðum glugga á enda. HERBERGI IV: Rúmgott herbergi með harðparketi og nýlegum skáp. Yfir herberginu er gott geymsluloft. Gengið úr þessu herbergi út á rúmgóðar svalir í suðvestur.
BAÐHERBERGI II: Baðherbergið er endurnýjað, flísalagt með hita í gólfi og upp vegg hjá sturtunni þar sem eru snagar fyrir handklæði að auki góður handklæðaofn. Efnisval frá Ísleifi Jónssyni, Tengi, Íspan, Byko og Voke III eins og á baðherbergi á neðri hæð.  Að auki er baðkar frá Dekkor og flísar einnig að hluta.  Steinborðplata frá Steinprýði.
LÓÐ OG UMHVERFI: Bakgarðurinn var endurbyggður 2025 með stórri timburverönd og er rafmagnspottur á verönd sem fylgir. Meðfram húsi er gróf möl með steinstiklum og nýsmíðuðum geymsluskúr. Bílastæðið er með hitalögnum og pláss fyrir 2 til 3 bíla.  
Upplýsingar og bókun í sýningar annast Hilmar Þór Hafsteinsson lögg fasteignasali og lögg leigumiðlari sími 824-9098 eða hilmar@eignamidlun.is
 

***
Ábyrg þjónusta í áratugi. Eignamiðlun var stofnuð 1957 og er elsta starfandi fasteignasala á Íslandi. Reynsla, heiðarleiki og þekking á fasteignamarkaðnum eru grunnur að farsælum viðskiptum. 

Eignamiðlun Grensásvegi 11, 108 Reykjavík - Opið frá kl. 9-17 mánudaga til fimmtudaga og 9-16 á föstudögum.

Heimasíða Eignamiðlunar

Eignamiðlun á Facebook

Eignamiðlun

Eignamiðlun

Grensásvegi 11, 108 Reykjavík
Ár
Fasteignamat
Kaupverð
Stærð
Fermetraverð
14. maí. 2024
110.800.000 kr.
135.000.000 kr.
10101 m²
13.365 kr.
7. des. 2021
67.350.000 kr.
93.500.000 kr.
150.6 m²
620.850 kr.
18. apr. 2018
51.650.000 kr.
74.050.000 kr.
150.6 m²
491.700 kr.
Byggt á upplýsingum úr Þjóðskrá Íslands frá 2006-2026
Eignamiðlun

Eignamiðlun

Grensásvegi 11, 108 Reykjavík