Upplýsingar
Byggt 2026
215,8 m²
5 herb.
2 baðherb.
3 svefnh.
Þvottahús
Bílskúr
Lýsing
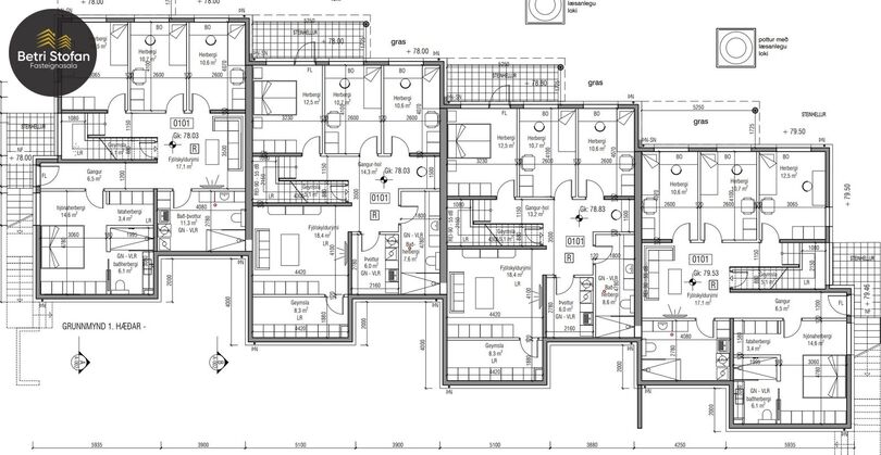
Betri Stofan og Guðbjörg Guðmundsdóttir löggiltur fasteignasali kynna: Einstaklega vel skipulagt raðhús með innbyggðum bílskúr, við Stekkholt 57, í Hnoðraholti, Garðabæ. Eignin er skráð 215,8 fm. og skiptist í þrjú svefnherbergi, sjónvarpshol, 2 baðherbergi, stofu, borðstofu, eldhús, þvottahús, anddyri og bílskúr. Frá stofu er gengið út á góðar suðaustur svalir.
Eignin skilast tilbúin til innréttinga að innan skv. skilalýsingu. Að utan skilast húsin frágengin, einangruð að utan og klædd álklæðningu, Velfac ál/tré gluggar.
Lóð skilast grófjöfnuð samkvæmt skilalýsingu.
Nálgist skilalýsingu og nánari upplýsingar hér:
Guðbjörg Guðmundsdóttir í síma 8995533 gudbjorg@betristofan.is
Nánari lýsing:
Stekkholt 57 er fallegt raðhús í nýrri fjögurra húsa raðhúsalengju sem nú er í byggingu í Hnoðraholti Garðabæ. Frá götu er aðkoma að efri hæð hússins þar er innbyggður bílskúr, stórt anddyri, stofa, eldhús, borðstofa og baðherbergi. Úr stofu er gengið út á góðar svalir til suðausturs.
Á neðri hæð er hjónaherbergi, tvö rúmgóð barnaherbergi, yfir 10 fm., sjónvarpshol, rúmgott baðherbergi, þvottahús og geymsla.
að innan skilast húsið tilbúið til innréttinga, veggir spartslaðir og grunnaðir, vinnurafmagn í herbergjum, gólfhitalagnir tilbúnar fyrir stýrikerfi.
** Viðskiptavinir Betri Stofunnar njóta sérkjara hjá Verslunu Ormsson ehf. við kaup á innréttingum og heimilistækjum vegna Stekkholt 55-61**
Um er ræða glæsileg og vel skipulögð raðhús í nýju og skemmtilegu hverfi í Garðabæ. Hnoðraholt er vel staðsett nýtt hverfi miðsvæðis á höfuðborgarsvæðinu þaðan sem stutt er í alla helstu þjónustu og gott aðgengi er að útivistasvæðum Garðabæjar svo sem Heiðmörk, Vífilstaðavatni og golfvelli GKG.
Eignin skilast tilbúin til innréttinga að innan skv. skilalýsingu. Að utan skilast húsin frágengin, einangruð að utan og klædd álklæðningu, Velfac ál/tré gluggar.
Lóð skilast grófjöfnuð samkvæmt skilalýsingu.
Nálgist skilalýsingu og nánari upplýsingar hér:
Guðbjörg Guðmundsdóttir í síma 8995533 gudbjorg@betristofan.is
Nánari lýsing:
Stekkholt 57 er fallegt raðhús í nýrri fjögurra húsa raðhúsalengju sem nú er í byggingu í Hnoðraholti Garðabæ. Frá götu er aðkoma að efri hæð hússins þar er innbyggður bílskúr, stórt anddyri, stofa, eldhús, borðstofa og baðherbergi. Úr stofu er gengið út á góðar svalir til suðausturs.
Á neðri hæð er hjónaherbergi, tvö rúmgóð barnaherbergi, yfir 10 fm., sjónvarpshol, rúmgott baðherbergi, þvottahús og geymsla.
að innan skilast húsið tilbúið til innréttinga, veggir spartslaðir og grunnaðir, vinnurafmagn í herbergjum, gólfhitalagnir tilbúnar fyrir stýrikerfi.
** Viðskiptavinir Betri Stofunnar njóta sérkjara hjá Verslunu Ormsson ehf. við kaup á innréttingum og heimilistækjum vegna Stekkholt 55-61**
Um er ræða glæsileg og vel skipulögð raðhús í nýju og skemmtilegu hverfi í Garðabæ. Hnoðraholt er vel staðsett nýtt hverfi miðsvæðis á höfuðborgarsvæðinu þaðan sem stutt er í alla helstu þjónustu og gott aðgengi er að útivistasvæðum Garðabæjar svo sem Heiðmörk, Vífilstaðavatni og golfvelli GKG.
Gjöld sem kaupandi þarf að standa straum af ef að kaupum verður:
1. Stimpilgjald af fasteignamati fasteignar er 0.8%, en 0,4% fyrir fyrstu kaup og 1,6% fyrir lögaðila.
2. Þinglýsingargjald: kaupsamningi, skuldabréfi, veðleyfi, afsali o.s.frv. er kr. 3.800 af hverju skjali.
3. Lántökukostnaður samkvæmt verðskrá viðkomandi lánastofnunar.
4. Umsýslugjald til fasteignasölu skv. gjaldskrá.
Skoðunarskylda kaupanda:
Í lögum um fasteignakaup nr. 40/2002 er kveðið á um ríka skoðunarskyldu kaupenda á fasteignum. Betri Stofan fasteignasala bendir væntanlegum kaupendum á að kynna sér vel ástand fasteigna við skoðun og fyrir tilboðsgerð og ef þurfa þykir að leita til sérfræðinga um nánari ástandsskoðun.