Upplýsingar
Verðsaga
Byggt 2018
60,1 m²
2 herb.
1 baðherb.
1 svefnh.
Sameiginl. inngangur
Lyfta
Lýsing
Kasa fasteignir 461-2010.
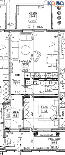
Davíðshagi 4 íbúð 105 - Nýleg, vel skipulögð 2 herbergja íbúð á jarðhæð í fjölbýli í Hagahverfi.
Eignin skiptist í forstofu, stofu og eldhús í sama rými, baðherbergi með þvottaaðstöðu og eitt svefnherbergi ásamt sér geymslu í sameign.
Forstofa/gangur: Þar er vínilparket á gólfum og fataskápur á gangi.
Stofa: Stofa og eldhús eru í opnu rými, þar er vínilparket á gólfum, gengið er út á svalir út frá stofu.
Eldhús: Í opnu rými með stofu, hvít innrétting með innbyggðum ísskáp og uppþvottavél. Flísar eru á milli skápa.
Baðherbergi: Vínilparket á gólfum og hvít innrétting, gert ráð fyrir þvottavél og þurrkara í innréttingu, flísalagt í kringum sturtu. Vegghengt salerni.
Svefnherbergi: Er nokkuð rúmgott með góðum skáp og parketi á gólfum.
Geymsla: Sérgeymsla er í kjallara ásamt sameiginlegri hjólageymslu.
- Hiti í gólfum í íbúðinni.
- Loftskiptikerfi er í íbúðinni.
- Sameiginlegur garður með lokuðu leiksvæði.
Nánari upplýsingar í síma 461-2010 eða kasa@kasafasteignir.is
------------
Skoðunarskylda:
Í lögum um fasteignakaup nr. 40/2002 er kveðið á um ríka skoðunarskyldu kaupenda á fasteignum. Kasa fasteignir benda væntanlegum kaupendum á að kynna sér vel ástand fasteigna fyrir kauptilboðsgerð og leita til þar til bærra sérfræðinga um nánari skoðun ef þurfa þykir.
Forsendur söluyfirlits:
Söluyfirlit er samið af fasteignasala í samræmi við ákvæði laga nr. 70/2015. Þær upplýsingar sem fram koma í söluyfirliti þessu eru sóttar í opinberar skrár, til seljanda sjálfs og eftir atvikum til húsfélags. Seljandi veitir upplýsingar um eign í samræmi við upplýsingaskyldu laga um fasteignakaup nr. 40/2002. Fasteignasali sannreynir að þær upplýsingar séu réttar með sjónskoðun á eigninni. Fasteignasali getur ekki fullyrt um ástand og eiginleika þeirra hluta fasteigna sem ekki eru aðgengilegir og sjást ekki berum augum, t.d. lagnir, dren, skólp og þak.
Gjöld sem kaupandi þarf að standa straum af vegna kaupanna:
1. Stimpilgjald sýslumanns af kaupsamningi, fyrstu kaup (0,4%), almenn kaup (0,8%), lögaðilar (1,6%) af heildarfasteignamati eignar.
2. Þinglýsingargjald af kaupsamningi, veðskuldabréfi, mögulegu veðleyfi o.fl. - kr. 3.800 af hverju skjali.
3. Lántökugjald lánastofnunar er skv. verðskrá viðkomandi lánastofnunar. Nánari upplýsingar á t.d. heimasíðu lánastofnana.
4. Umsýslugjald til fasteignasölu skv. kauptilboði.
Davíðshagi 4 íbúð 105 - Nýleg, vel skipulögð 2 herbergja íbúð á jarðhæð í fjölbýli í Hagahverfi.
Eignin skiptist í forstofu, stofu og eldhús í sama rými, baðherbergi með þvottaaðstöðu og eitt svefnherbergi ásamt sér geymslu í sameign.
Forstofa/gangur: Þar er vínilparket á gólfum og fataskápur á gangi.
Stofa: Stofa og eldhús eru í opnu rými, þar er vínilparket á gólfum, gengið er út á svalir út frá stofu.
Eldhús: Í opnu rými með stofu, hvít innrétting með innbyggðum ísskáp og uppþvottavél. Flísar eru á milli skápa.
Baðherbergi: Vínilparket á gólfum og hvít innrétting, gert ráð fyrir þvottavél og þurrkara í innréttingu, flísalagt í kringum sturtu. Vegghengt salerni.
Svefnherbergi: Er nokkuð rúmgott með góðum skáp og parketi á gólfum.
Geymsla: Sérgeymsla er í kjallara ásamt sameiginlegri hjólageymslu.
- Hiti í gólfum í íbúðinni.
- Loftskiptikerfi er í íbúðinni.
- Sameiginlegur garður með lokuðu leiksvæði.
Nánari upplýsingar í síma 461-2010 eða kasa@kasafasteignir.is
------------
Skoðunarskylda:
Í lögum um fasteignakaup nr. 40/2002 er kveðið á um ríka skoðunarskyldu kaupenda á fasteignum. Kasa fasteignir benda væntanlegum kaupendum á að kynna sér vel ástand fasteigna fyrir kauptilboðsgerð og leita til þar til bærra sérfræðinga um nánari skoðun ef þurfa þykir.
Forsendur söluyfirlits:
Söluyfirlit er samið af fasteignasala í samræmi við ákvæði laga nr. 70/2015. Þær upplýsingar sem fram koma í söluyfirliti þessu eru sóttar í opinberar skrár, til seljanda sjálfs og eftir atvikum til húsfélags. Seljandi veitir upplýsingar um eign í samræmi við upplýsingaskyldu laga um fasteignakaup nr. 40/2002. Fasteignasali sannreynir að þær upplýsingar séu réttar með sjónskoðun á eigninni. Fasteignasali getur ekki fullyrt um ástand og eiginleika þeirra hluta fasteigna sem ekki eru aðgengilegir og sjást ekki berum augum, t.d. lagnir, dren, skólp og þak.
Gjöld sem kaupandi þarf að standa straum af vegna kaupanna:
1. Stimpilgjald sýslumanns af kaupsamningi, fyrstu kaup (0,4%), almenn kaup (0,8%), lögaðilar (1,6%) af heildarfasteignamati eignar.
2. Þinglýsingargjald af kaupsamningi, veðskuldabréfi, mögulegu veðleyfi o.fl. - kr. 3.800 af hverju skjali.
3. Lántökugjald lánastofnunar er skv. verðskrá viðkomandi lánastofnunar. Nánari upplýsingar á t.d. heimasíðu lánastofnana.
4. Umsýslugjald til fasteignasölu skv. kauptilboði.
Ár
Fasteignamat
Kaupverð
Stærð
Fermetraverð
15. júl. 2022
28.150.000 kr.
39.500.000 kr.
60.1 m²
657.238 kr.
Byggt á upplýsingum úr Þjóðskrá Íslands frá 2006-2026