Upplýsingar
Byggt 2024
74,3 m²
2 herb.
1 baðherb.
1 svefnh.
Sérinngangur
Opið hús: 14. mars 2026
kl. 15:15
til 15:45
Opið hús: Skipalón 3, 220 Hafnarfjörður, Íbúð merkt: 01 02 03. Eignin verður sýnd laugardaginn 14. mars 2026 milli kl. 15:15 og kl. 15:45.
Lýsing
Valborg fasteignasala kynnir í einkasölu nýjar, glæsilegar og vel búnar íbúðir í 6 íbúða húsi við Skipalón 3, Hafnarfirði. Allar íbúðirnar eru með vönduðum innréttingum, gólfhita, sérinngangi og svölum eða sérafnotareit. Íbúðirnar eru til afhendingar við kaupsamning.
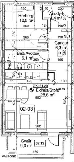
Íbúð 203: Tveggja herbergja björt íbúð 74,3 fermetrar á 2. hæð með glugga á þrjá vegu og aukinni lofthæð. Íbúðin skiptist í stofu, svefnherbergi, baðherbergi/þvottaherbergi, anddyri og 6,8 m² sérgeymslu á sömu hæð í sameign. Vel staðsett eign í Hafnarfirði þar sem stutt er í alla þjónustu og golfklúbbinn Keili.
Vinsamlegast hafið samband og bókið skoðun.
Nánari upplýsingar veitir Aðalsteinn Steinþórsson, viðskiptafræðingur - löggiltur fasteignasali, í síma 896 5865, tölvupóstur alli@valborgfs.is og Þyrí Guðjónsdóttir, viðskiptafræðingur - löggiltur fasteignasali, í síma 891 9867, tölvupóstur thyri@valborgfs.is.
Nánar um íbúðirnar:
Stofa: Bjartar stofur með gluggum í suð-vestur. Svalir út af stofu með íbúðum á 2. hæð en sérafnotareitur með íbúðum á jarðhæð. Parket og gólfhiti.
Eldhús: Opin eldhús með sérsmíðuðum vönduðum innréttingum. Hurðir eru hvítlakkaðar. Borðplötur eru gráar úr steini og litað gler milli efri og neðri skápa. Bakaraofn, vifta og spanhelluborð frá Electrolux eða sambærilegt. Stálvaskur með einu hólfi. Hitastýrð einnar handar blöndunartæki frá Grohe. Parket á gólfi og gólfhiti.
Baðherbergi/þvottaherbergi: Flísalögð í hólf og gólf og með glugga. Vegghengt salerni og göngusturta. Tæki og búnaður frá Grohe. Innrétting með melamín yfirborði (plast). Flísar frá Parka og gólfhiti. Endaíbúðir með glugga.
Svefnherbergi: Fataskápar í svefnherbergjum eru hvítlakkaðir, parket á gólfum og gólfhiti.
Forstofa: Stór fataskápur í forstofum, flísar á gólfum og gólfhiti.
Sér geymslur 6 - 6,8 m² með glugga fylgja öllum íbúðum og eru þær staðsettar innaf sameiginlegum hjóla- og vagnageymslum.
Bílastæði á lóð eru 11 þar af 1 fyrir hreyfihamlaða. Stigapallar, stigi og hellulögð stétt við inngang og að sameiginlegu sorpgerði er með hitalögn. Lagnaleiðir eru til staðar fyrir rafhleðslustöðvar við bílastæði.
Nánar um húsið:
Í húsinu eru 6 íbúðir. Húsið er tveggja hæða steinsteypt fjölbýlishús. Byggt er á einangraða sökkla og gólfplötu sem hvílir á marlapúða einangrað með 100 mm frauðplasti. Allir útveggir eru staðsteyptir og einangraðir að utan með 100 mm steinull. Veggirnir eru klæddir með áli og furu. Milliveggir íbúða eru steinsteyptir og a.m.k. 200 mm þykkir.
Gluggar og hurðir eru úr álklæddum viðarrömmum frá BYKO. Þakplata er steinsteypt og á henni rakaþétt plastlag vandlega frágengið. Þar yfir er einangrunarplast samtals 200 mm þykkt. Heilsoðinn þakdúkur er yfir einangrun og þakköntum. Grasþekja er lögð yfir þakdúkinn.
Innandyra eru steypt loft pússuð, léttir innveggir eru einangraðir með a.m.k. 75 mm steinullareinangrun og klæddir með gipsklæðninu. Vélræn loftræsting er í eldhúsum og baðherbergjum.
Kaupendur greiða skipulagsgjald, 0,3% af brunabótamati, sem verður lagt á þegar brunabótamat liggur fyrir.
Forsendur söluyfirlits:
Söluyfirlit er samið af fasteignasala í samræmi við ákvæði laga nr. 70/2015. Þær upplýsingar sem fram koma í söluyfirliti þessu eru sóttar í opinberar skrár, til seljanda sjálfs og eftir atvikum til húsfélags. Seljandi veitir upplýsingar um eign í samræmi við upplýsingaskyldu laga um fasteignakaup nr. 40/2002. Fasteignasali sannreynir að þær upplýsingar séu réttar með sjónskoðun á eigninni. Fasteignasali getur ekki fullyrt um ástand og eiginleika þeirra hluta fasteigna sem ekki eru aðgengilegir og sjást ekki berum augum, t.d. lagnir, dren, skólp og þak.
Um skoðunar- og aðgæsluskyldu:
Í lögum um fasteignakaup nr. 40/2002 er kveðið á um ríka skoðunarskyldu kaupenda á fasteignum. Valborg ehf. fasteignasala bendir væntanlegum kaupendum á að kynna sér vel ástand fasteigna við skoðun og fyrir tilboðsgerð og ef þurfa þykir að leita til sérfræðinga um nánari ástandsskoðun.
Gjöld sem kaupandi þarf að standa straum af vegna kaupanna:
1. Stimpilgjald af kaupsamningi sem er hlutfall af fasteignamati. Stimpilgjald er 0,8% fyrir einstaklinga (0,4% við fyrstu kaup) og 1,6% fyrir lögaðila.
2. Þinglýsingargjald af kaupsamningi, veðskuldabréfum, veðleyfum o.fl. Þinglýsingargjald er kr. 3.800,- fyrir hvert skjal.
3. Lántökugjald lánastofnunar. Um lántökugjald vísast í gjaldskrá viðkomandi lánveitanda.
4. Umsýsluþóknun fasteignasölu skv. gjaldskrá.
5. Ef um nýbyggingu er að ræða greiðir kaupandi skipulagsgjald, 0,3% af brunabótamati, þegar það er lagt á.
Íbúð 203: Tveggja herbergja björt íbúð 74,3 fermetrar á 2. hæð með glugga á þrjá vegu og aukinni lofthæð. Íbúðin skiptist í stofu, svefnherbergi, baðherbergi/þvottaherbergi, anddyri og 6,8 m² sérgeymslu á sömu hæð í sameign. Vel staðsett eign í Hafnarfirði þar sem stutt er í alla þjónustu og golfklúbbinn Keili.
Vinsamlegast hafið samband og bókið skoðun.
Nánari upplýsingar veitir Aðalsteinn Steinþórsson, viðskiptafræðingur - löggiltur fasteignasali, í síma 896 5865, tölvupóstur alli@valborgfs.is og Þyrí Guðjónsdóttir, viðskiptafræðingur - löggiltur fasteignasali, í síma 891 9867, tölvupóstur thyri@valborgfs.is.
Nánar um íbúðirnar:
Stofa: Bjartar stofur með gluggum í suð-vestur. Svalir út af stofu með íbúðum á 2. hæð en sérafnotareitur með íbúðum á jarðhæð. Parket og gólfhiti.
Eldhús: Opin eldhús með sérsmíðuðum vönduðum innréttingum. Hurðir eru hvítlakkaðar. Borðplötur eru gráar úr steini og litað gler milli efri og neðri skápa. Bakaraofn, vifta og spanhelluborð frá Electrolux eða sambærilegt. Stálvaskur með einu hólfi. Hitastýrð einnar handar blöndunartæki frá Grohe. Parket á gólfi og gólfhiti.
Baðherbergi/þvottaherbergi: Flísalögð í hólf og gólf og með glugga. Vegghengt salerni og göngusturta. Tæki og búnaður frá Grohe. Innrétting með melamín yfirborði (plast). Flísar frá Parka og gólfhiti. Endaíbúðir með glugga.
Svefnherbergi: Fataskápar í svefnherbergjum eru hvítlakkaðir, parket á gólfum og gólfhiti.
Forstofa: Stór fataskápur í forstofum, flísar á gólfum og gólfhiti.
Sér geymslur 6 - 6,8 m² með glugga fylgja öllum íbúðum og eru þær staðsettar innaf sameiginlegum hjóla- og vagnageymslum.
Bílastæði á lóð eru 11 þar af 1 fyrir hreyfihamlaða. Stigapallar, stigi og hellulögð stétt við inngang og að sameiginlegu sorpgerði er með hitalögn. Lagnaleiðir eru til staðar fyrir rafhleðslustöðvar við bílastæði.
Nánar um húsið:
Í húsinu eru 6 íbúðir. Húsið er tveggja hæða steinsteypt fjölbýlishús. Byggt er á einangraða sökkla og gólfplötu sem hvílir á marlapúða einangrað með 100 mm frauðplasti. Allir útveggir eru staðsteyptir og einangraðir að utan með 100 mm steinull. Veggirnir eru klæddir með áli og furu. Milliveggir íbúða eru steinsteyptir og a.m.k. 200 mm þykkir.
Gluggar og hurðir eru úr álklæddum viðarrömmum frá BYKO. Þakplata er steinsteypt og á henni rakaþétt plastlag vandlega frágengið. Þar yfir er einangrunarplast samtals 200 mm þykkt. Heilsoðinn þakdúkur er yfir einangrun og þakköntum. Grasþekja er lögð yfir þakdúkinn.
Innandyra eru steypt loft pússuð, léttir innveggir eru einangraðir með a.m.k. 75 mm steinullareinangrun og klæddir með gipsklæðninu. Vélræn loftræsting er í eldhúsum og baðherbergjum.
Kaupendur greiða skipulagsgjald, 0,3% af brunabótamati, sem verður lagt á þegar brunabótamat liggur fyrir.
Forsendur söluyfirlits:
Söluyfirlit er samið af fasteignasala í samræmi við ákvæði laga nr. 70/2015. Þær upplýsingar sem fram koma í söluyfirliti þessu eru sóttar í opinberar skrár, til seljanda sjálfs og eftir atvikum til húsfélags. Seljandi veitir upplýsingar um eign í samræmi við upplýsingaskyldu laga um fasteignakaup nr. 40/2002. Fasteignasali sannreynir að þær upplýsingar séu réttar með sjónskoðun á eigninni. Fasteignasali getur ekki fullyrt um ástand og eiginleika þeirra hluta fasteigna sem ekki eru aðgengilegir og sjást ekki berum augum, t.d. lagnir, dren, skólp og þak.
Um skoðunar- og aðgæsluskyldu:
Í lögum um fasteignakaup nr. 40/2002 er kveðið á um ríka skoðunarskyldu kaupenda á fasteignum. Valborg ehf. fasteignasala bendir væntanlegum kaupendum á að kynna sér vel ástand fasteigna við skoðun og fyrir tilboðsgerð og ef þurfa þykir að leita til sérfræðinga um nánari ástandsskoðun.
Gjöld sem kaupandi þarf að standa straum af vegna kaupanna:
1. Stimpilgjald af kaupsamningi sem er hlutfall af fasteignamati. Stimpilgjald er 0,8% fyrir einstaklinga (0,4% við fyrstu kaup) og 1,6% fyrir lögaðila.
2. Þinglýsingargjald af kaupsamningi, veðskuldabréfum, veðleyfum o.fl. Þinglýsingargjald er kr. 3.800,- fyrir hvert skjal.
3. Lántökugjald lánastofnunar. Um lántökugjald vísast í gjaldskrá viðkomandi lánveitanda.
4. Umsýsluþóknun fasteignasölu skv. gjaldskrá.
5. Ef um nýbyggingu er að ræða greiðir kaupandi skipulagsgjald, 0,3% af brunabótamati, þegar það er lagt á.