Löggiltir fasteignasalar innan Félags fasteignasala:
Sigurður Maack Gunnarsson
Svanþór Einarsson
Theodór Emil Karlsson
Steingrímur Benediktsson
Vista
sumarhús

Fauskás 9

311 Borgarnes

59.900.000 kr.

667.038 þ.kr./m2
Fasteignanúmer

F2319404

Fasteignamat

45.200.000 kr.

Brunabótamat

54.200.000 kr.

Áhvílandi

0 kr.

Arion banki – Reikna lán
Upplýsingar
svg
Byggt 2009
svg
89,8 m²
svg
4 herb.
svg
1 baðherb.
svg
3 svefnh.
svg
Þvottahús
svg
Sérinngangur

Lýsing

** Hafðu samband og bókaðu tíma fyrir skoðun - Svanþór Einarsson, löggiltur fasteignasali - svanthor@fastmos.is eða 698-8555 - Steingrímur Benediktsson, löggiltur fasteignasali - steingrimur@fastmos.is eða 862-9416 **

Fasteignasala Mosfellsbæjar kynnir: Fallegt heilsárshús/sumarhús á um 5.000 m2 eignarlóð við Fauskás 9 rétt við Blundsvatn í landi Fossatúns í Borgarfirði. Húsið er timburhús á steyptum grunni, klætt með bárujárni og við. Eignin er skráð 89,8 nm2 en þar að auki er geymsla sem ekki er skráð í fermetratölu eignarinnar. Stórar verandir. Glæsilegt og viðsýnt útsýni er frá húsinu yfir sveitina og Blundsvatn. Mikil fjallasýn. Aðeins um 60 mínútna akstur frá höfðuðborgarsvæðinu og það tekur einungis um 15 mínútur að keyra í Borgarnes, þar sem sækja má alla þjónustu sem þörf er á.
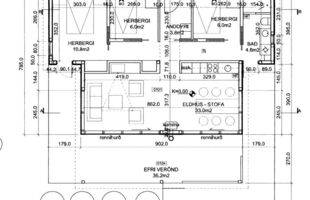
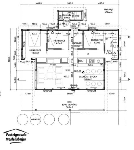
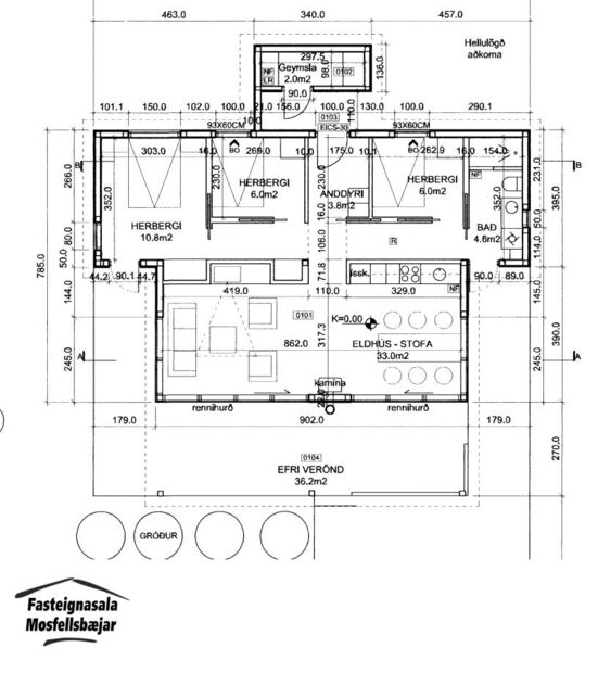
Eignin skiptist í þrjú svefnherbergi, forstofu/geymslu, gang, baðherbergi, stofu og eldhús. Einnig er rúmgóð geymsla með hita og rafmagni sem er ekki í fermetratölu eignarinnar. Gott skipulag. Flísar á gólfum. Gólfhiti er í húsinu. Fjórir útgangar eru úr húsinu út á verandir umhverfis húsið.
Stutt er í Hreppslaug, golfvelli (Borgarnes og Húsafell) og ýmsar þekktar náttúruperlur eins og t.d. Hraunfossa og Húsafell, svo eitthvað er nefnt.

Smelltu hér til að fá söluyfirlit sent


Nánari lýsing:
Forstofa
með flísum á gólfi og fataskáp. Í forstofu eru inntök fyrir vatn og rafmagn, hitakútur og tengi fyrir þvottavél.
Gangur með flísum á gólfi.
Stofa og eldhús mynda rúmgott og bjart alrými með flísum á gólfi. Í eldhúsi er hvít innrétting með bakarofni og helluborði. Ísskápur og uppþvottavél fylgja með í kaupum. Stórir gólfsíðir gluggar eru í rýminu með miklu útsýni. Úr rýminu er útgengt á verönd um tvær rennihurðir.
Baðherbergi er flísalagt með sturtu, vegghengdu salerni og innréttingu með vaski. Útgengt er á verönd úr baðherbergi.
Svefnherbergi 1 (hjónaherbergi) er rúmgott með fataskáp og flísum á gólfi. Útgengt er úr herberginu á verönd.
Svefnherbergi 2 er með flísum á gólfi.
Svefnherbergi 3 er með flísum á gólfi.

Góð geymsla er úti að bakatil með hillum. Hiti og rafmagn eru í rýminu.

Rekstrarkostnaður, helstu tölur:
Fasteignagjöld 2025: 189.861 kr á ári. Brunatrygging: 85.319 kr á ári. Sumarhúsafélagið: 20.000 kr fyrir árið 2025.

Verð kr. 59.900.000



Um skoðunar- og aðgæsluskyldu:
Í lögum um fasteignakaup nr. 40/2002 er kveðið á um ríka skoðunarskyldu kaupenda á fasteignum. Fasteignasala Mosfellsbæjar skorar því á væntanlega kaupendur að kynna sér vel ástand fasteigna fyrir kauptilboðsgerð og leita til þar til bærra sérfræðinga um nánari skoðun ef með þarf.

Forsendur söluyfirlits:
Söluyfirlit er samið af fasteignasala í samræmi við ákvæði laga nr. 70/2015. Þær upplýsingar sem fram koma í söluyfirliti þessu eru sóttar í opinberar skrár, til seljanda sjálfs og eftir atvikum til húsfélags. Seljandi veitir upplýsingar um eign í samræmi við upplýsingaskyldu laga um fasteignakaup nr. 40/2002. Fasteignasali sannreynir að þær upplýsingar séu réttar með sjónskoðun á eigninni.
Fasteignasali getur ekki fullyrt um ástand og eiginleika þeirra hluta fasteigna sem ekki eru aðgengilegir og sjást ekki berum augum, t.d. lagnir, dren, skólp og þak.

Gjöld sem kaupandi þarf að greiða vegna kaupa:
1. Stimpilgjald af kaupsamningi sem er hlutfall af fasteignamati. Stimpilgjald er 0,8% fyrir einstaklinga (0,4% við fyrstu kaup) og 1,6% fyrir lögaðila.
2. Þinglýsingargjald af kaupsamningi, veðskuldabréfum, veðleyfum o.fl. Þinglýsingargjald er kr. 3.800,- fyrir hvert skjal.
3. Lántökugjald lánastofnunar - er skv. gjaldskrá viðkomandi lánastofnunar.
4. Umsýslugjald til fasteignasölu skv. kauptilboði.
5. Þegar um nýbyggingu er að ræða greiðir kaupandi skipulagsgjald, 0,3% af endanlegu brunabótamáti, þegar það er lagt á af viðkomandi sveitarfélagi.

img
Svanþór Einarsson
Lögg.fasteignasali innan félags fasteignasala
Fasteignasala Mosfellsbæjar
Þverholti 2, 270 Mosfellsbæ
Fasteignasala Mosfellsbæjar

Fasteignasala Mosfellsbæjar

Þverholti 2, 270 Mosfellsbæ
phone
img

Svanþór Einarsson

Þverholti 2, 270 Mosfellsbæ
Fasteignasala Mosfellsbæjar

Fasteignasala Mosfellsbæjar

Þverholti 2, 270 Mosfellsbæ
phone

Svanþór Einarsson

Þverholti 2, 270 Mosfellsbæ