Upplýsingar
Byggt 1958
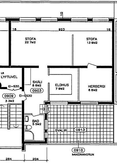
81,5 m²
3 herb.
1 baðherb.
2 svefnh.
Sameiginl. inngangur
Lyfta
Opið hús: 17. mars 2026
kl. 17:00
til 17:30
Opið hús: Ljósheimar 4, 104 Reykjavík, Íbúð merkt: 02 09 03. Eignin verður sýnd miðvikudaginn 5. mars 2026 milli kl. 17:00 og kl. 17:30.
Lýsing
Höll fasteignarsala kynnir: Fallega 3ja herbergja penthouse íbúð með glæsilegu útsýni og 21 fm svölum á efstu hæð í fallegu fjölbýlishúsi með lyftu við Ljósheima.
Samkvæmt Hms er íbúð 79,4 fm og geymsla 2,1 fm. Samtals 81,5 fm.
Lýsing:
Forstofa rúmgóð með fataskáp og flísum á gólfi.
Eldhús rúmgott og bjart með fallegri innréttingu og vönduðum tækjum, flísum á gólfi.
Baðherbergi flísaklætt með sturtu og flísar á gólfi (nýlega endurnýjað).
Stofa og borðstofa rúmgóð og björt með parketi á gólfi og glæsilegu útsýni.
Svefnherbergi eru tvö rúmgóð með góðum skápum, parket á gólfi.
Geymsla í sameign á geymslugangi á jarðhæð (kjallara) með hillum, steinn á gólfi.
Sameign:
Forstofa rúmgóð og björt með stein á gólfi.
Stigahús rúmgott og bjart með lyftu og teppi á gólfi.
Þvottahús rúmgott með iðnaðar tækjum og stóru þurrkherbergi innaf.
Hjóla- og vagnageymslur með góðum útganga.
Hús og lóð og öll aðkoma er falleg með góðum bílastæðum.
Búið er að endurnýja gler, s.l. sumar var endurnýjað á vesturhlið og 2015 á austurhlið.
Nánari upplýsingar veitir:
Grétar Guðmundsson sími 821 2111, holl@hollfast.is
Jón Guðmundsson 897 3702 löggiltur fasteignasali jon@hollfast.is
Gjöld sem kaupandi þarf að standa straum af vegna kaupanna:
1. Stimpilgjald af kaupsamnings 0,8% af fasteignamati eignar.
2. Þinglýsingargjald af kaupsamning, veðskuldabréfi, veðleyfi osf. 2.700 kr af hverju skjali.
3. Lántökugjald lánastofnunnar, sjá nánar hjá viðkomandi lánastofnun.
4. Umsýslugjald til fasteignasölu 74.400 kr m. vsk
Samkvæmt Hms er íbúð 79,4 fm og geymsla 2,1 fm. Samtals 81,5 fm.
Lýsing:
Forstofa rúmgóð með fataskáp og flísum á gólfi.
Eldhús rúmgott og bjart með fallegri innréttingu og vönduðum tækjum, flísum á gólfi.
Baðherbergi flísaklætt með sturtu og flísar á gólfi (nýlega endurnýjað).
Stofa og borðstofa rúmgóð og björt með parketi á gólfi og glæsilegu útsýni.
Svefnherbergi eru tvö rúmgóð með góðum skápum, parket á gólfi.
Geymsla í sameign á geymslugangi á jarðhæð (kjallara) með hillum, steinn á gólfi.
Sameign:
Forstofa rúmgóð og björt með stein á gólfi.
Stigahús rúmgott og bjart með lyftu og teppi á gólfi.
Þvottahús rúmgott með iðnaðar tækjum og stóru þurrkherbergi innaf.
Hjóla- og vagnageymslur með góðum útganga.
Hús og lóð og öll aðkoma er falleg með góðum bílastæðum.
Búið er að endurnýja gler, s.l. sumar var endurnýjað á vesturhlið og 2015 á austurhlið.
Nánari upplýsingar veitir:
Grétar Guðmundsson sími 821 2111, holl@hollfast.is
Jón Guðmundsson 897 3702 löggiltur fasteignasali jon@hollfast.is
Gjöld sem kaupandi þarf að standa straum af vegna kaupanna:
1. Stimpilgjald af kaupsamnings 0,8% af fasteignamati eignar.
2. Þinglýsingargjald af kaupsamning, veðskuldabréfi, veðleyfi osf. 2.700 kr af hverju skjali.
3. Lántökugjald lánastofnunnar, sjá nánar hjá viðkomandi lánastofnun.
4. Umsýslugjald til fasteignasölu 74.400 kr m. vsk