Upplýsingar
Verðsaga
Byggt 2000
166,4 m²
6 herb.
1 baðherb.
4 svefnh.
Þvottahús
Bílskúr
Útsýni
Lyfta
Opið hús: 17. mars 2026
kl. 16:00
til 16:30
Opið hús: Naustabryggja 55, 110 Reykjavík, Íbúð merkt: 01 01 01. Eignin verður sýnd þriðjudaginn 17. mars 2026 milli kl. 16:00 og kl. 16:30.
Lýsing
GLÆSILEG, BJÖRT OG RÚMGÓÐ 6 HERB. ÍBÚÐ MEÐ TVEIMUR SVÖLUM, BÍLSKÚR OG SJÁVATÚTSÝNI.
Samkvæmt skráningu Þjóðskrá Íslands er birt flatarmál eignarinnar 166,4 fm.
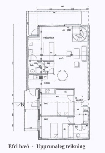
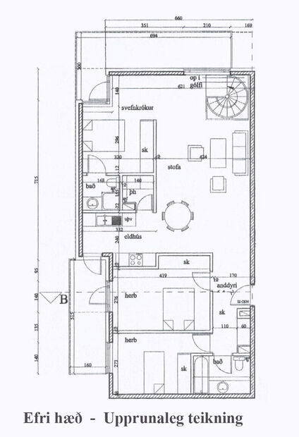
Um er að ræða 145,9 fm. íbúð á tveimur hæðum ásamt 20,5 fm. bílskúr í lyftuhúsnæði byggðu árið 2000. Íbúðin er á tveimur hæðum og hefur henni verið töluvert breitt frá upprunalegum teikningum. Möguleiki er á fjórum góðum svefnherbergjum ásamt tveimur rúmgóðum stofum, en í dag er íbúðin með stórum stofum með opnu eldhúsi ásamt hjónasvítu og tvennum góðum svölum á efri hæðinni, en á neðri hæðinni er svefnherbergi og sjónvarpshol. Gólfefni íbúðarinnar er parket og flísar. Nýlega endurnýjað baðherbergi er á efri hæðinni. Mjög fallegt útsýni er úr íbúðinni út til sjávar. Bílskúrinn er með góðri lofthæð og því góðu millilofti sem er notað sem geymsla.
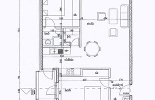
Forstofa/gangur: Parket á gólfi og gott skápapláss.
Stofur: Stofurnar eru bjartar og rúmgóðar, parket á gólfum og útgangur út á rúmgóðar sjávarútsýnis svalir.
Eldhús: Góð innrétting með fínu skápaplássi, nýlegt span helluborð og parket á gólfi, opið í stofurnar og útgangur út á góðar grill-vestur svalir.
Hjónaherbergi: Svíta með parketi á gólfum og mjög góðir fataskápar, tveir inngangar og útgangur út á vestur svalirnar (teiknað sem tvö góð svefnherbergi).
Baðherbergi: Flísalagt, upphengt klósett, walk-inn sturta og falleg innrétting.
Sjónvarpshol á neðri hæð: Mjög góð nýting, rúmgott og parket á gólfi.
Svefnherbergi á neðri hæð: Rúmgott með parketi á gólfi og fataherbergi inn af (teiknað sem geymsla).
Þvottahús: Inn af eldhúsinu með góðum skápum.
Bílskúr: Sjálfvirkur hurðaropnari, innangengt úr sameign, heitt og kalt vatn, hátt til loft og gott milliloft sem notað er sem geymsla.
- Góð bílastæði eru við húsið.
- Ljósleiðari er kominn í inn í íbúðina.
- Vel rekið húsfélag og snyrtileg og vel hirt sameign.
- Skv. teikningum gæti íbúðin auðveldlega verið með fjórum svefnherbergjum og tveimur góðum stofum.
Sameiginleg vagn- og hjólageymsla er á jarðhæð hússins.
Um er að ræða einstaklega fallega og góða fjölskyldueign miðsvæðis á höfuðborgarsvæðinu.
Allar nánari uppl. og skoðun veitir: Jóhann Friðgeir GSM: 896-3038 e-mail: johann@hofdi.is
Samkvæmt skráningu Þjóðskrá Íslands er birt flatarmál eignarinnar 166,4 fm.
Um er að ræða 145,9 fm. íbúð á tveimur hæðum ásamt 20,5 fm. bílskúr í lyftuhúsnæði byggðu árið 2000. Íbúðin er á tveimur hæðum og hefur henni verið töluvert breitt frá upprunalegum teikningum. Möguleiki er á fjórum góðum svefnherbergjum ásamt tveimur rúmgóðum stofum, en í dag er íbúðin með stórum stofum með opnu eldhúsi ásamt hjónasvítu og tvennum góðum svölum á efri hæðinni, en á neðri hæðinni er svefnherbergi og sjónvarpshol. Gólfefni íbúðarinnar er parket og flísar. Nýlega endurnýjað baðherbergi er á efri hæðinni. Mjög fallegt útsýni er úr íbúðinni út til sjávar. Bílskúrinn er með góðri lofthæð og því góðu millilofti sem er notað sem geymsla.
Forstofa/gangur: Parket á gólfi og gott skápapláss.
Stofur: Stofurnar eru bjartar og rúmgóðar, parket á gólfum og útgangur út á rúmgóðar sjávarútsýnis svalir.
Eldhús: Góð innrétting með fínu skápaplássi, nýlegt span helluborð og parket á gólfi, opið í stofurnar og útgangur út á góðar grill-vestur svalir.
Hjónaherbergi: Svíta með parketi á gólfum og mjög góðir fataskápar, tveir inngangar og útgangur út á vestur svalirnar (teiknað sem tvö góð svefnherbergi).
Baðherbergi: Flísalagt, upphengt klósett, walk-inn sturta og falleg innrétting.
Sjónvarpshol á neðri hæð: Mjög góð nýting, rúmgott og parket á gólfi.
Svefnherbergi á neðri hæð: Rúmgott með parketi á gólfi og fataherbergi inn af (teiknað sem geymsla).
Þvottahús: Inn af eldhúsinu með góðum skápum.
Bílskúr: Sjálfvirkur hurðaropnari, innangengt úr sameign, heitt og kalt vatn, hátt til loft og gott milliloft sem notað er sem geymsla.
- Góð bílastæði eru við húsið.
- Ljósleiðari er kominn í inn í íbúðina.
- Vel rekið húsfélag og snyrtileg og vel hirt sameign.
- Skv. teikningum gæti íbúðin auðveldlega verið með fjórum svefnherbergjum og tveimur góðum stofum.
Sameiginleg vagn- og hjólageymsla er á jarðhæð hússins.
Um er að ræða einstaklega fallega og góða fjölskyldueign miðsvæðis á höfuðborgarsvæðinu.
Allar nánari uppl. og skoðun veitir: Jóhann Friðgeir GSM: 896-3038 e-mail: johann@hofdi.is
Ár
Fasteignamat
Kaupverð
Stærð
Fermetraverð
1. apr. 2014
31.250.000 kr.
34.500.000 kr.
166.4 m²
207.332 kr.
28. jan. 2010
28.400.000 kr.
30.000.000 kr.
166.4 m²
180.288 kr.
Byggt á upplýsingum úr Þjóðskrá Íslands frá 2006-2026