Upplýsingar
Verðsaga
Byggt 2024
74,6 m²
3 herb.
1 baðherb.
2 svefnh.
Útsýni
Sérinngangur
Bílastæði
Lyfta
Opið hús: 19. mars 2026
kl. 17:00
til 17:30
Opið hús: Lambamýri 2, 225 Garðabær, Íbúð merkt: 03 01 05. Eignin verður sýnd fimmtudaginn 19. mars 2026 milli kl. 17:00 og kl. 17:30.
Lýsing
Guðný Ösp lgf., s. 665-8909, og fasteignasalan TORG kynnir vel skipulagða þriggja herbergja íbúð með stæði í bílakjallara við Lambamýri 2
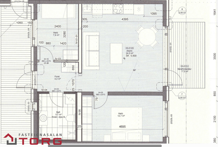
Eignin er samtals skráð á fasteignayfirliti HMS 74,6 m2 en þar af er geymsla 8,5 m2.
Umrædd eign er nýleg, falleg og björt og er staðsett á 1. hæð með sérafnota reit sem snýr í norð-vestur, með fallegu útsýni í átt til Bessastaða. Gengið er inn um sér inngang sem er sunnan megin við húsið.
Nánari lýsing:
Forstofa: flísar á gólfi og fataskápur.
Herbergi I: parket á gólfi og fataskápur.
Baðherbergi: flísar á gólfi og veggjum, upphengt salerni, sturta, handlaug með innréttingu og pláss fyrir þvottavél og þurrkara.
Stofa: parket á gólfi, opið og bjart rými, þar sem útgengt er á hellulagðan sérafnotareit sem snýr í norð-vestur með fallegu útsýni í átt til Bessastaða.
Eldhús: parket á gólfi, mikið skápapláss, ofn í vinnuhæð, innbyggður ísskápur og uppþvottavél, gott borðpláss og vinnulýsing. Eldhús og stofa saman í opnu og björtu rými.
Hjónaherbergi II: parket á gólfi og rúmgóðir fataskápar.
Geymsla: staðsett í sameign í kjallara, skráð 8,5 m2.
Íbúðin inniheldur loftskiptikerfi sem blæs fersku upphituðu lofti inn í íverurými og dregur loft út af baðherbergjum, og eldhúsi.
Stæði í bílakjallara: staðsett í bílakjallara með rafhleðslustöð, gott aðgengi en unnt er að taka lyftu upp á 1. hæð í sameign í stigagangi og ganga þaðan út að sér inngangi íbúðar á 1. hæð.
Eignin er vel staðsett á Álftanesi, í göngufæri við skóla, leikskóla og þá er sundlaug og íþrótta hús í um það bil fimm mínótna göngufjarlægð. Næg gestastæði eru á bílaplani sem er staðsett fyrir utan húsið. Þá eru göngustígar frá húsinu í átt að Bessastöðum og að fallegum gönguleiðum í átt að fjörunni.
Allar nánari upplýsingar veitir: Guðný Ösp Ragnarsdóttir, lgf., s. 665-8909 eða gudny@fstorg.is
Gjöld sem kaupandi þarf að standa straum af vegna kaupa á fasteign: Stimpilgjald af kaupsamningi: 0.8% af fasteignamati eignar fyrir einstaklinga en 1.6% fyrir lögaðila en 0.4% ef um fyrstu íbúðarkaup er að ræða.
Þinglýsingargjald: kaupsamningi, skuldabréfi, veðleyfi, afsali o.s.frv. er kr. 2.700 af hverju skjali. Umsýslugjald fasteignasölu, samkvæmt gjaldskrá.
Skoðunarskylda kaupanda: Í lögum um fasteignakaup nr. 40/2002 er kveðið á um ríka skoðunarskyldu kaupenda á fasteignum. Fasteignasala bendir væntanlegum kaupendum á að kynna sér vel ástand fasteigna við skoðun og fyrir tilboðsgerð og ef þurfa þykir að leita til sérfræðinga um nánari ástandsskoðun. Söluyfirlit er samið af fasteignasala í samræmi við ákvæði laga nr. 70/2015. Þær upplýsingar sem fram koma í söluyfirliti þessu eru sóttar í opinberar skrár, til seljanda sjálfs og eftir atvikum til húsfélags. Seljandi veitir upplýsingar um eign í samræmi við upplýsingaskyldu laga um fasteignakaup nr. 40/2002. Fasteignasali sannreynir að þær upplýsingar séu réttar með sjónskoðun á eigninni. Fasteignasali getur ekki fullyrt um ástand og eiginleika þeirra hluta fasteigna sem ekki eru aðgengilegir og sjást ekki berum augum, t.d. lagnir, dren, skólp og þak.
Eignin er samtals skráð á fasteignayfirliti HMS 74,6 m2 en þar af er geymsla 8,5 m2.
Umrædd eign er nýleg, falleg og björt og er staðsett á 1. hæð með sérafnota reit sem snýr í norð-vestur, með fallegu útsýni í átt til Bessastaða. Gengið er inn um sér inngang sem er sunnan megin við húsið.
Nánari lýsing:
Forstofa: flísar á gólfi og fataskápur.
Herbergi I: parket á gólfi og fataskápur.
Baðherbergi: flísar á gólfi og veggjum, upphengt salerni, sturta, handlaug með innréttingu og pláss fyrir þvottavél og þurrkara.
Stofa: parket á gólfi, opið og bjart rými, þar sem útgengt er á hellulagðan sérafnotareit sem snýr í norð-vestur með fallegu útsýni í átt til Bessastaða.
Eldhús: parket á gólfi, mikið skápapláss, ofn í vinnuhæð, innbyggður ísskápur og uppþvottavél, gott borðpláss og vinnulýsing. Eldhús og stofa saman í opnu og björtu rými.
Hjónaherbergi II: parket á gólfi og rúmgóðir fataskápar.
Geymsla: staðsett í sameign í kjallara, skráð 8,5 m2.
Íbúðin inniheldur loftskiptikerfi sem blæs fersku upphituðu lofti inn í íverurými og dregur loft út af baðherbergjum, og eldhúsi.
Stæði í bílakjallara: staðsett í bílakjallara með rafhleðslustöð, gott aðgengi en unnt er að taka lyftu upp á 1. hæð í sameign í stigagangi og ganga þaðan út að sér inngangi íbúðar á 1. hæð.
Eignin er vel staðsett á Álftanesi, í göngufæri við skóla, leikskóla og þá er sundlaug og íþrótta hús í um það bil fimm mínótna göngufjarlægð. Næg gestastæði eru á bílaplani sem er staðsett fyrir utan húsið. Þá eru göngustígar frá húsinu í átt að Bessastöðum og að fallegum gönguleiðum í átt að fjörunni.
Allar nánari upplýsingar veitir: Guðný Ösp Ragnarsdóttir, lgf., s. 665-8909 eða gudny@fstorg.is
Gjöld sem kaupandi þarf að standa straum af vegna kaupa á fasteign: Stimpilgjald af kaupsamningi: 0.8% af fasteignamati eignar fyrir einstaklinga en 1.6% fyrir lögaðila en 0.4% ef um fyrstu íbúðarkaup er að ræða.
Þinglýsingargjald: kaupsamningi, skuldabréfi, veðleyfi, afsali o.s.frv. er kr. 2.700 af hverju skjali. Umsýslugjald fasteignasölu, samkvæmt gjaldskrá.
Skoðunarskylda kaupanda: Í lögum um fasteignakaup nr. 40/2002 er kveðið á um ríka skoðunarskyldu kaupenda á fasteignum. Fasteignasala bendir væntanlegum kaupendum á að kynna sér vel ástand fasteigna við skoðun og fyrir tilboðsgerð og ef þurfa þykir að leita til sérfræðinga um nánari ástandsskoðun. Söluyfirlit er samið af fasteignasala í samræmi við ákvæði laga nr. 70/2015. Þær upplýsingar sem fram koma í söluyfirliti þessu eru sóttar í opinberar skrár, til seljanda sjálfs og eftir atvikum til húsfélags. Seljandi veitir upplýsingar um eign í samræmi við upplýsingaskyldu laga um fasteignakaup nr. 40/2002. Fasteignasali sannreynir að þær upplýsingar séu réttar með sjónskoðun á eigninni. Fasteignasali getur ekki fullyrt um ástand og eiginleika þeirra hluta fasteigna sem ekki eru aðgengilegir og sjást ekki berum augum, t.d. lagnir, dren, skólp og þak.
Ár
Fasteignamat
Kaupverð
Stærð
Fermetraverð
24. apr. 2024
40.400.000 kr.
67.700.000 kr.
74.6 m²
907.507 kr.
Byggt á upplýsingum úr Þjóðskrá Íslands frá 2006-2026